• Terrain - 285 m²
  • Terrain - 285 m²
  • Terrain - 285 m²
630 000 €
285 m²

Description :

Le cabinet GHT Immo vous propose :
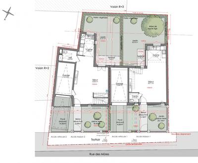
Exclusivité – Terrain constructible 285 m² – Saint-Maurice Plateau – À deux pas du bois de Vincennes

Potentiel de construction jusqu'à 400 m².
Maison individuelle ou deux maisons jumelées possibles.
Vendu libre de toute condition suspensive. Opportunité rare.

Le luxe de construire sans contrainte
Offrez-vous la liberté de bâtir votre projet dans l'un des quartiers les plus convoités du Val-de-Marne.
Situé dans la paisible et élégante rue Maurice Gredat, ce terrain de 285 m² bénéficie d'un cadre verdoyant et résidentiel, à seulement quelques mètres du bois de Vincennes et de l'avenue de Gravelle.

Ici, tout est possible : une villa contemporaine de prestige ou un projet de deux maisons mitoyennes, idéal pour une division patrimoniale ou familiale.
Caractéristiques du terrain
Surface : 285 m²
Surface de plancher réalisable : jusqu'à 400 m² (sous réserve du règlement d'urbanisme)
Zonage favorable à des projets ambitieux (R+2, combles, sous-sol possible)
Orientation triple : sud / est / ouest, offrant une luminosité optimale
Terrain plat, parfaitement desservi, environnement calme et pavillonnaire
Possibilité de jardin privatif pour chaque maison en cas de division
Façade adaptée pour stationnements, garages ou accès indépendants
Les atouts majeurs
Terrain libre de constructeur

Aucune condition suspensive de permis : achat ferme et rapide
Faible offre foncière dans le secteur
Valeur patrimoniale exceptionnelle

Prix : 700 000 € frais d'agence inclus (honoraires à la charge de l'acquéreur)
Pour plus de renseignements, contactez-nous au 01 48 93 81 23
GHT Immo – 64 avenue Gambetta, 94700 Maisons-Alfort

Afficher plus de détails

Informations sur ce bien :

L'intérieur :

  • 285 m²
  • Cuisine

Terrain :

  • Viabilisé :
    Non
Synthèse
Terrain à Saint-Maurice
630 000 €
Surface : 285 m²
Prix au m² : 2 211 €
Transaction :
Achat
Référence :
940047592
Date de publication :
Il y a plus de 7 jours
Terrain - 285 m²
Agent
GHT IMMO
GHT IMMO
Appeler
Écrire
Mettre en avant cette annonce
Signaler une erreur

Localisation :

L'adresse exacte n'est pas renseignée. Le bien se situe dans cette zone.
Annonces similaires
Annonces immobilières récentes