Terrain - 298 m² à Antony
favoris
599 000 €
Description :
TERRAIN AVEC PROJET DE CONSTRUCTION.
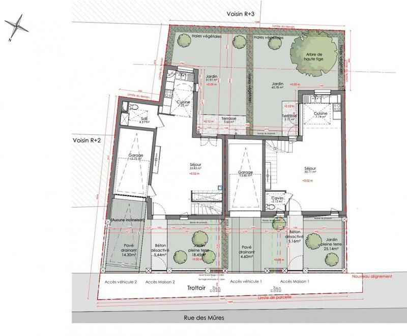
Terrain d'une superficie de 298 mètres carrés, situé à Antony dans le quartier FONTAINE MICHALON, dans un secteur pavillonnaire, Rue des Mûres.
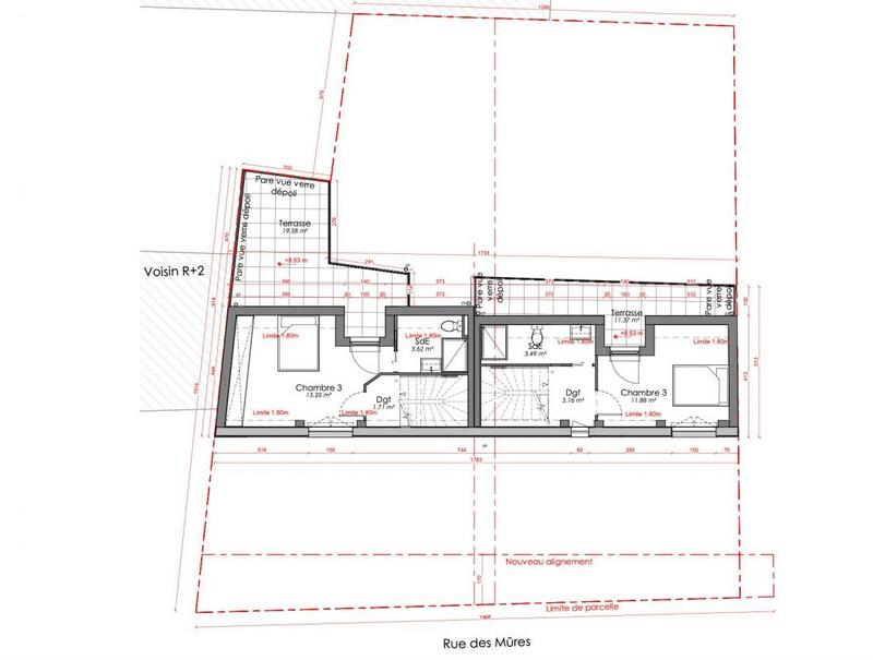
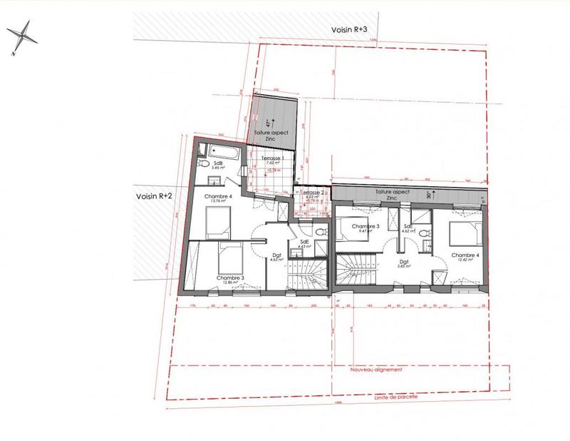
PROJET DE CONSTRUCTION de 2 triplex :
1er Triplex d'une surface habitable d'environ 164m2, 4 chambre, 2 salle de bains, 1 salle d'eau, salon, cuisine, garage, terrasses. Jardin d'environ 50m2 et jardinet à l'avant d'environ 37 m2.
2eme Triplex d'une surface habitable d'environ 173m2, 5 chambre, 2 salle de bains, 2 salle d'eau, salon, cuisine, garage, terrasses. Jardin d'environ 30m2 et jardinet à l'avant d'environ 40 m2.
PERMIS OBTENU ET PURGÉ DE TOUT RECOURS
Référence agence : 4653
Afficher plus de détails
Informations sur ce bien :
L'intérieur :
-
298 m²
Les équipements :
-
Tout à l'égout
Autres :
-
État :bon
Terrain :
-
Viabilisé :Non
Synthèse
Terrain à Antony
599 000 €
Surface :
298 m²
Prix au m² :
2 010 €
Transaction :
Achat
Référence :
YX12-X04-1JR
Date de publication :
Il y a plus de 7 jours
Contacter l'annonceur
Agent
Antony Agence De La Gare
Mettre en avant cette annonce
Signaler une erreur
Localisation :
Ventes de terrains à proximité
- 3 ventes de terrains à Fresnes (1.8 km)
- 1 vente de terrain à Châtenay-Malabry (2.7 km)
- 2 ventes de terrains à Verrières-le-Buisson (3 km)
- 4 ventes de terrains à L'Haÿ-les-Roses (3.4 km)
- 2 ventes de terrains au Plessis-Robinson (3.5 km)
- 1 vente de terrain à Fontenay-aux-Roses (3.6 km)
- 1 vente de terrain à Wissous (3.7 km)
- 2 ventes de terrains à Massy (3.9 km)
- 1 vente de terrain à Cachan (4.2 km)