Fonds de commerce - Magasins - 197 m² à Saint-Maur-des-Fossés

favoris
  • Fonds de commerce - Magasins - 197 m²
  • Fonds de commerce - Magasins - 197 m²
  • Fonds de commerce - Magasins - 197 m²
  • Fonds de commerce - Magasins - 197 m²
  • Fonds de commerce - Magasins - 197 m²
  • Fonds de commerce - Magasins - 197 m²
  • Fonds de commerce - Magasins - 197 m²
  • Fonds de commerce - Magasins - 197 m²
  • Fonds de commerce - Magasins - 197 m²
425 600 €
197 m²

Description :

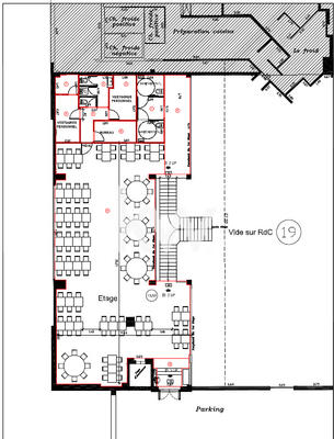
L'agence Ollivier Immobilier vous propose un fonds de commerce de type restaurant situé dans le quartier d'Adamville à Saint-Maur-des-Fossés, offrant :
Une salle de restauration pouvant acceullir environ 80 couverts, un bar, une cuisine équipée, une remise, une chambre froide, une terrasse d'environ 20 couverts, un bureau ainsi qu'une cave.
Situé sur un axe passant avec une forte visibilité.
Bail 3/6/9 en cour.
Pour plus d'informations, merci de bien vouloir nous contacter.
À voir sans plus attendre.

Afficher plus de détails

Informations sur ce bien :

L'intérieur :

  • 197 m²
  • Sans cuisine
    Informations complémentaires
    Sans cuisine

L'extérieur :

  • Parking

Les équipements :

  • Climatisation
  • Accès handicapé

Autres :

  • Chauffage :
    Individuel, Gaz
  • Année de construction :
    1950
  • Étage :
    RDC
Synthèse
Magasins à Saint-Maur-des-Fossés
425 600 €
Surface : 197 m²
Prix au m² : 2 160 €
Transaction :
Fonds de commerce
Référence :
V230000571
Date de publication :
Il y a plus de 7 jours
Fonds de commerce - Magasins - 197 m²
Agent
OLLIVIER IMMOBILIER
OLLIVIER IMMOBILIER
OLLIVIER KEVIN
Appeler
Écrire
Mettre en avant cette annonce
Signaler une erreur

Localisation :

L'adresse exacte n'est pas renseignée. Le bien se situe dans cette zone.

Performance énergétique :

Bien non soumis au Diagnostic de Performance Énergétique (DPE)

Annonces similaires
Annonces immobilières récentes