Maison ancienne - 107 m² - 4 pièces à Saint-Erblon
favoris
126 900 €
Description :
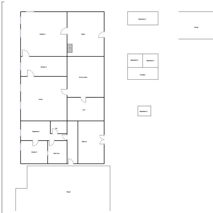
En campagne, longère de plain pied et authentique à 8 kms de Pouancé comprenant une entrée, une cuisine, une arrière cuisine, 3 chambres, salle d'eau, wc, débarras, cave, grenier aménageable.
Plusieurs dépendances sont à disposition sur un terrain de 2000 m² environ avec 2 puits dont un raccordé à la maison.
Très beau potentiel.
Honoraires inclus de 5.75% TTC à la charge de l'acquéreur. Prix hors honoraires 120 000 €. Non soumis au DPE. Les informations sur les risques auxquels ce bien est exposé sont disponibles sur le site Géorisques : georisques.gouv.fr.
Votre conseiller La Maison Immobilière : Agent immobilier - Stéphanie PAILLOT
Carte T CPI44022022000000002
RCP MMA
Afficher plus de détails
Informations sur ce bien :
L'intérieur :
-
4 pièces
-
107 m²
-
2 Chambres
-
1 Salle d'eau
-
1 Toilette
-
Cave
L'extérieur :
-
Parking
Autres :
-
Travaux à prévoir :Oui
Synthèse
Maison ancienne à Saint-Erblon
126 900 €
Surface :
107 m²
Prix au m² :
1 186 €
Transaction :
Achat
Référence :
485-LAMAISON
Mandat :
Exclusif
Date de publication :
Il y a plus de 7 jours
Contacter l'annonceur
Agent
La Maison Immobilière
Stéphanie PAILLOT
Mettre en avant cette annonce
Signaler une erreur
Localisation :
L'adresse exacte n'est pas renseignée. Le bien se situe dans cette zone.
Performance énergétique :
Bien non soumis au Diagnostic de Performance Énergétique (DPE)
Ventes de maisons à proximité
- 3 ventes de maisons à Senonnes (2.8 km)
- 9 ventes de maisons à Congrier (4.8 km)
- 35 ventes de maisons à Pouancé (5.3 km)
- 2 ventes de maisons à Chazé-Henry (5.7 km)
- 4 ventes de maisons à Saint-Aignan-sur-Roë (6.3 km)
- 3 ventes de maisons à Eancé (6.7 km)
- 4 ventes de maisons à Carbay (7.1 km)
- 3 ventes de maisons à La Prévière (7.8 km)
- 4 ventes de maisons à Villepot (8.1 km)