Immeuble - 210 m² - 9 pièces à Saint-Bueil
favoris
108 000 €
Description :
SAINT BUEIL, À VENDRE UN IMMEUBLE, À RÉNOVER ENTIÈREMENT, AU CENTRE DE SAINT BUEIL.
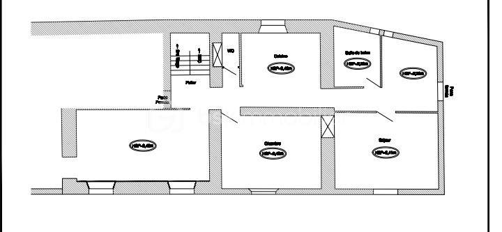
UN PROJET DE 3 APPARTEMENTS AVAIT ÉTÉ ENVISAGÉ ( PLANS FOURNIS )
UN COMPTEUR ÉLECTRIQUE ÉTAIT PRÉSENT AINSI QU'UN COMPTEUR D' EAU MAIS IL Y A DE NOMBREUSES ANNÉES, PAR CONTRE LE BÂTIMENT N' EST PAS RACCORDÉ AU TOUT À L' ÉGOUT, À PRÉVOIR.
IDÉAL POUR UN INVESTISSEUR OU AUTRE
Cette annonce référence 320184 vous est présentée par votre agent commercial BSK Immobilier GÉRALD GUILLAUD (EI) immatriculé au RSAC de VIENNE (38200) sous le numéro 39172014100020.
Prix du bien : 108 000,00 €
Les honoraires d'agence sont à la charge du vendeur.
Les informations sur les risques auxquels ce bien est exposé sont disponibles sur le site Géorisques : www.georisques.gouv.fr
Afficher plus de détails
Informations sur ce bien :
L'intérieur :
-
9 pièces
-
210 m²
Autres :
-
Année de construction :1900
Synthèse
Immeuble à Saint-Bueil
108 000 €
Surface :
210 m²
Prix au m² :
514 €
Transaction :
Achat
Référence :
320184
Date de publication :
Aujourd'hui à 08:11
Contacter l'annonceur
Agent
BSK Immobilier
GÉRALD GUILLAUD
Mettre en avant cette annonce
Signaler une erreur
Localisation :
Ventes d'immeubles à proximité
- 2 ventes d'immeubles au Pont-de-Beauvoisin (6.4 km)
- 1 vente d'immeuble au Pont-de-Beauvoisin (6.8 km)
- 1 vente d'immeuble à Saint-Joseph-de-Rivière (11.2 km)
- 1 vente d'immeuble à Saint-Genix-sur-Guiers (14.3 km)
- 1 vente d'immeuble à Saint-Jean-de-Moirans (17.2 km)
- 3 ventes d'immeubles à La Tour-du-Pin (21.4 km)
- 1 vente d'immeuble à Renage (22.5 km)
- 1 vente d'immeuble à Beaucroissant (22.9 km)
- 1 vente d'immeuble à Saint-Jean-de-Soudain (22.9 km)