• Appartement - 59 m² - 3 pièces
  • Appartement - 59 m² - 3 pièces
  • Appartement - 59 m² - 3 pièces
  • Appartement - 59 m² - 3 pièces
  • Appartement - 59 m² - 3 pièces
316 000 €
59 m²
3 pièces
2 chambres

Description :

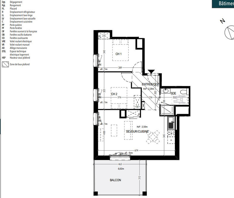
Idéalement située, à 10 minutes à pied du Marché Central et à 7 minutes à vélo de la plage, cette nouvelle résidence moderne vous offre un cadre de vie privilégié au coeur de Royan. Appartement présenté : Au 6eme étage, 3 pieces avec une spacieuse terrasse de 14.22 m². Les + de la résidence : Appartements du T1 au T4 Parkings privatifs Vue dégagée et privilégiée pour certains logements Architecture moderne et prestations de qualité Livraison prévue : 3 eme trimestre 2028 Plusieurs lots sont encore disponibles. Contactez-nous dès aujourd'hui pour découvrir les appartements qui correspondent à vos besoins ! Copropriété de 424 lots - dont 200 lots habitation. Charges annuelles : 1058 euros.

Afficher plus de détails

Informations sur ce bien :

L'intérieur :

  • 3 pièces
  • 59 m²
    Informations complémentaires
    Surface habitable : 59 m²
  • 2 Chambres
  • Cuisine nue
    Informations complémentaires
    Nue
  • 1 Salle d'eau
  • 1 Toilette
  • Séjour de 26 m²

L'extérieur :

  • Terrasse de 14 m²
  • 2 Parkings

Les équipements :

  • Ascenseur
  • Tout à l'égout
  • Accès handicapé
  • Double vitrage

Autres :

  • Chauffage :
    Individuel, Radiateur, Électrique
  • Année de construction :
    2028
  • Exposition :
    Ouest
  • Étage :
    6ème étage
    Informations complémentaires
    Nombre d'étages de la construction : 9
  • Nombre de niveaux :
    1

Copropriété :

  • Copropriété :
    Oui
  • Nombre de lots :
    424
  • Charges annuelles :
    1 058 €
  • Procédure :
    Oui
Synthèse
Appartement à Royan
316 000 €
Surface : 59 m²
Prix au m² : 5 356 €
Transaction :
Achat
Référence :
SPIR2404
Date de publication :
Il y a plus de 7 jours
Appartement - 59 m² - 3 pièces
Agent
Stéphane Plaza Immobilier Royan
Stéphane Plaza Immobilier Royan
Appeler
Écrire
Mettre en avant cette annonce
Signaler une erreur

Localisation :

L'adresse exacte n'est pas renseignée. Le bien se situe dans cette zone.

Performance énergétique :

Bien non soumis au Diagnostic de Performance Énergétique (DPE)

Annonces similaires
Annonces immobilières récentes