• Local commercial - 360 m²
  • Local commercial - 360 m²
  • Local commercial - 360 m²
360 000 €
360 m²

Description :

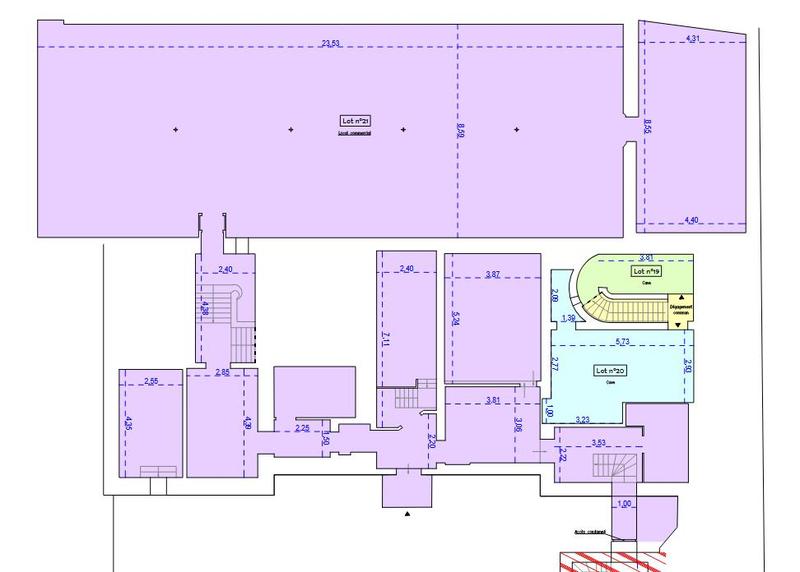
À vendre, local commercial d'environ 360 m², libre de toute occupation et de tout locataire, situé en sous-sol, au sein d'un immeuble mixte (habitation / commerce / professionnel), en plein centre de Rouen – secteur rue Louis Ricard.

Le bien correspond à une ancienne salle des coffres bancaire, offrant une structure exceptionnelle : murs très épais, volumes importants, sécurité renforcée et excellente isolation naturelle.

Le local ne dispose pas de fenêtres.
Cette configuration le rend particulièrement adapté aux activités ne nécessitant pas de lumière naturelle, ou pour lesquelles l'absence d'ouvertures est un avantage (sécurité, discrétion, isolation).

Le règlement de copropriété autorise les activités commerciales et professionnelles.
La restauration est possible, sous réserve du respect des règles de nuisances et de l'obtention des autorisations administratives nécessaires.

Caractéristiques :

Surface : ≈ 360 m²

Local commercial

Libre de toute occupation

Ancienne salle des coffres bancaire

Situation : sous-sol

Sans fenêtres

Extraction existante

Volumes importants

Structure lourde (murs béton, forte inertie)

Accès sécurisé non PMR

Hauteur sous plafond 3m30

Usages possibles (selon projet) :

Restauration sans salle, dark kitchen, traiteur

Laboratoire ou production alimentaire

Activité professionnelle ou tertiaire

Atelier / production

Stockage professionnel sécurisé

Activité technique ou conceptuelle

(Tout projet devra respecter le règlement de copropriété et les autorisations administratives en vigueur.)

Prix de vente :

360 000 €

Environ 1 000 € / m²

Bien libre immédiatement, idéal pour exploitant ou investisseur

Dossier complet et visite sur demande.

Prix de vente : 343 000€ FAI (Honoraire 17 000€ TTC à la charge du vendeur)
RSAC : 894 396 951
CPI : 7602 2025 000 000 001

Afficher plus de détails

Informations sur ce bien :

L'intérieur :

  • 360 m²
    Informations complémentaires
    Surface commerciale : 360 m²

Les équipements :

  • Tout à l'égout

Copropriété :

  • Copropriété :
    Oui
  • Charges annuelles :
    38 316 €
  • Taxe foncière :
    2 491 €
Synthèse
Local commercial à Rouen
360 000 €
Surface : 360 m²
Prix au m² : 1 000 €
Transaction :
Achat (professionnels)
Référence :
696fac41a03a8
Date de publication :
Aujourd'hui à 09:20
Local commercial - 360 m²
Performance énergétique
A
B
C
D
E
F
G
Gaz à effet de serre
A
B
C
D
E
F
G
Agent
SUPER AGENT
MABRIK IMMO
Appeler
Écrire
Mettre en avant cette annonce
Signaler une erreur

Localisation :

Performance énergétique :

Logement économe
A
1
kWh/m²/an
1
kg CO₂/m²/an
B
C
D
E
F
G
Logement énergivore
Faible émission de CO₂
A
1
kg CO₂/m²/an
B
C
D
E
F
G
Forte émission de CO₂
Annonces similaires
Annonces immobilières récentes