• Appartement - 53 m² - 3 pièces
  • Appartement - 53 m² - 3 pièces
  • Appartement - 53 m² - 3 pièces
265 833 €
53 m²
3 pièces
2 chambres

Description :

Au cœur du centre historique de la rive droite de Rouen, à 10 minutes à pieds de la gare SNCF, ce programme de logements en réhabilitation rénovation complète (bât F,G & J), propose une large gamme d'appartements satisfaisant tous types de demandes: (voir plan de masse annexé à l'annonce).

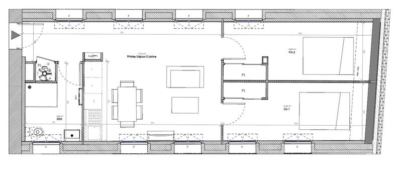
Ce T3 au 2e étage du bât J exposé est/ouest, propose un bel ensemble séjour/cuisine de 27.10 m2, 2 chambres avec penderie, entrée avec placard, et salle de douche comprenant le wc.

D'autres lots allant du studio au 3 pièces sont disponibles dans ce programme livrable au 1er trimestre 2027, permettant de réaliser un investissement en déficit foncier pendant 10 ans pour de la location nue, ou en résidence principale, renseignements et réservation sur simple appel téléphonique.

Possibilité de place de parking en sous-sol sécurisé, en sus du prix affiché sur l'annonce.

Le chauffage et la production eau chaude sanitaire " ECS " sont assurés par dispositif électrique individuel.

Par respect vis-à-vis du caractère historique du site, un maximum d'éléments sera conservé et valorisé dans l'intérêt à la fois du patrimoine et du projet.
La conformité de la construction sera, tout au long de sa mise en œuvre, vérifiée par bureau de contrôle agréé et titulaire d'une mission étendue.

Un Dossier d'Intervention Ultérieure sur l'Ouvrage (D.I.U.O.) sera réalisé par le coordonnateur sécurité et santé agréé et sera remis à la copropriété à la livraison des bâtiments.
Les informations sur les risques auxquels ce bien est exposé sont disponibles sur le site Géorisques : www. georisques. gouv. fr.

Réseau Immobilier CAPIFRANCE - Votre agent commercial (RSAC N°320 483 217 - Greffe de ROUEN) Thierry DUGAT Entrepreneur Individuel 06 60 60 40 10 - Réf.304121

Afficher plus de détails

Informations sur ce bien :

L'intérieur :

  • 3 pièces
  • 53 m²
    Informations complémentaires
    Surface habitable : 53 m²
  • 2 Chambres

Autres :

  • Exposition :
    Nord
  • Étage :
    2nd étage

Copropriété :

  • Copropriété :
    Oui
Synthèse
Appartement à Rouen
265 833 €
Surface : 53 m²
Prix au m² : 5 016 €
Transaction :
Achat
Référence :
340936136142
Date de publication :
Il y a plus de 7 jours
Appartement - 53 m² - 3 pièces
Agent
CAPIFRANCE
CAPIFRANCE
Monsieur Thierry DUGAT
Appeler
Écrire
Mettre en avant cette annonce
Signaler une erreur

Localisation :

Performance énergétique :

Bien non soumis au Diagnostic de Performance Énergétique (DPE)

Annonces similaires
Annonces immobilières récentes