• Maison - 94 m² - 4 pièces
  • Maison - 94 m² - 4 pièces
  • Maison - 94 m² - 4 pièces
  • Maison - 94 m² - 4 pièces
378 000 €
94 m²
4 pièces
3 chambres

Description :

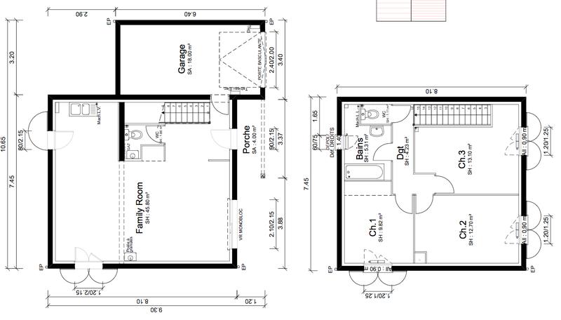
OFFRE EXCEPTIONNELLE POUR LES 50ANS : 10m² OFFERT + 2 PACK AU CHOIXProduit rare à saisir au plus vite.Situé sur la commune de Rillieux la papeSur une parcelle de 450m² hors lotissement, Maisons punch vous propose une construction neuve à étage de 94m².Cette maison est composée d’une partie jour avec une très belle pièce de vie de 45m² avec cuisine ouverte sur le séjour et un WC au rez de chaussé.La partie nuit est répartie en 3 chambres dont 2 de 13m² et une de 10m² ainsi qu’une salle de bain avec baignoire ou douche au choix, un lavabo et un WC séparé.Pour finir, la maison possède un garage de 18m² permettant de garer une voiture et d’avoir un espace de stockage au fond.Plan entièrement personnalisables au bon vouloir des futurs acquéreurs.Nombreuses prestations possiblesCONSTRUCTION, TERRAIN ET VRD INCLUS DANS LE PRIX.Prestations de qualités : volets roulants intégrés électrique et connectés, Pompe à chaleurMaison conforme à la RE 2020

Afficher plus de détails

Informations sur ce bien :

L'intérieur :

  • 4 pièces
  • 94 m²
  • 3 Chambres
  • 1 Salle de bain

L'extérieur :

  • Garage

À proximité :

  • Accès voie rapide
  • Centre-ville
  • Commerces
  • Ecoles

Autres :

  • Style :
    Traditionnelle
Synthèse
Maison à Rillieux-la-Pape
378 000 €
Surface : 94 m²
Prix au m² : 4 021 €
Transaction :
Neuf
Référence :
17296 MARTINET Sylvain
Date de publication :
Aujourd'hui à 14:46
Maison - 94 m² - 4 pièces
Agent
Maisons Punch - Saint Priest
Maisons Punch - Saint Priest
Appeler
Écrire
Mettre en avant cette annonce
Signaler une erreur

Localisation :

L'adresse exacte n'est pas renseignée. Le bien se situe dans cette zone.
Annonces similaires
Annonces immobilières récentes