Maison - 162 m² - 6 pièces à Pornichet
favoris
895 000 €
Description :
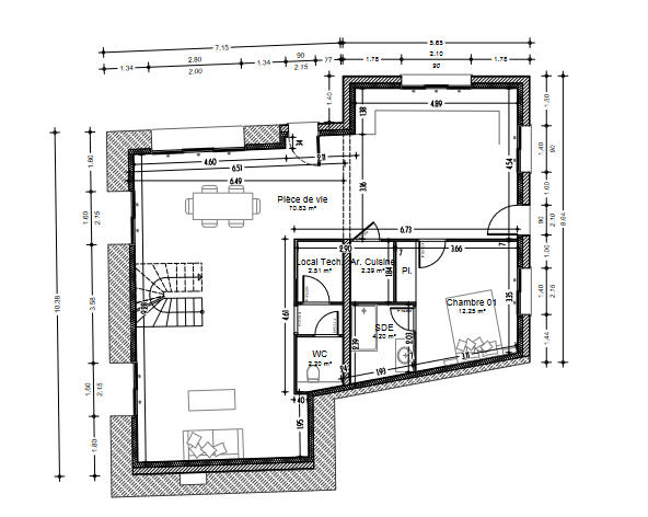
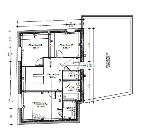
Maison de bel ouvrage offrant une vraie vie de plain pied avec une suite parentale, une salle d'eau, une pièce de vie de 70 m2 avec une cuisine aménagée et équipée ouvrant sur le salon/séjour exposé à l'ouest, un WC et une arrière-cuisine. L'étage est composé d'une mezzanine, de 3 chambres dont une avec salle d'eau, d'une salle de bain et d'un WC indépendant. L'ensemble est équipé de la climatisation réversible (PAC), d'ouvertures et de volets roulants électriques en aluminium. Le terrain est clôturé. Les commodités de ce quartier très prisé sont à 10 minutes à pied. (2.87 % honoraires TTC à la charge de l'acquéreur.)
Afficher plus de détails
Informations sur ce bien :
L'intérieur :
-
6 pièces
-
162 m²Informations complémentairesSurface Carrez : 149 m²
Surface habitable : 162 m² -
4 ChambresInformations complémentairesDont 2 au rez-de-chaussée
Chambre 1 : Surface de 12 m², rdc
Chambre 2 : Surface de 12 m², rdc
Chambre 3 : Surface de 10 m², 1er étage
Chambre 4 : Surface de 9 m², 1er étage
Chambre 5 : Surface de 14 m², 1er étage -
Cuisine américaine, équipéeInformations complémentairesAméricaine, équipée
-
1 Salle de bain de 4 m²Informations complémentaires1er étage
-
1 Salle d'eau de 6 m²Informations complémentairesSalle d'eau 1 : Surface de 4 m², rdc
Salle d'eau 2 : Surface de 2 m², 1er étage -
2 ToilettesInformations complémentairesToilette 1 : Surface de 2 m², rdc
Toilette 2 : Surface de 1 m², 1er étage -
Séjour de 71 m²
-
Mezzanine de 12 m²Informations complémentaires1er étage
L'extérieur :
-
Terrasse
-
1 Local Technique de 2 m²Informations complémentairesRdc
-
Garage
Autres :
-
Chauffage :Individuel, Pompe à chaleur
-
Année de construction :2024
-
État :Intérieur : Excellent, Extérieur : Excellent
-
Étage :RDCInformations complémentairesNombre d'étages de la construction : 1
-
Nombre de niveaux :2
-
Plain-pied :Oui
Synthèse
Maison à Pornichet
895 000 €
Surface :
162 m²
Prix au m² :
5 525 €
Transaction :
Achat
Référence :
5001
Date de publication :
Il y a plus de 7 jours
Contacter l'annonceur
Agent
Agence de la Pointe du Bec
Mettre en avant cette annonce
Signaler une erreur
Localisation :
L'adresse exacte n'est pas renseignée. Le bien se situe dans cette zone.
Performance énergétique :
Bien non soumis au Diagnostic de Performance Énergétique (DPE)
Ventes de maisons à proximité
- 143 ventes de maisons à La Baule-Escoublac (4.7 km)
- 34 ventes de maisons à Saint-André-des-Eaux (6 km)
- 26 ventes de maisons au Pouliguen (6.4 km)
- 149 ventes de maisons à Saint-Nazaire (9.6 km)
- 109 ventes de maisons à Guérande (9.8 km)
- 35 ventes de maisons à Batz-sur-Mer (10.6 km)
- 21 ventes de maisons à Trignac (12.9 km)
- 68 ventes de maisons à Saint-Brevin-les-Pins (13.3 km)
- 33 ventes de maisons au Croisic (13.4 km)