Retour
Rechercher
Lieu
Où ?
    Type de bien
    Quel type de projet ?
    Particulier Entreprise
    Quel type de bien ?
        Prix
        Quel budget ?
              Surface
              Quelle surface ?
                    Pièces
                    Combien de pièces ?
                      Combien de chambres ?
                          19

                          Annonces immobilières à Plancoët

                          Recherche 19
                          Carte
                          • Maison - 111 m² - 6 pièces
                          • Maison - 111 m² - 6 pièces
                          • Maison - 111 m² - 6 pièces
                          • Maison - 111 m² - 6 pièces
                          • Maison - 111 m² - 6 pièces
                          • Maison - 111 m² - 6 pièces Cliquez pour voir les 15 photos

                          Maison - 111 m² - 6 pièces

                          214 137 €
                          Maison neuve à construire FRENE_4CH_111_V1 BELLE MAISON DE 4 CHAMBRES Cette maison de 4 chambres offre un aspect extérieur équilibré et harmonieux, une façade réduite et une surface habitable initiale généreuse de 111 m². Outre, son agréable pièce de vie de 42m², ce plan propose de spacieuses chambres, dont une suite parentale au rez-de-chaussée avec sa propre salle d'eau, un
                          Professionnel Publié le 05 mars à 09:01 Non géolocalisée
                          Plancoët 4 ch
                          • Maison - 60 m² - 4 pièces
                          • Maison - 60 m² - 4 pièces
                          • Maison - 60 m² - 4 pièces
                          • Maison - 60 m² - 4 pièces
                          • Maison - 60 m² - 4 pièces
                          • Maison - 60 m² - 4 pièces Cliquez pour voir les 15 photos

                          Maison - 60 m² - 4 pièces

                          157 500 €
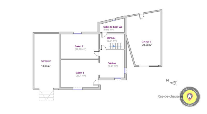
                          EXCLUSIVITÉ TALLEC IMMOBILIER, A proximité immédiate des commerces et de la gare, cette maison lumineuse d'environ 59,56 m² offre un cadre de vie pratique et agréable, idéal pour une résidence principale ou un investissement locatif. Au rez-de-chaussée, vous découvrirez : -un salon de 11,70 m², -une cuisine ouverte sur le séjour de 9,14 m², -une chambre de 12,18 m², -un bureau
                          Professionnel Publié il y a plus de 7 jours Non géolocalisée
                          Plancoët 2 ch 1 sdb
                          • Maison - 115 m² - 5 pièces
                          • Maison - 115 m² - 5 pièces
                          • Maison - 115 m² - 5 pièces
                          • Maison - 115 m² - 5 pièces
                          • Maison - 115 m² - 5 pièces
                          • Maison - 115 m² - 5 pièces Cliquez pour voir les 14 photos

                          Maison - 115 m² - 5 pièces

                          192 000 €
                          Iad France - Aude Condette vous propose : Charmante Maison de campagne à Plancoët, Nichée en campagne de Plancoët, vous serez séduits par cette jolie maison parfaitement entretenue, des années 1970, dans un cadre de vie paisible et convivial, idéal pour une famille ou un couple en quête de tranquillité. Vous aurez plaisir à la rénover à votre goût, elle offre de beaux volumes e
                          Professionnel Publié il y a plus de 7 jours
                          Plancoët 3 ch
                          • Maison - 111 m² - 5 pièces
                          • Maison - 111 m² - 5 pièces
                          • Maison - 111 m² - 5 pièces
                          • Maison - 111 m² - 5 pièces
                          • Maison - 111 m² - 5 pièces
                          • Maison - 111 m² - 5 pièces Cliquez pour voir les 16 photos

                          Maison - 111 m² - 5 pièces

                          220 000 €
                          Iad France - Julien Feuillet vous propose : Située dans un lotissement calme, cette maison néo-bretonne de 111 m² est idéale pour une vie de famille. Au rez-de-chaussée, elle se compose d’une cuisine, d’une belle pièce de vie lumineuse avec accès à la terrasse exposée sud-ouest, d’une chambre, d’un bureau, d’une salle d’eau et de WC séparés. À l’étage, trois chambres supplément
                          Professionnel Publié il y a plus de 7 jours
                          Plancoët 4 ch Terrasse
                          • Maison - 95 m² - 4 pièces
                          • Maison - 95 m² - 4 pièces
                          • Maison - 95 m² - 4 pièces
                          • Maison - 95 m² - 4 pièces
                          • Maison - 95 m² - 4 pièces
                          • Maison - 95 m² - 4 pièces Cliquez pour voir les 6 photos

                          Maison - 95 m² - 4 pièces

                          250 000 €
                          Iad France - Agnès Herve vous propose : Plancoët CENTRE, MAISON RECENTE de 2023,95 m² à PROXIMITE des ECOLES et des COMMERCES. Le rez-de-chaussée se compose d'un espace de vie ouvert comprenant une cuisine aménagée et équipée, un espace repas, un espace salon avec un accès direct sur le jardin, une buanderie. À l'étage, un palier distribue trois chambres lumineuses, une salle d
                          Professionnel Publié il y a plus de 7 jours
                          Plancoët 3 ch
                          • Appartement - 67 m² - 1 pièce
                          • Appartement - 67 m² - 1 pièce
                          • Appartement - 67 m² - 1 pièce
                          • Appartement - 67 m² - 1 pièce
                          • Appartement - 67 m² - 1 pièce
                          • Appartement - 67 m² - 1 pièce Cliquez pour voir les 15 photos

                          Appartement - 67 m² - 1 pièce

                          99 750 €
                          Situé au 2ᵉ étage d'un petit immeuble de 5 appartements, cet appartement traversant de 67 m² offre une vue dégagée sur le canal de Plancoët et un cadre de vie recherché, à proximité immédiate des commerces, écoles et commodités. Ce bien est à rénover intégralement, offrant une véritable opportunité pour créer un logement à votre image. Ses volumes permettent de repenser l'espa
                          Professionnel Publié il y a plus de 7 jours
                          Plancoët 2 ch Dernier étage Exposition Nord-ouest
                          • Maison - 63 m² - 3 pièces
                          • Maison - 63 m² - 3 pièces
                          • Maison - 63 m² - 3 pièces
                          • Maison - 63 m² - 3 pièces
                          • Maison - 63 m² - 3 pièces
                          • Maison - 63 m² - 3 pièces Cliquez pour voir les 11 photos

                          Maison - 63 m² - 3 pièces

                          175 750 €
                          ARMOR CONSEIL IMMOBILIER: Vanessa SAMSON a le plaisir de vous proposer, ce bien rare sur le marché, à proximité immédiate du centre-ville et des grandes surfaces. Cette traditionnelle de plain-pied, implantée sur une parcelle de offre un entrée avec placard, une cuisine, un salon/séjour, une salle d'eau et 2 chambres avec des placards. Elle dispose également d'un garage pratiqu
                          Professionnel Publié il y a plus de 7 jours Non géolocalisée
                          Plancoët 2 ch 1 sdb Parking
                          • Maison - 103 m² - 5 pièces
                          • Maison - 103 m² - 5 pièces
                          • Maison - 103 m² - 5 pièces
                          • Maison - 103 m² - 5 pièces
                          • Maison - 103 m² - 5 pièces
                          • Maison - 103 m² - 5 pièces Cliquez pour voir les 14 photos

                          Maison - 103 m² - 5 pièces

                          310 500 €
                          Christelle MEDDAH EI vous présente cette maison contemporaine de 150 m² au sol, sur un terrain de 472 m², idéalement située à Plancoët, dans un lotissement calme et résidentiel à deux pas des commerces, écoles et services. Un emplacement privilégié, à seulement 15 minutes de la plage des Quatre Vaux et de Saint Jacut de la Mer. Cette maison neuve contemporaine a été conçue pour
                          Professionnel Publié il y a plus de 7 jours
                          Plancoët 4 ch 2 sdb
                          • Fonds de commerce - 86 m²
                          • Fonds de commerce - 86 m²
                          • Fonds de commerce - 86 m²
                          • Fonds de commerce - 86 m²
                          • Fonds de commerce - 86 m²
                          • Fonds de commerce - 86 m² Cliquez pour voir les 7 photos

                          Fonds de commerce - 86 m²

                          40 000 €
                          22130 - PLANCOET - SALON DE COIFFURE - 40 000€ FAI - DEMARRAGE IMMEDIAT effiCity, l'agence qui estime votre bien en ligne, vous propose de découvrir ce salon de coiffure à la vente. Bénéficiant d'une situation idéale dans la rue principale (emplacement n°1), cette affaire attire une population locale de tout âge. Le local commercial dispose d'une grande réserve, un bureau et
                          Professionnel Publié il y a plus de 7 jours
                          Plancoët
                          • Fonds de commerce - 80 m²
                          • Fonds de commerce - 80 m²
                          • Fonds de commerce - 80 m²
                          • Fonds de commerce - 80 m²

                          Fonds de commerce - 80 m²

                          65 000 €
                          22130 - PLANCOET - SALON DE COIFFURE - 65 000€ FAI - DEMARRAGE IMMEDIAT effiCity, l'agence qui estime votre bien en ligne, vous propose de découvrir ce salon de coiffure à la vente. Bénéficiant d'une situation idéale en cœur de ville, cette affaire attire une population locale de tout âge. Le local commercial dispose d'une grande réserve et de deux salles permettant de divers
                          Professionnel Publié il y a plus de 7 jours
                          Plancoët
                          • Maison - 63 m² - 3 pièces
                          • Maison - 63 m² - 3 pièces
                          • Maison - 63 m² - 3 pièces
                          • Maison - 63 m² - 3 pièces
                          • Maison - 63 m² - 3 pièces
                          • Maison - 63 m² - 3 pièces Cliquez pour voir les 13 photos

                          Maison - 63 m² - 3 pièces

                          172 500 €
                          Iad France - Marine Lamé vous propose : Située dans le centre ville de Plancoët, à proximité immediate des commerces et écoles, venez découvrir cette charmante maison de plain pied construite en 1978, d’une surface habitable de 63 m² sur un terrain de 674 m². Cette maison lumineuse offre un couloir desservant un salon / séjour, une cuisine, 2 chambres, une salle d’eau et un WC
                          Professionnel Publié il y a plus de 7 jours
                          Plancoët 2 ch
                          • Maison - 176 m² - 7 pièces
                          • Maison - 176 m² - 7 pièces
                          • Maison - 176 m² - 7 pièces
                          • Maison - 176 m² - 7 pièces
                          • Maison - 176 m² - 7 pièces
                          • Maison - 176 m² - 7 pièces Cliquez pour voir les 10 photos

                          Maison - 176 m² - 7 pièces

                          232 400 €
                          ARMOR CONSEIL IMMOBILIER : Jennifer COLIN vous propose en plein coeur de Plancoët, cette spacieuse maison familiale qui vous séduira par ses beaux volumes et son potentiel. Elle se compose d'une vaste pièce de vie lumineuse avec une cuisine aménagée, de quatre chambres, chacune disposant de sa salle d'eau privative, offrant ainsi un confort optimal à ses occupants. Un apparteme
                          Professionnel Publié il y a plus de 7 jours Non géolocalisée
                          Plancoët 5 ch 4 sdb Parking
                          • Maison - 100 m² - 5 pièces
                          • Maison - 100 m² - 5 pièces
                          • Maison - 100 m² - 5 pièces
                          • Maison - 100 m² - 5 pièces
                          • Maison - 100 m² - 5 pièces
                          • Maison - 100 m² - 5 pièces Cliquez pour voir les 12 photos

                          Maison - 100 m² - 5 pièces

                          191 500 €
                          ARMOR CONSEIL IMMOBILIER : Située au coeur de Plancoët, Jennifer COLIN vous propose cette jolie maison en pierre qui allie le cachet de l'ancien au confort moderne. Vous serez séduits par sa situation idéale, à proximité immédiate des commerces, écoles et services. Au rez-de-chaussée, vous trouverez un espace de vie chaleureux comprenant un séjour lumineux avec une cuisine enti
                          Professionnel Publié il y a plus de 7 jours Non géolocalisée
                          Plancoët 4 ch 2 sdb Parking
                          • Maison - 87 m² - 4 pièces
                          • Maison - 87 m² - 4 pièces
                          • Maison - 87 m² - 4 pièces
                          • Maison - 87 m² - 4 pièces
                          • Maison - 87 m² - 4 pièces
                          • Maison - 87 m² - 4 pièces Cliquez pour voir les 11 photos

                          Maison - 87 m² - 4 pièces

                          191 500 €
                          ARMOR CONSEIL IMMOBILIER : Jennifer COLIN vous propose de découvrir cette sympathique maison, en excellente état, Idéal investissement locatif : Locataires en place. Elle se compose au rez de chaussée d'une belle pièce de vie de 40m2 avec sa cuisine ouverte, une buanderie et un WC. A l'étage vous trouverez 3 chambres, un dressing et une salle d'eau avec WC. A l'extérieur, un ca
                          Professionnel Publié il y a plus de 7 jours Non géolocalisée
                          Plancoët 3 ch 1 sdb Parking
                          Fonds de commerce - 81 m²

                          Fonds de commerce - 81 m²

                          220 000 €
                          Sylvain Lacheteau, réseau Capifrance Commerces, vous propose à la vente un fonds de bar tabac multiservice secteur Côte d'Emeraude/Plancoët. Cette affaire est située au centre d'un joli village à seulement 10 km des plages de la côte d'Emeraude, idéal pour allier vie professionnelle et cadre de vie. La salle de bar a été rénovée pour accueillir une clientèle locale très fidèle
                          Professionnel Publié il y a plus de 7 jours Non géolocalisée
                          Plancoët Bar Parking
                          • Duplex - 197 m² - 7 pièces
                          • Duplex - 197 m² - 7 pièces
                          • Duplex - 197 m² - 7 pièces
                          • Duplex - 197 m² - 7 pièces
                          • Duplex - 197 m² - 7 pièces
                          • Duplex - 197 m² - 7 pièces Cliquez pour voir les 14 photos

                          Duplex - 197 m² - 7 pièces

                          399 000 €
                          Oubliez l'ordinaire ! Liberkeys vous ouvre les portes d'une opportunité unique : un magnifique duplex de 197 m² qui redéfinit l'espace et le confort familial. Idéalement situé au cœur de Plancoët, ville prisée pour sa qualité de vie exceptionnelle et sa connexion rapide à des joyaux comme Saint-Malo et Dinan. Un Espace de Vie Exceptionnel Lumière, Volume, et Charme : Laissez-vo
                          Professionnel Publié il y a plus de 7 jours
                          Plancoët 4 ch 4 sdb
                          Fonds de commerce - 117 m²

                          Fonds de commerce - 117 m²

                          318 600 €
                          Vous cherchez une affaire clé en main dans un emplacement privilégié ? Ne manquez pas cette opportunité unique d'acquérir un bar-brasserie sur le secteur de Plancoët à seulement 5 mn des plages de la Côte d'Emeraude, bénéficiant d'un emplacement N°1 avec une forte visibilité et une clientèle fidèle, locale et touristique. Caractéristiques du commerce Chiffre d'affaires : 200 0
                          Professionnel Publié il y a plus de 7 jours Non géolocalisée
                          Plancoët Bar Parking
                          • Local commercial - 51 m²
                          • Local commercial - 51 m²
                          • Local commercial - 51 m²
                          • Local commercial - 51 m²
                          • Local commercial - 51 m²
                          • Local commercial - 51 m² Cliquez pour voir les 10 photos

                          Local commercial - 51 m²

                          126 000 €
                          ARMOR CONSEIL IMMOBILIER : Jennifer COLIN vous propose ce local commercial refait à neuf, offrant un cadre idéal pour votre activité. Situé dans un quartier à forte attractivité, il bénéficie d'un emplacement privilégié, facilement accessible et avec des possibilités de stationnement à proximité. Caractéristiques : Superficie : 50.72 m2 Rénovation : Entièrement rénové, alliant
                          Professionnel Publié il y a plus de 7 jours Non géolocalisée
                          Plancoët Parking
                          • Appartement - 67 m² - 3 pièces
                          • Appartement - 67 m² - 3 pièces
                          • Appartement - 67 m² - 3 pièces
                          • Appartement - 67 m² - 3 pièces

                          Appartement - 67 m² - 3 pièces

                          99 750 €
                          ARMOR CONSEIL IMMOBILIER: Jennifer COLIN vous propose cet appartement situé au deuxième étage d'un immeuble situé dans le centre de PLANCOET avec une vue sur l'Arguenon. Laisser vous transporter par le charme et venez rénover cet appartement offrant de belles possibilités de volumes avec ses combles aménageables et non comptées dans la surface carrez de 63m2 soit pour une chamb
                          Professionnel Publié il y a plus de 7 jours Non géolocalisée
                          Plancoët 2 ch Dernier étage Parking Exposition Nord
                          8

                          Annonces immobilières à Pluduno

                          (2.5 km)
                          • Terrain - 944 m²
                          • Terrain - 944 m²

                          Terrain - 944 m²

                          96 500 €
                          Iad France - Emilie Durand vous propose : À la recherche d'un terrain pour concrétiser votre projet de construction sur-mesure dans un environnement paisible et verdoyant à proximité du bourg ? Ne cherchez plus, ce terrain à bâtir de 944 m², hors lotissement, situé à Pluduno est l'opportunité rare que vous attendiez. Contactez-moi dès aujourd'hui pour en savoir plus et débuter
                          Professionnel Publié il y a plus de 7 jours
                          Pluduno
                          • Maison - 104 m² - 5 pièces
                          • Maison - 104 m² - 5 pièces
                          • Maison - 104 m² - 5 pièces
                          • Maison - 104 m² - 5 pièces
                          • Maison - 104 m² - 5 pièces
                          • Maison - 104 m² - 5 pièces Cliquez pour voir les 7 photos

                          Maison - 104 m² - 5 pièces

                          220 000 €
                          Iad France - Maryline NIVET vous propose : EN EXCLUSIVITÉ – PLUDUNO Dans un quartier calme et agréable, découvrez cette maison très bien entretenue, offrant la possibilité d’une vie de plain-pied. Le rez-de-chaussée se compose d’un salon / séjour lumineux, d’une cuisine avec arrière-cuisine pouvant être ouverte pour agrandir l’espace, d’une chambre avec grand placard, d’un WC a
                          Professionnel Publié il y a plus de 7 jours
                          Pluduno 4 ch Terrasse
                          • Maison - 125 m² - 6 pièces
                          • Maison - 125 m² - 6 pièces
                          • Maison - 125 m² - 6 pièces
                          • Maison - 125 m² - 6 pièces
                          • Maison - 125 m² - 6 pièces
                          • Maison - 125 m² - 6 pièces Cliquez pour voir les 18 photos

                          Maison - 125 m² - 6 pièces

                          256 500 €
                          Charmante maison Néo Bretonne, idéalement située à quelques pas des commerces, services et écoles de Plancoët. Cette maison familiale à 15 minutes des plages de Saint-Jacut de la mer et Saint-Cast, deux belles stations balnéaires, à seulement 2 km de la gare offre un cadre de vie chaleureux avec un jardin arboré et paysager de plus 3000 m2. Vous serez charmé par une belle en
                          Professionnel Publié il y a plus de 7 jours
                          Pluduno 4 ch 2 sdb
                          • Terrain - 707 m²
                          • Terrain - 707 m²

                          Terrain - 707 m²

                          49 000 €
                          Iad France - Marie Olivier vous propose : Terrain Constructible de 707 m² à Pluduno - Exposition Sud-SOUS OFFRE- Rare opportunité Ce terrain, situé dans un quartier calme et résidentiel, bénéficie d'une proximité immédiate des commerces, notamment du supermarché Leclerc situé à seulement 1000m Libre de constructeur Non viabilisé Ne ratez pas cette occasion unique Contactez moi
                          Professionnel Publié il y a plus de 7 jours
                          Pluduno
                          • Terrain constructible - 599 m²
                          • Terrain constructible - 599 m²
                          • Terrain constructible - 599 m²
                          • Terrain constructible - 599 m²

                          Terrain constructible - 599 m²

                          59 400 €
                          Terrain constructible hors lotissement non viabilisé d'une superficie de 599 m2 situé sur la commune de Pluduno, à 900m du centre et de ses commerces, 2 km de Plancoët, 10 mn des plages de Saint-Jacut-de-la-Mer et moins de 15 mn de celles de Saint-Cast-le-Guildo. Les informations sur les risques auxquels ce bien est exposé sont disponibles sur le site Géorisques : www.georisqu
                          Professionnel Publié il y a plus de 7 jours Non géolocalisée
                          Pluduno
                          5

                          Annonces immobilières à Saint-Lormel

                          (2.8 km)
                          • Maison - 75 m² - 3 pièces
                          • Maison - 75 m² - 3 pièces
                          • Maison - 75 m² - 3 pièces
                          • Maison - 75 m² - 3 pièces
                          • Maison - 75 m² - 3 pièces
                          • Maison - 75 m² - 3 pièces Cliquez pour voir les 14 photos

                          Maison - 75 m² - 3 pièces

                          229 000 €
                          Maison plain-pied rénovée - 3 pièces - Proche commerces À vendre, charmante maison de plain-pied offrant une grande pièce de vie salon / séjour / cuisine baignée de lumière traversante, idéale pour un quotidien convivial et lumineux. La maison se compose de 2 chambres avec dressing, d'un espace de vie spacieux et fonctionnel, le tout entièrement rénové avec goût. Garage, carpor
                          Professionnel Publié aujourd'hui à 06:59
                          Saint-Lormel 2 ch 1 sdb Terrasse Parking Exposition Ouest
                          • Maison - 116 m² - 4 pièces
                          • Maison - 116 m² - 4 pièces
                          • Maison - 116 m² - 4 pièces
                          • Maison - 116 m² - 4 pièces
                          • Maison - 116 m² - 4 pièces
                          • Maison - 116 m² - 4 pièces Cliquez pour voir les 13 photos

                          Maison - 116 m² - 4 pièces

                          222 350 €
                          ARMOR CONSEIL IMMOBILIER : Jennifer COLIN vous invite à venir découvrir EN EXCLUSIVITÉ cette maison construite en 1968 située dans la commune de Saint-Lormel, offrant un cadre de vie agréable et fonctionnel. Au rez-de-chaussée, vous trouverez une belle pièce de vie lumineuse agrémentée d'une cheminée, idéale pour des moments conviviaux, ainsi qu'une cuisine aménagée. À l'étage
                          Professionnel Publié le 01 mars à 06:32 Non géolocalisée
                          Saint-Lormel 3 ch 1 sdb Parking
                          • Maison - 190 m² - 6 pièces
                          • Maison - 190 m² - 6 pièces
                          • Maison - 190 m² - 6 pièces
                          • Maison - 190 m² - 6 pièces
                          • Maison - 190 m² - 6 pièces
                          • Maison - 190 m² - 6 pièces Cliquez pour voir les 24 photos

                          Maison - 190 m² - 6 pièces

                          950 € / mois
                          ARMOR CONSEIL IMMOBILIER, Servane HÉMON vous propose cette maison se situant dans un petit lotissement en toute tranquillité, cette contemporaine de 2005 pour offre de beaux volumes et beaucoup de luminosité. Elle comprend au rez de chaussée un grand salon/séjour d'une superficie d'environ 75m2, une cuisine nue, une chambre avec placard et salle d'eau privative. une buanderie/c
                          Professionnel Publié il y a plus de 7 jours Non géolocalisée
                          Saint-Lormel 5 ch 2 sdb Parking
                          • Maison - 130 m² - 6 pièces
                          • Maison - 130 m² - 6 pièces
                          • Maison - 130 m² - 6 pièces
                          • Maison - 130 m² - 6 pièces
                          • Maison - 130 m² - 6 pièces
                          • Maison - 130 m² - 6 pièces Cliquez pour voir les 18 photos

                          Maison - 130 m² - 6 pièces

                          319 500 €
                          MAISON D'ARCHITECTE DE PLAIN-PIED-CONFORT, QUALITÉ et EMPLACEMENT STRATÉGIQUE Localisation privilégiée : 10 minutes de la mer et des plages, 5 minutes de l'Institut Médical Spécialisé de Plancoët, 30 minutes de Dinard et Dinan, 40 minutes de Saint-Malo Un emplacement recherché, alliant calme résidentiel, proximité des services et accès rapide au littoral. ______________________
                          Professionnel Publié il y a plus de 7 jours
                          Saint-Lormel 3 ch
                          • Maison - 187 m² - 6 pièces
                          • Maison - 187 m² - 6 pièces
                          • Maison - 187 m² - 6 pièces
                          • Maison - 187 m² - 6 pièces
                          • Maison - 187 m² - 6 pièces
                          • Maison - 187 m² - 6 pièces Cliquez pour voir les 15 photos

                          Maison - 187 m² - 6 pièces

                          425 000 €
                          22130- SAINT-LORMEL – MAISON Récente de 187 m² – 4 CHAMBRES – VÉRANDA – GRAND GARAGE – À 10 MIN DES PLAGES- VISITE VIRTUELLE. Sébastien Jourdan et effiCity, l'agence qui estime votre bien en ligne, vous présentent cette maison familiale de 187 m², située sur une belle parcelle arborée de 1213 m², à seulement quelques minutes de Saint-Cast-le-Guildo et des plages. Intérieur :
                          Professionnel Publié il y a plus de 7 jours
                          Saint-Lormel 4 ch 2 sdb Terrasse Parking Exposition Sud
                          11

                          Annonces immobilières à Créhen

                          (3 km)
                          • Maison - 61 m² - 4 pièces
                          • Maison - 61 m² - 4 pièces
                          • Maison - 61 m² - 4 pièces
                          • Maison - 61 m² - 4 pièces
                          • Maison - 61 m² - 4 pièces
                          • Maison - 61 m² - 4 pièces Cliquez pour voir les 12 photos

                          Maison - 61 m² - 4 pièces

                          125 989 €
                          Maison neuve à construire MAGNOLIA_2CH_61_V1 BELLE MAISON DE 2 CHAMBRES Cette maison de 2 chambres offre une distribution optimisée des pièces. Ce plan compact et fonctionnel a été pensé pour faciliter l'accès à la propriété avec un budget maîtrisé. • Lumineuse avec cuisine ouverte donnant sur son jardin. • Beaux volumes et distribution optimisée des pièces pour votre confor
                          Professionnel Publié le 05 mars à 09:01 Non géolocalisée
                          Créhen 2 ch
                          • Maison de campagne - 150 m² - 5 pièces
                          • Maison de campagne - 150 m² - 5 pièces
                          • Maison de campagne - 150 m² - 5 pièces
                          • Maison de campagne - 150 m² - 5 pièces
                          • Maison de campagne - 150 m² - 5 pièces
                          • Maison de campagne - 150 m² - 5 pièces Cliquez pour voir les 13 photos

                          Maison de campagne - 150 m² - 5 pièces

                          443 500 €
                          A 5 mn de la mer, 8 mn de Saint-Jacut-de-la-Mer, 20 mn de Dinard et de Saint-Malo, dans un endroit champêtre, maison récente (2020) de 150 m2 habitables. Elle comprend : Au niveau principal : entrée, salon-séjour avec cuisine ouverte équipée-aménagée (52 m2) donnant sur grande terrasse exposée Sud-Ouest, arrière-cuisine, deux chambres, dont une suite parentale avec dressing, de
                          Professionnel Publié le 03 mars à 08:33 Non géolocalisée
                          Créhen 4 ch 4 sdb Terrasse Parking
                          • Maison - 116 m² - 4 pièces
                          • Maison - 116 m² - 4 pièces
                          • Maison - 116 m² - 4 pièces
                          • Maison - 116 m² - 4 pièces
                          • Maison - 116 m² - 4 pièces
                          • Maison - 116 m² - 4 pièces Cliquez pour voir les 6 photos

                          Maison - 116 m² - 4 pièces

                          282 950 €
                          Kévin Landrin – BSK Immobilier vous présente : Découvrez cette maison fonctionnelle et lumineuse située dans un environnement calme et recherché, à proximité de Dinan et de la côte d'Émeraude. Un bien idéal pour une vie de famille ou pour un projet patrimonial sécurisé. Une maison bien pensée : Pièce de vie spacieuse de plus de 30 m², baignée de lumière Cuisine ouverte, conv
                          Professionnel Publié il y a plus de 7 jours
                          Créhen 3 ch
                          • Maison - 96 m² - 5 pièces
                          • Maison - 96 m² - 5 pièces
                          • Maison - 96 m² - 5 pièces
                          • Maison - 96 m² - 5 pièces
                          • Maison - 96 m² - 5 pièces
                          • Maison - 96 m² - 5 pièces Cliquez pour voir les 12 photos

                          Maison - 96 m² - 5 pièces

                          215 250 €
                          Jolie maison indépendante, construite en 1991, un style traditionnel et intemporel, belle pièce de vie ouverte avec des portes fenêtres vitrées, 1 chambre avec salle d'eau privative en bas et à l'étage un beau palier, 3 chambres et dans un environnement agréable, garage, Jardin clos, parking. Rue calme, résidentielle, ou les maisons sont jolies et bien entretenues et un peu e
                          Professionnel Publié il y a plus de 7 jours Non géolocalisée
                          Créhen 4 ch 2 sdb
                          • Maison - 80 m² - 3 pièces
                          • Maison - 80 m² - 3 pièces
                          • Maison - 80 m² - 3 pièces
                          • Maison - 80 m² - 3 pièces
                          • Maison - 80 m² - 3 pièces
                          • Maison - 80 m² - 3 pièces Cliquez pour voir les 11 photos

                          Maison - 80 m² - 3 pièces

                          299 250 €
                          UNIQUEMENT A L'AGENCE ARMOR CONSEIL IMMOBILIER - Geoffrey PERRÉE vous propose cette charmante maison en pierres, située dans un environnement calme sur la commune de Créhen. Au rez-de-chaussée, vous découvrirez une agréable pièce de vie agrémentée d'un poêle à bois, une cuisine indépendante entièrement aménagée et équipée, une buanderie ainsi qu'un WC indépendant. L'étage offre
                          Professionnel Publié il y a plus de 7 jours Non géolocalisée
                          Créhen 2 ch 1 sdb Parking Exposition Sud

                          Toutes les annonces immobilières à Plancoët et aux environs. Achat, vente et location d'immobilier à Plancoët. Le site immobilier de Plancoët.

                          Recherche en cours...
                          Rechercher dans cette zone