Retour
Rechercher
Lieu
Où ?
    Type de bien
    Quel type de projet ?
    Particulier Entreprise
    Quel type de bien ?
        Prix
        Quel budget ?
              Surface
              Quelle surface ?
                    Pièces
                    Combien de pièces ?
                      Combien de chambres ?
                          23

                          Ventes de terrains à Pessac

                          Recherche 23
                          Carte
                          • Terrain - 2 000 m²
                          • Terrain - 2 000 m²
                          • Terrain - 2 000 m²

                          Terrain - 2 000 m²

                          625 000 €
                          33600 PESSAC PAPE CLÉMENT - RARE SUR LE SECTEUR ! A 10 min à pied du centre ville de Pessac, accès bus/tram/train, tous commerces, écoles, rocade accessible rapidement... TERRAIN ARBORÉ AU CALME ABSOLU D'ENVIRON 2000 M2. LIBRE DE CONSTRUCTEUR ! 40 % d'emprise au sol R+1 maximum A VOS PROJETS ! Prix: 625 000 Euros. Honoraires agence à la charge du vendeur. Pour visiter et vou
                          Professionnel Publié le 16 févr. à 08:35
                          Pessac
                          • Terrain constructible - 539 m²
                          • Terrain constructible - 539 m²
                          • Terrain constructible - 539 m²

                          Terrain constructible - 539 m²

                          233 500 €
                          Superficie : 539m² - Prix : 233 500€ En intra rocade avec le tramway à proximité : emplacement stratégique pour réaliser votre projet dans un quartier recherché et dynamique. Me contacter pour plus de renseignements : O671561210 - GIB Construction
                          Professionnel Publié il y a plus de 7 jours
                          Pessac
                          • Terrain constructible - 432 m²
                          • Terrain constructible - 432 m²

                          Terrain constructible - 432 m²

                          224 500 €
                          A deux pas de Bordeaux, découvrez ce terrain de 432m² prêt à accueillir la maison de vos rêves. Son emplacement privilégié allie tranquillité et vie citadine. Les transports en commun et toutes les commodités sont à proximité, c'est une réelle opportunité à 224 500€ ! Me contacter pour plus de renseignements : O671561210 - GIB Construction
                          Professionnel Publié il y a plus de 7 jours
                          Pessac
                          • Terrain - 1 264 m²
                          • Terrain - 1 264 m²
                          • Terrain - 1 264 m²
                          • Terrain - 1 264 m²

                          Terrain - 1 264 m²

                          636 000 €
                          Iad France - Ridouane Adeossi vous propose : À proximité du centre de Pessac et des commodités. Terrain à bâtir de 1264 m², libre de constructeur. Possibilité de construire plusieurs maisons ou du collectif. À bientôt Honoraires d'agence à la charge de l'acquéreur. Prix honoraires inclus : 636000 euros. Prix hors honoraires : 600000 euros. Honoraires TTC à la charge de l'acquér
                          Professionnel Publié il y a plus de 7 jours
                          Pessac
                          Terrain - 298 m²

                          Terrain - 298 m²

                          170 000 €
                          Découvrez ce terrain clos de 298 m², idéalement exposé Sud-Ouest et situé en intra-rocade, offrant un cadre privilégié pour concrétiser votre projet de construction. Grâce à une zone de construction très favorable et une emprise au sol de 40 %, ce terrain permet la réalisation d'une maison de plain-pied ou à étage, selon vos envies. Vous pourrez profiter d'une terrasse et d'un
                          Professionnel Publié il y a plus de 7 jours Non géolocalisée
                          Pessac Parking
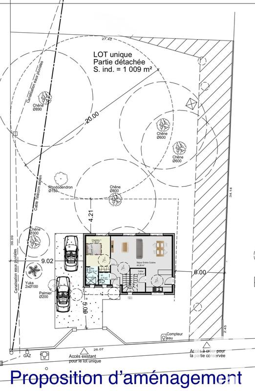
                          • Terrain constructible - 1 009 m²
                          • Terrain constructible - 1 009 m²
                          • Terrain constructible - 1 009 m²
                          • Terrain constructible - 1 009 m²

                          Terrain constructible - 1 009 m²

                          160 000 €
                          GIB a déniché pour vous cette parcelle divisée de 1009m² avec une emprise au sol de 80m², ou vous pourrez développer une maison de plain-pied d'environ 70m² habitable OU BIEN une projet à Etage de près de 140m² habitable. Situé en première ligne, elle sera entièrement clôturée avec portail existant et déboisée. Pout toit contact Emmanuel resta à votre disposition au O681611140
                          Professionnel Publié il y a plus de 7 jours
                          Pessac
                          • Terrain - 298 m²
                          • Terrain - 298 m²
                          • Terrain - 298 m²

                          Terrain - 298 m²

                          170 000 €
                          Terrain 298m2 - Pessac - Opportunité à saisir ! À Pessac Le Monteil : Découvrez ce terrain clos, exposé Sud-Ouest de 298m², en intra-rocade, offrant de belles perspectives pour votre projet de construction avec notre partenaire constructeur. Avec une zone de construction très favorable et une emprise au sol de 40%, vous pourrez concevoir une maison plain-pied ou à étage. Votre
                          Professionnel Publié il y a plus de 7 jours
                          Pessac
                          • Terrain - 558 m²
                          • Terrain - 558 m²
                          • Terrain - 558 m²

                          Terrain - 558 m²

                          245 000 €
                          Libre de tout constructeur. Situé à Pessac dans le quartier prisé de Pessac Alouette, ce terrain de 558 m² offre un emplacement idéal pour la réalisation de votre projet de construction. Proche de toutes les commodités, il bénéficie d'une accessibilité optimale grâce à la proximité des transports en commun dont le train. Idéalement desservi, ce terrain non viabilisé est doté d'
                          Professionnel Publié il y a plus de 7 jours
                          Pessac
                          • Terrain - 398 m²
                          • Terrain - 398 m²
                          • Terrain - 398 m²
                          • Terrain - 398 m²
                          • Terrain - 398 m²

                          Terrain - 398 m²

                          180 000 €
                          À Pessac Le Monteil : Découvrez ce terrain exposé Sud-Ouest de 397m², en intra-rocade, offrant de belles perspectives pour votre projet de construction avec notre partenaire constructeur. Avec une emprise au sol de 40% et des retraits favorables, vous pourrez concevoir une maison plain-pied d'environ 90m2 + garage ou à étage pour une superficie jusqu'à 180m2. Avec une zone de
                          Professionnel Publié il y a plus de 7 jours
                          Pessac
                          • Terrain constructible - 1 009 m²
                          • Terrain constructible - 1 009 m²
                          • Terrain constructible - 1 009 m²
                          • Terrain constructible - 1 009 m²

                          Terrain constructible - 1 009 m²

                          160 000 €
                          GIB a déniché pour vous cette parcelle divisée de 1009m² avec une emprise au sol de 80m², ou vous pourrez développer une maison de plain-pied d'environ 70m² habitable OU BIEN une projet à Etage de près de 140m² habitable. Situé en première ligne, elle sera entièrement clôturée avec portail existant et déboisée. Pout toit contact Emmanuel resta à votre disposition au O681611140
                          Professionnel Publié il y a plus de 7 jours
                          Pessac
                          Terrain constructible - 538 m²

                          Terrain constructible - 538 m²

                          370 000 €
                          PESSAC QUARTIER NOES C-MOBI Cécile ALBIN 07.88.91.42.23 Superbe terrain de plus de 500 M2, boisé et en première ligne, secteur calme proche des écoles. Ce terrain vous est proposé par notre partenaire foncier. Pour un projet de construction d'une maison ossature bois C-MOBI Pour un projet écologique né de la passion du logement individiel associé au respect de l'environneme
                          Professionnel Publié il y a plus de 7 jours
                          Pessac
                          • Terrain constructible - 1 000 m²
                          • Terrain constructible - 1 000 m²
                          • Terrain constructible - 1 000 m²
                          • Terrain constructible - 1 000 m²

                          Terrain constructible - 1 000 m²

                          160 000 €
                          Terrain constructible d'environ 1 000 m² à vendre sur la commune de PESSAC. Situé entre Gazinet et Alouette. Emprise au sol : 80 m². R+1 autorisé pour faire au total 140m² habitable. Terrain piscinable. Assainissement individuel à prévoir. Pour le visiter et être accompagné dans votre projet de construction, prenez contact avec JULIEN CHARRON au O6 42 67 17 99. Agence Sud Giron
                          Professionnel Publié il y a plus de 7 jours
                          Pessac
                          • Terrain - 405 m²
                          • Terrain - 405 m²
                          • Terrain - 405 m²
                          • Terrain - 405 m²

                          Terrain - 405 m²

                          232 000 €
                          Iad France - Antoine Bardin vous propose : Pessac centre, dans le quartier résidentiel de Candau, venez découvrir ce magnifique terrain d'environ 405 m² en première ligne - libre de constructeur. Parcelle issue d'une indivision d'environ 405 m² offrant de belles possibilités d'aménagement. Caractéristiques techniques : Dimensions : façade d'environ 11 mètres de large et environ
                          Professionnel Publié il y a plus de 7 jours
                          Pessac
                          • Terrain - 1 070 m²
                          • Terrain - 1 070 m²
                          • Terrain - 1 070 m²
                          • Terrain - 1 070 m²
                          • Terrain - 1 070 m²
                          • Terrain - 1 070 m² Cliquez pour voir les 6 photos

                          Terrain - 1 070 m²

                          280 000 €
                          À vendre – Terrain constructible de plus de 1000 m² – Pessac Haut-Lévêque Situé à proximité immédiate du CHU Haut-Lévêque et de la gare de Pessac Alouette (TRAM B et TER), ce terrain constructible de plus de 1000 m² bénéficie d'un emplacement stratégique. Il se trouve en zone UM30, ce qui permet la réalisation d'un projet d'un étage maximum, avec une emprise au sol pouvant all
                          Professionnel Publié il y a plus de 7 jours
                          Pessac
                          • Terrain - 999 m²
                          • Terrain - 999 m²
                          • Terrain - 999 m²
                          • Terrain - 999 m²

                          Terrain - 999 m²

                          172 000 €
                          Iad France - Jessica Santacreu vous propose : Je vous propose ce terrain viabilisé d'environ 1009 m² à Pessac Quartier France Alouette, proche de toutes les commodités (Commerces, Tram / train à 1.3 km et CHU Haut-Lévêque). Façade d'environ 14,75 m - Profondeur d'environ 44 m - Plan de zonage UM21 Emprise bâtie 8 % - possibilité R + 1 Libre constructeur. Vous êtes intéressés, n
                          Professionnel Publié il y a plus de 7 jours
                          Pessac
                          • Terrain constructible - 2 000 m²
                          • Terrain constructible - 2 000 m²

                          Terrain constructible - 2 000 m²

                          350 000 €
                          PESSAC MAGNIFIQUE TERRAIN de 2000 M² donnant sur la forêt. Dans un secteur paisible de Pessac. Ce beau terrain est idéal pour construire une maison en ossature bois car il est entouré de végétation. A vos projets pour une maison confortable dans ce havre de paix proche des accès de l' 63 ( on ne l'entend pas...) Ce terrain vous est proposé en partenariat avec un partenaire fonc
                          Professionnel Publié il y a plus de 7 jours
                          Pessac
                          • Terrain - 654 m²
                          • Terrain - 654 m²
                          • Terrain - 654 m²
                          • Terrain - 654 m²
                          • Terrain - 654 m²

                          Terrain - 654 m²

                          268 000 €
                          Iad France - Christel Auché vous propose : Je vous propose ce terrain LIBRE DE CONSTRUCTEUR d'environ 654 m², proche de toutes les commodités (Bus à 250 m - Centre-ville / gare et Tram à 1.5 km). Façade de 14,75 m - Profondeur de 44 m - Emprise bâtie 40 % - possibilité R + 1 + combles maximum Vous êtes intéressés, n'hésitez pas à me contacter, je suis disponible 7j / 7 Honorair
                          Professionnel Publié il y a plus de 7 jours
                          Pessac
                          • Terrain - 1 030 m²
                          • Terrain - 1 030 m²
                          • Terrain - 1 030 m²
                          • Terrain - 1 030 m²
                          • Terrain - 1 030 m²
                          • Terrain - 1 030 m² Cliquez pour voir les 6 photos

                          Terrain - 1 030 m²

                          285 000 €
                          Situé dans le lotissement résidentiel "Le Domaine des Arrestieux", composé de 34 lots d'habitation, ce terrain plat de 1030 m², non arboré et clôturé sur deux côtés, vous offre un cadre de vie paisible et agréable au sein d'un environnement soigné. Un permis de construire pour une maison contemporaine de 222 m² en R + 1 a été accordé en 2019. Bien que ce permis ne soit plus val
                          Professionnel Publié il y a plus de 7 jours
                          Pessac
                          Terrain constructible - 615 m²

                          Terrain constructible - 615 m²

                          288 000 €
                          Terrain constructible de 615 m² situé à Pessac. Maisons ARLOGIS, constructeur de maisons en Gironde, vous propose de découvrir la belle parcelle de son partenaire foncier de 615 m² situé à Pessac.
                          Professionnel Publié il y a plus de 7 jours
                          Pessac
                          Terrain constructible - 580 m²

                          Terrain constructible - 580 m²

                          250 000 €
                          Terrain constructible de 580 m² situé à Pessac. Maisons ARLOGIS, constructeur de maisons en Gironde, vous propose de découvrir la belle parcelle de son partenaire foncier de 580 m² situé à Pessac.
                          Professionnel Publié il y a plus de 7 jours
                          Pessac
                          Terrain constructible - 435 m²

                          Terrain constructible - 435 m²

                          205 000 €
                          Terrain constructible de 435 m² situé à Pessac. Maisons ARLOGIS, constructeur de maisons en Gironde, vous propose de découvrir la belle parcelle de son partenaire foncier de 435 m² situé à Pessac.
                          Professionnel Publié il y a plus de 7 jours
                          Pessac
                          • Terrain - 1 000 m²
                          • Terrain - 1 000 m²
                          • Terrain - 1 000 m²

                          Terrain - 1 000 m²

                          400 000 €
                          Terrain plat. Libre de constructeur. Clôturé. Venez découvrir ce terrain plat de + de 1000 m² au calme sur Pessac Alouette. Libre de constructeur. Emprise bâtie de 25% soit 250 m² habitables au sol. R + 1 possible. Les +: terrain plat, libre de constructeur, clôturé, au calme, proche lignes de bus. Vous pouvez me joindre de 9 h à 20 h, 7 jours sur 7. Ne pas se fier à la localis
                          Professionnel Publié il y a plus de 7 jours
                          Pessac Piscine
                          Terrain constructible - 900 m²

                          Terrain constructible - 900 m²

                          250 000 €
                          EXCLUSIF PESSAC Terrain de 900 M2 Pour un projet de construction d'une maison ossature bois C MOBI Pour plus de renseignements vous pouvez me joindre au 07.88.91.42.23 Cécile ALBIN
                          Professionnel Publié il y a plus de 7 jours
                          Pessac
                          18

                          Ventes de terrains à Talence

                          (3.4 km)
                          • Terrain - 300 m²
                          • Terrain - 300 m²

                          Terrain - 300 m²

                          272 000 €
                          Iad France - Ridouane Adeossi vous propose : Situé dans le secteur de l’Hôpital Bagatelle, à proximité des commerces (Intermarché) et des transports, découvrez ce terrain à bâtir viabilisé de 300 m², libre de constructeur. Implanté en angle de rue, il bénéficie d’une belle ouverture et d’un environnement aéré. Emprise au sol autorisée de 30 % avec possibilité de construction en
                          Professionnel Publié le 15 févr. à 08:10
                          Talence
                          • Terrain constructible - 280 m²
                          • Terrain constructible - 280 m²
                          • Terrain constructible - 280 m²
                          • Terrain constructible - 280 m²

                          Terrain constructible - 280 m²

                          269 000 €
                          Rare sur le secteur ! Situé dans le quartier prisé de Talence Roustaing, ce terrain à bâtir de 280 m² offre une opportunité idéale pour concrétiser votre projet de construction dans un environnement résidentiel de qualité. Les atouts du bien : Terrain plat et exploitable Environnement calme et recherché Idéal pour projet de maison individuelle Pourquoi Talence Roustaing ?
                          Professionnel Publié le 15 févr. à 06:50
                          Talence
                          • Terrain - 295 m²
                          • Terrain - 295 m²

                          Terrain - 295 m²

                          239 500 €
                          Iad France - Ridouane Adeossi vous propose : Situé dans le secteur de l’Hôpital Bagatelle, à proximité des commerces (Intermarché) et des transports, découvrez ce terrain à bâtir viabilisé de 295 m², libre de constructeur. Implanté en angle de rue, il bénéficie d’une belle ouverture et d’un environnement aéré. Emprise au sol autorisée de 30 % avec possibilité de construction en
                          Professionnel Publié il y a plus de 7 jours
                          Talence
                          Terrain - 278 m²

                          Terrain - 278 m²

                          259 000 €
                          Idéalement situé dans un secteur recherché, ce terrain viabilisé et borné de 278 m² bénéficie d'un environnement urbain pratique et bien desservi, tout en restant propice à un projet résidentiel. À proximité immédiate du TRAM B, des établissements scolaires (dont le collège Saint-Genès) et de la halte ferroviaire de Talence-Médoquine, vous rejoignez la gare Bordeaux Saint-Jean
                          Professionnel Publié il y a plus de 7 jours
                          Talence
                          Terrain - 297 m²

                          Terrain - 297 m²

                          278 000 €
                          Idéalement situé dans un secteur recherché, ce terrain viabilisé et borné de 297 m² bénéficie d'un environnement urbain pratique et bien desservi, tout en restant propice à un projet résidentiel. À proximité immédiate du TRAM B, des établissements scolaires (collège St-Genès) et de la halte ferroviaire de Talence-Médoquine, vous rejoignez la gare Bordeaux Saint-Jean en seulemen
                          Professionnel Publié il y a plus de 7 jours
                          Talence
                          10

                          Ventes de terrains à Gradignan

                          (3.6 km)
                          • Terrain constructible - 694 m²
                          • Terrain constructible - 694 m²

                          Terrain constructible - 694 m²

                          279 120 €
                          À Gradignan, dans un environnement résidentiel recherché, découvrez ce terrain de 694 m² proposé à 279 120 €, idéal pour concrétiser un projet de construction ambitieux. Sa belle superficie permet d'imaginer une maison familiale spacieuse, avec jardin, terrasse et espaces de vie ouverts sur l'extérieur. Vous profitez d'un cadre verdoyant et paisible, tout en restant proche des
                          Professionnel Publié le 18 févr. à 06:41
                          Gradignan
                          • Terrain constructible - 501 m²
                          • Terrain constructible - 501 m²
                          • Terrain constructible - 501 m²

                          Terrain constructible - 501 m²

                          172 000 €
                          TERRAIN A BÂTIR DE 501 M² SUR GRADIGNAN CMOBI vous propose un joli terrain de 501 m², entièrement viabilisé, idéal pour concrétiser votre projet de maison à ossature bois. Situé dans un environnement résidentiel calme et recherché, ce terrain bénéficie d'un emplacement privilégié, à proximité immédiate des commodités et des transports en commun, facilitant le quotidien de tou
                          Professionnel Publié le 18 févr. à 06:40
                          Gradignan
                          • Terrain constructible - 500 m²
                          • Terrain constructible - 500 m²
                          • Terrain constructible - 500 m²
                          • Terrain constructible - 500 m²

                          Terrain constructible - 500 m²

                          172 000 €
                          Découvrez ce rare et beau terrain constructible, idéal pour concrétiser votre projet de maison ! Situé dans un environnement calme et agréable, il offre une surface parfaitement exploitable. Terrain plat / non viabilisé Proche des commerces, écoles et transports Cadre verdoyant et résidentiel hors lotissement Que vous rêviez d'une maison familiale ou d'un investissement, ce
                          Professionnel Publié le 15 févr. à 06:51 Non géolocalisée
                          Gradignan
                          Terrain - 521 m²

                          Terrain - 521 m²

                          179 900 €
                          Venez découvrir ce terrain à bâtir plat, libre de constructeur, viabilisé. Dimensions 17 m de façade x 31 m de profondeur environ. 20% d'emprise bâti soit 105 m² constructible au sol, R + 1 possible jusqu'à 9m au faîtage. 40% d'espace de pleine terre. Vous pouvez me joindre de 9H à 20H, 7 jours sur 7. PS : ne pas se fier à la localisation du bien sur certains sites. Les informa
                          Professionnel Publié il y a plus de 7 jours
                          Gradignan
                          Terrain constructible - 690 m²

                          Terrain constructible - 690 m²

                          299 000 €
                          GRADIGNAN très beau terrain de 690 M² viabilisé, emprise de 20% Pour un projet de construction d'une maison en bois avec C- MOBI MAISON 100% personnalisable Pour plus de renseignements vous pouvez me joindre au O7.88.91.42.23 Cécile ALBIN
                          Professionnel Publié il y a plus de 7 jours
                          Gradignan

                          Achat d'un terrain à Pessac. Toutes les ventes immobilières à Pessac et aux environs. Terrain à vendre.

                          Recherche en cours...
                          Rechercher dans cette zone