• Appartement - 97 m² - 4 pièces
  • Appartement - 97 m² - 4 pièces
  • Appartement - 97 m² - 4 pièces
155 000 €
97 m²
4 pièces
3 chambres

Description :

Sur la commune d'Aressy, à seulement 10 minutes du centre ville de Pau et proche de toutes commodités. Venez investir dans ce programme neuf en cours de livraison.
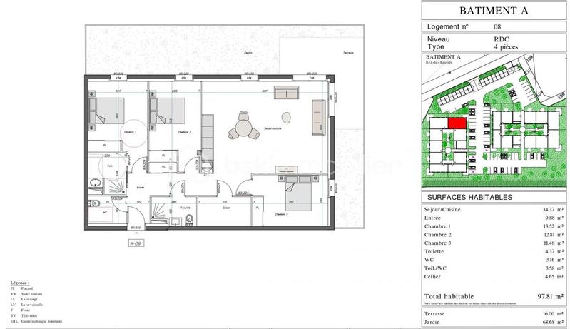
Au rez-de-chaussée de la résidence, vente d'un plateau de 98 m², idéal pour réaliser un appartement T4 avec trois chambres.
Il est vendu également avec une terrasse de 14 m², un jardinet de 40 m² et deux places de parking.
Possibilité d'acquérir un garage en supplément.

D'autres lots sont encore disponibles. Contactez-moi pour plus de renseignements.

Cette annonce référence 278746 vous est présentée par votre agent commercial BSK Immobilier LAURENT SCHAFER (EI) immatriculé au RSAC de PAU (64000) sous le numéro 89365200800028.

Prix du bien : 155 000,00 €
Les honoraires d'agence sont à la charge du vendeur.

A propos de la copropriété :
Pas de procédure en cours.
Nombre de lots : 17
Charges prévisionnelles annuelles : 1,00 €

Non soumis au DPE.

Les informations sur les risques auxquels ce bien est exposé sont disponibles sur le site Géorisques : www.georisques.gouv.fr

Afficher plus de détails

Informations sur ce bien :

L'intérieur :

  • 4 pièces
  • 97 m²
    Informations complémentaires
    Surface habitable : 98 m²
  • 3 Chambres

L'extérieur :

  • Terrasse
  • Parking extérieur
    Informations complémentaires
    Extérieur

Autres :

  • Année de construction :
    2025
  • Étage :
    RDC
    Informations complémentaires
    Nombre d'étages de la construction : 1

Copropriété :

  • Copropriété :
    Oui
  • Nombre de lots :
    17
  • Charges annuelles :
    1 €
Synthèse
Appartement à Pau
155 000 €
Surface : 97 m²
Prix au m² : 1 598 €
Transaction :
Achat
Référence :
278746_1
Date de publication :
Il y a plus de 7 jours
Appartement - 97 m² - 4 pièces
Agent
BSK Immobilier
BSK Immobilier
LAURENT SCHAFER
Appeler
Écrire
Mettre en avant cette annonce
Signaler une erreur

Localisation :

L'adresse exacte n'est pas renseignée. Le bien se situe dans cette zone.

Performance énergétique :

Bien non soumis au Diagnostic de Performance Énergétique (DPE)

Annonces similaires
Annonces immobilières récentes