• Appartement - 82 m² - 4 pièces
  • Appartement - 82 m² - 4 pièces
  • Appartement - 82 m² - 4 pièces
  • Appartement - 82 m² - 4 pièces
152 000 €
82 m²
4 pièces
3 chambres

Description :

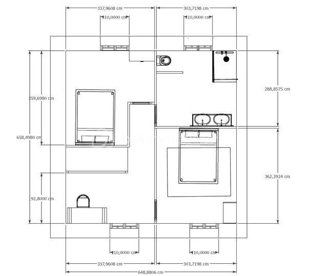
A voir sans tarder ce plateau en R+1 proche des halles le long de la ligne Febus. Dans un bâtiment classé entièrement réhabilité (Toiture, charpente, menuiseries extérieures, façades, zinguerie, extérieurs) sur approbation des architectes des bâtiments de France, vous pourrez laisser libre court à vos envies en aménageant intégralement l'intérieur. (Réseau en attente). Vous pourrez par exemple y créer 2 tT2 ou un appartement T3 en duplex.

Gros bonus, le bien dispose d'un extérieur privatif à l'arrière du bâtiment de 80 m² sans vis à vis face à un jardin pourvu de grands arbres.

Un exemple d'aménagement est présenté ici pour un T3 en duplex.

Cette annonce référence 314057 vous est présentée par votre agent commercial BSK Immobilier WILLIAM SOUBAIGNÉ (EIRL) immatriculé au RSAC de PAU (64000) sous le numéro 81362812000020.

Prix du bien : 152 000,00 €
Les honoraires d'agence sont à la charge du vendeur.

Les informations sur les risques auxquels ce bien est exposé sont disponibles sur le site Géorisques : www.georisques.gouv.fr

Afficher plus de détails

Informations sur ce bien :

L'intérieur :

  • 4 pièces
  • 82 m²
    Informations complémentaires
    Surface habitable : 82 m²
  • 3 Chambres

Autres :

  • Année de construction :
    1920
  • Étage :
    RDC
    Informations complémentaires
    Nombre d'étages de la construction : 2
Synthèse
Appartement à Pau
152 000 €
Surface : 82 m²
Prix au m² : 1 854 €
Transaction :
Achat
Référence :
314057
Date de publication :
Il y a plus de 7 jours
Appartement - 82 m² - 4 pièces
Agent
BSK Immobilier
BSK Immobilier
WILLIAM SOUBAIGNÉ
Appeler
Écrire
Mettre en avant cette annonce
Signaler une erreur

Localisation :

Annonces immobilières récentes