Retour
Rechercher
Lieu
Où ?
    Type de bien
    Quel type de projet ?
    Particulier Entreprise
    Quel type de bien ?
        Prix
        Quel budget ?
              Surface
              Quelle surface ?
                    Pièces
                    Combien de pièces ?
                      Combien de chambres ?
                          1

                          Vente de bien immobilier neuf à Passins

                          Recherche 1
                          Carte
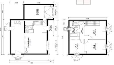
                          • Maison - 75 m² - 3 pièces
                          • Maison - 75 m² - 3 pièces

                          Maison - 75 m² - 3 pièces

                          241 400 €
                          DESIGN BATIMENT vous propose sur la commune d'Arandon-Passins à seulement 5km de Morestel et toutes ces commodités de réaliser votre projet de construction, une maison aux dernières normes (RE2020), avec tout le confort d'une maison moderne. Réalisation de de plans sur mesure adaptés à vos besoin et votre budget. Demandez Sébastien Le tout sur un terrain de 500m2 bien exposé.
                          Professionnel Publié il y a plus de 7 jours
                          Passins Neuf 2 ch
                          1

                          Vente de bien immobilier neuf à Sermérieu

                          (2.3 km)
                          • Maison - 85 m² - 5 pièces
                          • Maison - 85 m² - 5 pièces
                          • Maison - 85 m² - 5 pièces
                          • Maison - 85 m² - 5 pièces
                          • Maison - 85 m² - 5 pièces
                          • Maison - 85 m² - 5 pièces Cliquez pour voir les 7 photos

                          Maison - 85 m² - 5 pièces

                          216 750 €
                          Maison neuve à CONSTRUIRE à Sermérieu (38) sur terrain constructible non viabilisé de 721 m² au calme : votre maison sur mesure avec Maisons Arlogis. Sermérieu est une charmante commune située en Isère, offrant un cadre de vie paisible et verdoyant, idéal pour une maison individuelle. Proche de Bourgoin-Jallieu et à seulement quelques minutes des axes routiers majeurs, elle al
                          Professionnel Publié il y a plus de 7 jours
                          Sermérieu Neuf 3 ch Exposition Sud
                          19

                          Ventes de biens immobiliers neufs à Morestel

                          (3.3 km)
                          • Maison - 89 m² - 4 pièces
                          • Maison - 89 m² - 4 pièces
                          • Maison - 89 m² - 4 pièces
                          • Maison - 89 m² - 4 pièces
                          • Maison - 89 m² - 4 pièces
                          • Maison - 89 m² - 4 pièces Cliquez pour voir les 7 photos

                          Maison - 89 m² - 4 pièces

                          220 000 €
                          " Et si vous construisiez la maison de vos rêves ? " Imaginez une maison parfaitement adaptée à votre style de vie, pensée selon vos envies et construite pour votre confort. Plus qu'un projet, c'est une aventure unique ou chaque détail compte : - Un accompagnement de A a Z - Un design à votre image - un espace optimisé pour votre bien-être - Des Matériaux modernes et durabl
                          Professionnel Publié le 19 avril à 18:45
                          Morestel Neuf 3 ch 1 sdb
                          • Maison - 94 m² - 4 pièces
                          • Maison - 94 m² - 4 pièces
                          • Maison - 94 m² - 4 pièces
                          • Maison - 94 m² - 4 pièces
                          • Maison - 94 m² - 4 pièces
                          • Maison - 94 m² - 4 pièces Cliquez pour voir les 9 photos

                          Maison - 94 m² - 4 pièces

                          297 000 €
                          Et si votre projet de maison prenait enfin vie dans un cadre calme et verdoyant ?Je vous propose un projet de construction de maison individuelle neuve, situé sur la commune de Salagnon, à seulement quelques minutes des principaux axes, dans un environnement recherché pour sa tranquillité.Le projet comprend une maison d’environ 90 m² habitables, fonctionnelle et lumineuse, impl
                          Professionnel Publié le 16 avril à 18:46 Non géolocalisée
                          Morestel Neuf 3 ch 1 sdb
                          • Maison - 91 m² - 4 pièces
                          • Maison - 91 m² - 4 pièces
                          • Maison - 91 m² - 4 pièces
                          • Maison - 91 m² - 4 pièces
                          • Maison - 91 m² - 4 pièces
                          • Maison - 91 m² - 4 pièces Cliquez pour voir les 6 photos

                          Maison - 91 m² - 4 pièces

                          287 000 €
                          Et si votre projet de maison prenait enfin vie dans un cadre calme et verdoyant ?Je vous propose un projet de construction de maison individuelle neuve, situé sur la commune de Salagnon, à seulement quelques minutes des principaux axes, dans un environnement recherché pour sa tranquillité.Le projet comprend une maison d’environ 90 m² habitables, fonctionnelle et lumineuse, impl
                          Professionnel Publié le 16 avril à 18:46 Non géolocalisée
                          Morestel Neuf 3 ch 1 sdb
                          • Maison - 79 m² - 4 pièces
                          • Maison - 79 m² - 4 pièces
                          • Maison - 79 m² - 4 pièces
                          • Maison - 79 m² - 4 pièces
                          • Maison - 79 m² - 4 pièces
                          • Maison - 79 m² - 4 pièces Cliquez pour voir les 7 photos

                          Maison - 79 m² - 4 pièces

                          224 000 €
                          Et si votre projet de maison prenait enfin vie dans un cadre calme et verdoyant ?Je vous propose un projet de construction de maison individuelle neuve, situé sur la commune de Saint-Sorlin-De-Morestel, à seulement quelques minutes des principaux axes, dans un environnement recherché pour sa tranquillité.Le projet comprend une maison d’environ 80 m² habitables, fonctionnelle et
                          Professionnel Publié le 16 avril à 18:45 Non géolocalisée
                          Morestel Neuf 3 ch 1 sdb
                          • Maison - 91 m² - 4 pièces
                          • Maison - 91 m² - 4 pièces
                          • Maison - 91 m² - 4 pièces
                          • Maison - 91 m² - 4 pièces
                          • Maison - 91 m² - 4 pièces
                          • Maison - 91 m² - 4 pièces Cliquez pour voir les 6 photos

                          Maison - 91 m² - 4 pièces

                          241 000 €
                          Et si votre projet de maison prenait enfin vie dans un cadre calme et verdoyant ?Je vous propose un projet de construction de maison individuelle neuve, situé sur la commune de Saint-Sorlin-De-Morestel, à seulement quelques minutes des principaux axes, dans un environnement recherché pour sa tranquillité.Le projet comprend une maison d’environ 90 m² habitables, fonctionnelle et
                          Professionnel Publié le 16 avril à 18:45 Non géolocalisée
                          Morestel Neuf 3 ch 1 sdb
                          3

                          Ventes de biens immobiliers neufs à Vézeronce-Curtin

                          (5.1 km)
                          • Maison - 94 m² - 4 pièces
                          • Maison - 94 m² - 4 pièces
                          • Maison - 94 m² - 4 pièces
                          • Maison - 94 m² - 4 pièces
                          • Maison - 94 m² - 4 pièces
                          • Maison - 94 m² - 4 pièces Cliquez pour voir les 9 photos

                          Maison - 94 m² - 4 pièces

                          276 000 €
                          Et si votre projet de maison prenait enfin vie dans un cadre calme et verdoyant ?Je vous propose un projet de construction de maison individuelle neuve, situé sur la commune de Morestel, à seulement quelques minutes des principaux axes, dans un environnement recherché pour sa tranquillité.Le projet comprend une maison d’environ 90m² habitables, fonctionnelle et lumineuse, impla
                          Professionnel Publié le 16 avril à 18:45 Non géolocalisée
                          Vézeronce-Curtin Neuf 3 ch 1 sdb
                          • Maison - 89 m² - 4 pièces
                          • Maison - 89 m² - 4 pièces
                          • Maison - 89 m² - 4 pièces
                          • Maison - 89 m² - 4 pièces
                          • Maison - 89 m² - 4 pièces
                          • Maison - 89 m² - 4 pièces Cliquez pour voir les 7 photos

                          Maison - 89 m² - 4 pièces

                          285 000 €
                          Et si votre projet de maison prenait enfin vie dans un cadre calme et verdoyant ?Je vous propose un projet de construction de maison individuelle neuve, situé sur la commune de Morestel, à seulement quelques minutes des principaux axes, dans un environnement recherché pour sa tranquillité.Le projet comprend une maison d’environ 90m² habitables, fonctionnelle et lumineuse, impla
                          Professionnel Publié le 16 avril à 18:45 Non géolocalisée
                          Vézeronce-Curtin Neuf 3 ch 1 sdb
                          • Maison - 100 m² - 4 pièces
                          • Maison - 100 m² - 4 pièces
                          • Maison - 100 m² - 4 pièces
                          • Maison - 100 m² - 4 pièces
                          • Maison - 100 m² - 4 pièces
                          • Maison - 100 m² - 4 pièces Cliquez pour voir les 6 photos

                          Maison - 100 m² - 4 pièces

                          249 700 €
                          Votre projet de construction de maison à Vézeronce-Curtin, vu avec notre partenaire foncier en exclusivité sur un terrain plat de 700 m². Une maison de 100 m² comprenant 3 chambres spacieuses, un espace de vie lumineux et fonctionnel, des WC séparés, une salle de bain moderne et personnalisable et la possibilité de faire un garage de 20 m². Conforme à la norme RE 2020, hautes p
                          Professionnel Publié il y a plus de 7 jours
                          Vézeronce-Curtin Neuf 3 ch 2 sdb Parking
                          2

                          Ventes de biens immobiliers neufs à Saint-Victor-de-Morestel

                          (5.9 km)
                          • Maison - 85 m² - 5 pièces
                          • Maison - 85 m² - 5 pièces
                          • Maison - 85 m² - 5 pièces
                          • Maison - 85 m² - 5 pièces
                          • Maison - 85 m² - 5 pièces

                          Maison - 85 m² - 5 pièces

                          197 750 €
                          Maison neuve à CONSTRUIRE à Saint-Victor-de-Morestel sur terrain constructible viabilisé de 464 m² non viabilisé et raccordable au tout à l'égout. Située en Isère, à proximité de Morestel, Saint-Victor-de-Morestel offre un cadre agréable pour votre futur projet de construction. Avec ses paysages bucoliques, ses commodités locales et son accessibilité, Saint-Victor-de-Morestel
                          Professionnel Publié il y a plus de 7 jours
                          Saint-Victor-de-Morestel Neuf 3 ch Exposition Sud
                          • Maison - 90 m² - 5 pièces
                          • Maison - 90 m² - 5 pièces
                          • Maison - 90 m² - 5 pièces
                          • Maison - 90 m² - 5 pièces

                          Maison - 90 m² - 5 pièces

                          229 000 €
                          Maison neuve à CONSTRUIRE à Saint-Victor-de-Morestel sur terrain constructible viabilisé de 464 m² non viabilisé et raccordable au tout à l'égout. Située en Isère, à proximité de Morestel, Saint-Victor-de-Morestel offre un cadre agréable pour votre futur projet de construction. Avec ses paysages bucoliques, ses commodités locales et son accessibilité, Saint-Victor-de-Morestel
                          Professionnel Publié il y a plus de 7 jours
                          Saint-Victor-de-Morestel Neuf 3 ch Exposition Sud
                          4

                          Ventes de biens immobiliers neufs à Salagnon

                          (6.3 km)
                          • Maison - 94 m² - 4 pièces
                          • Maison - 94 m² - 4 pièces
                          • Maison - 94 m² - 4 pièces
                          • Maison - 94 m² - 4 pièces
                          • Maison - 94 m² - 4 pièces
                          • Maison - 94 m² - 4 pièces Cliquez pour voir les 9 photos

                          Maison - 94 m² - 4 pièces

                          297 000 €
                          Et si votre projet de maison prenait enfin vie dans un cadre calme et verdoyant ?Je vous propose un projet de construction de maison individuelle neuve, situé sur la commune de Salagnon, à seulement quelques minutes des principaux axes, dans un environnement recherché pour sa tranquillité.Le projet comprend une maison d’environ 90 m² habitables, fonctionnelle et lumineuse, impl
                          Professionnel Publié le 16 avril à 18:46
                          Salagnon Neuf 3 ch 1 sdb
                          • Maison - 91 m² - 4 pièces
                          • Maison - 91 m² - 4 pièces
                          • Maison - 91 m² - 4 pièces
                          • Maison - 91 m² - 4 pièces
                          • Maison - 91 m² - 4 pièces
                          • Maison - 91 m² - 4 pièces Cliquez pour voir les 6 photos

                          Maison - 91 m² - 4 pièces

                          287 000 €
                          Et si votre projet de maison prenait enfin vie dans un cadre calme et verdoyant ?Je vous propose un projet de construction de maison individuelle neuve, situé sur la commune de Salagnon, à seulement quelques minutes des principaux axes, dans un environnement recherché pour sa tranquillité.Le projet comprend une maison d’environ 90 m² habitables, fonctionnelle et lumineuse, impl
                          Professionnel Publié le 16 avril à 18:46
                          Salagnon Neuf 3 ch 1 sdb
                          • Maison - 100 m² - 4 pièces
                          • Maison - 100 m² - 4 pièces
                          • Maison - 100 m² - 4 pièces
                          • Maison - 100 m² - 4 pièces
                          • Maison - 100 m² - 4 pièces
                          • Maison - 100 m² - 4 pièces Cliquez pour voir les 6 photos

                          Maison - 100 m² - 4 pièces

                          255 200 €
                          Votre projet de construction de maison à Salagnon, vu avec notre partenaire foncier en exclusivité sur un terrain plat de 700 m². Une maison de 100 m² comprenant 3 chambres spacieuses, un espace de vie lumineux et fonctionnel, des WC séparés, une salle de bain moderne et personnalisable et la possibilité de faire un garage de 20 m². Conforme à la norme RE 2020, hautes performan
                          Professionnel Publié il y a plus de 7 jours
                          Salagnon Neuf 3 ch 2 sdb Terrasse Parking
                          Maison - 88 m²

                          Maison - 88 m²

                          260 000 €
                          Sur la commune de Salagnon, villa neuve de 88 m² à construire comprenant 3 chambres, grand espace vie, garage 18 m² sur terrain de plus de 400 mètres carrés avec vue dégagée. Ce prix comprend maison, terrain viabilsé et raccordements. Design'Batiment, votre constructeur familial CCMI depuis 30 ans implanté à Bourgoin Jallieu, spécialiste des projets de construction sur mesure e
                          Professionnel Publié il y a plus de 7 jours
                          Salagnon Neuf 3 ch
                          1

                          Vente de bien immobilier neuf à Vasselin

                          (6.5 km)
                          • Maison - 94 m² - 4 pièces
                          • Maison - 94 m² - 4 pièces

                          Maison - 94 m² - 4 pièces

                          272 000 €
                          DESIGN BATIMENT vous propose sur les hauteurs de la commune de Vasselin (limite Dolomieu ) de réaliser votre projet de construction aux Normes RE2020 et tout le confort d'un maison moderne, Une maison de 94m2 habitables avec une grande pièce à vivre lumineuse et 3 chambres ainsi qu'un garage de 25m2. Le tout sur un terrain de plus de 1200m2 bien exposé. Prix comprenant: Maiso
                          Professionnel Publié il y a plus de 7 jours Non géolocalisée
                          Vasselin Neuf 3 ch
                          3

                          Ventes de biens immobiliers neufs à Soleymieu

                          (6.7 km)
                          • Maison - 85 m² - 5 pièces
                          • Maison - 85 m² - 5 pièces
                          • Maison - 85 m² - 5 pièces
                          • Maison - 85 m² - 5 pièces
                          • Maison - 85 m² - 5 pièces
                          • Maison - 85 m² - 5 pièces Cliquez pour voir les 7 photos

                          Maison - 85 m² - 5 pièces

                          273 500 €
                          Maison neuve à CONSTRUIRE à Soleymieu sur terrain constructible entièrement viabilisé de 636 m² dans un charmant petit lotissement de 3 lots : votre maison sur mesure! Découvrez Soleymieu, une commune pleine de charme nichée dans le département de l'Isère, à quelques minutes de Morestel et des grands axes de communication. Alliant tranquillité et proximité, Soleymieu est l'end
                          Professionnel Publié il y a plus de 7 jours
                          Soleymieu Neuf 3 ch Exposition Sud
                          • Maison - 85 m² - 5 pièces
                          • Maison - 85 m² - 5 pièces
                          • Maison - 85 m² - 5 pièces
                          • Maison - 85 m² - 5 pièces
                          • Maison - 85 m² - 5 pièces
                          • Maison - 85 m² - 5 pièces Cliquez pour voir les 7 photos

                          Maison - 85 m² - 5 pièces

                          255 750 €
                          Maison neuve à CONSTRUIRE à Soleymieu sur terrain constructible entièrement viabilisé de 636 m² dans un charmant petit lotissement de 3 lots : votre maison sur mesure! Découvrez Soleymieu, une commune pleine de charme nichée dans le département de l'Isère, à quelques minutes de Morestel et des grands axes de communication. Alliant tranquillité et proximité, Soleymieu est l'end
                          Professionnel Publié il y a plus de 7 jours
                          Soleymieu Neuf 3 ch Exposition Sud
                          • Maison - 90 m² - 5 pièces
                          • Maison - 90 m² - 5 pièces
                          • Maison - 90 m² - 5 pièces
                          • Maison - 90 m² - 5 pièces
                          • Maison - 90 m² - 5 pièces
                          • Maison - 90 m² - 5 pièces Cliquez pour voir les 6 photos

                          Maison - 90 m² - 5 pièces

                          287 000 €
                          Maison neuve à CONSTRUIRE à Soleymieu sur terrain constructible entièrement viabilisé de 636 m² dans un charmant petit lotissement de 3 lots : votre maison sur mesure! Découvrez Soleymieu, une commune pleine de charme nichée dans le département de l'Isère, à quelques minutes de Morestel et des grands axes de communication. Alliant tranquillité et proximité, Soleymieu est l'end
                          Professionnel Publié il y a plus de 7 jours
                          Soleymieu Neuf 3 ch Exposition Sud
                          4

                          Ventes de biens immobiliers neufs à Saint-Sorlin-de-Morestel

                          (6.7 km)
                          • Maison - 125 m² - 5 pièces
                          • Maison - 125 m² - 5 pièces
                          • Maison - 125 m² - 5 pièces
                          • Maison - 125 m² - 5 pièces

                          Maison - 125 m² - 5 pièces

                          400 000 €
                          À Saint-Sorlin-de-Morestel (38) – Maison contemporaine et familiale de 125 m² sur 860 m² de terrain. Vous rêvez d’un cadre de vie verdoyant, au calme et moderne ? Cette maison à étage de 125 m2 et clé en main coche toutes les cases : 3 chambres dont une suite parentale, espace bureau, beau séjour ouvert sur grand jardin avec plusieurs expositions, finitions haut de gamme, RE 20
                          Professionnel Publié hier à 18:46
                          Saint-Sorlin-de-Morestel Neuf 4 ch 2 sdb
                          • Maison - 120 m² - 4 pièces
                          • Maison - 120 m² - 4 pièces
                          • Maison - 120 m² - 4 pièces
                          • Maison - 120 m² - 4 pièces

                          Maison - 120 m² - 4 pièces

                          360 000 €
                          À Saint-Sorlin-de-Morestel (38) – Maison contemporaine et familiale de 120 m² sur 860 m² de terrain. Vous rêvez d’un cadre de vie verdoyant, au calme et moderne ? Cette maison à étage de 120 m2 et clé en main coche toutes les cases : 3 chambres dont une suite parentale, beau séjour ouvert sur grand jardin avec plusieurs expositions, finitions haut de gamme, RE 2020 & confort ab
                          Professionnel Publié hier à 18:46
                          Saint-Sorlin-de-Morestel Neuf 3 ch 2 sdb
                          • Maison - 135 m² - 5 pièces
                          • Maison - 135 m² - 5 pièces
                          • Maison - 135 m² - 5 pièces
                          • Maison - 135 m² - 5 pièces

                          Maison - 135 m² - 5 pièces

                          405 000 €
                          À Saint-Sorlin-de-Morestel (38) – Maison contemporaine et familiale de 135 m² sur 860 m² de terrain. Vous rêvez d’un cadre de vie verdoyant, au calme et moderne ? Cette maison à étage de 135 m2 et clé en main coche toutes les cases : 4 chambres dont une suite parentale, espace bureau, beau séjour ouvert sur grand jardin avec plusieurs expositions, finitions haut de gamme, RE 20
                          Professionnel Publié hier à 18:46
                          Saint-Sorlin-de-Morestel Neuf 4 ch 2 sdb
                          • Maison - 79 m² - 4 pièces
                          • Maison - 79 m² - 4 pièces
                          • Maison - 79 m² - 4 pièces
                          • Maison - 79 m² - 4 pièces
                          • Maison - 79 m² - 4 pièces
                          • Maison - 79 m² - 4 pièces Cliquez pour voir les 7 photos

                          Maison - 79 m² - 4 pièces

                          224 000 €
                          Et si votre projet de maison prenait enfin vie dans un cadre calme et verdoyant ?Je vous propose un projet de construction de maison individuelle neuve, situé sur la commune de Saint-Sorlin-De-Morestel, à seulement quelques minutes des principaux axes, dans un environnement recherché pour sa tranquillité.Le projet comprend une maison d’environ 80 m² habitables, fonctionnelle et
                          Professionnel Publié le 16 avril à 18:45
                          Saint-Sorlin-de-Morestel Neuf 3 ch 1 sdb
                          6

                          Ventes de biens immobiliers neufs à Saint-Chef

                          (7.6 km)
                          • Maison - 89 m² - 4 pièces
                          • Maison - 89 m² - 4 pièces
                          • Maison - 89 m² - 4 pièces
                          • Maison - 89 m² - 4 pièces
                          • Maison - 89 m² - 4 pièces
                          • Maison - 89 m² - 4 pièces Cliquez pour voir les 7 photos

                          Maison - 89 m² - 4 pièces

                          245 000 €
                          " Et si vous construisiez la maison de vos rêves ? " Imaginez une maison parfaitement adaptée à votre style de vie, pensée selon vos envies et construite pour votre confort. Plus qu'un projet, c'est une aventure unique ou chaque détail compte : - Un accompagnement de A a Z - Un design à votre image - un espace optimisé pour votre bien-être - Des Matériaux modernes et durabl
                          Professionnel Publié le 19 avril à 18:46
                          Saint-Chef Neuf 3 ch 1 sdb
                          • Maison - 89 m² - 4 pièces
                          • Maison - 89 m² - 4 pièces
                          • Maison - 89 m² - 4 pièces
                          • Maison - 89 m² - 4 pièces
                          • Maison - 89 m² - 4 pièces
                          • Maison - 89 m² - 4 pièces Cliquez pour voir les 7 photos

                          Maison - 89 m² - 4 pièces

                          280 000 €
                          " Et si vous construisiez la maison de vos rêves ? " Imaginez une maison parfaitement adaptée à votre style de vie, pensée selon vos envies et construite pour votre confort. Plus qu'un projet, c'est une aventure unique ou chaque détail compte : - Un accompagnement de A a Z - Un design à votre image - un espace optimisé pour votre bien-être - Des Matériaux modernes et durabl
                          Professionnel Publié le 19 avril à 18:45
                          Saint-Chef Neuf 3 ch 1 sdb
                          • Maison - 91 m² - 4 pièces
                          • Maison - 91 m² - 4 pièces
                          • Maison - 91 m² - 4 pièces
                          • Maison - 91 m² - 4 pièces
                          • Maison - 91 m² - 4 pièces
                          • Maison - 91 m² - 4 pièces Cliquez pour voir les 6 photos

                          Maison - 91 m² - 4 pièces

                          276 000 €
                          Et si votre projet de maison prenait enfin vie dans un cadre calme et verdoyant ?Je vous propose un projet de construction de maison individuelle neuve, situé sur la commune de Saint-Chef, à seulement quelques minutes des principaux axes, dans un environnement recherché pour sa tranquillité.Le projet comprend une maison d’environ 90 m² habitables, fonctionnelle et lumineuse, im
                          Professionnel Publié le 16 avril à 18:46
                          Saint-Chef Neuf 3 ch 1 sdb
                          • Maison - 94 m² - 4 pièces
                          • Maison - 94 m² - 4 pièces
                          • Maison - 94 m² - 4 pièces
                          • Maison - 94 m² - 4 pièces
                          • Maison - 94 m² - 4 pièces
                          • Maison - 94 m² - 4 pièces Cliquez pour voir les 9 photos

                          Maison - 94 m² - 4 pièces

                          297 000 €
                          Et si votre projet de maison prenait enfin vie dans un cadre calme et verdoyant ?Je vous propose un projet de construction de maison individuelle neuve, situé sur la commune de Saint Chef, à seulement quelques minutes des principaux axes, dans un environnement recherché pour sa tranquillité.Le projet comprend une maison d’environ 90 m² habitables, fonctionnelle et lumineuse, im
                          Professionnel Publié le 16 avril à 18:46
                          Saint-Chef Neuf 3 ch 1 sdb
                          • Maison - 100 m² - 5 pièces
                          • Maison - 100 m² - 5 pièces
                          • Maison - 100 m² - 5 pièces
                          • Maison - 100 m² - 5 pièces
                          • Maison - 100 m² - 5 pièces
                          • Maison - 100 m² - 5 pièces Cliquez pour voir les 6 photos

                          Maison - 100 m² - 5 pièces

                          295 400 €
                          Votre projet de construction de maison à Saint-Chef, vu avec notre partenaire foncier sur un terrain de 500 m². Une maison de 100 m² comprenant 3 chambres spacieuses, un espace de vie lumineux et fonctionnel, des WC séparés, une salle de bain moderne et personnalisable et la possibilité de faire un garage de 20 m². Conforme à la norme RE 2020, hautes performances énergétiques !
                          Professionnel Publié il y a plus de 7 jours
                          Saint-Chef Neuf 4 ch 2 sdb Parking
                          9

                          Ventes de biens immobiliers neufs à Trept

                          (8.4 km)
                          • Maison - 86 m² - 4 pièces
                          • Maison - 86 m² - 4 pièces
                          • Maison - 86 m² - 4 pièces
                          • Maison - 86 m² - 4 pièces
                          • Maison - 86 m² - 4 pièces
                          • Maison - 86 m² - 4 pièces Cliquez pour voir les 7 photos

                          Maison - 86 m² - 4 pièces

                          288 000 €
                          " Et si vous construisiez la maison de vos rêves ? " Imaginez une maison parfaitement adaptée à votre style de vie, pensée selon vos envies et construite pour votre confort. Plus qu'un projet, c'est une aventure unique ou chaque détail compte : - Un accompagnement de A a Z - Un design à votre image - un espace optimisé pour votre bien-être - Des Matériaux modernes et durabl
                          Professionnel Publié le 19 avril à 18:46
                          Trept Neuf 3 ch 1 sdb
                          • Maison - 89 m² - 4 pièces
                          • Maison - 89 m² - 4 pièces
                          • Maison - 89 m² - 4 pièces
                          • Maison - 89 m² - 4 pièces
                          • Maison - 89 m² - 4 pièces
                          • Maison - 89 m² - 4 pièces Cliquez pour voir les 7 photos

                          Maison - 89 m² - 4 pièces

                          285 000 €
                          Et si votre projet de maison prenait enfin vie dans un cadre calme et verdoyant ?Je vous propose un projet de construction de maison individuelle neuve, situé sur la commune de Morestel, à seulement quelques minutes des principaux axes, dans un environnement recherché pour sa tranquillité.Le projet comprend une maison d’environ 90m² habitables, fonctionnelle et lumineuse, impla
                          Professionnel Publié le 16 avril à 18:45 Non géolocalisée
                          Trept Neuf 3 ch 1 sdb
                          • Maison - 94 m² - 4 pièces
                          • Maison - 94 m² - 4 pièces
                          • Maison - 94 m² - 4 pièces
                          • Maison - 94 m² - 4 pièces
                          • Maison - 94 m² - 4 pièces
                          • Maison - 94 m² - 4 pièces Cliquez pour voir les 9 photos

                          Maison - 94 m² - 4 pièces

                          276 000 €
                          Et si votre projet de maison prenait enfin vie dans un cadre calme et verdoyant ?Je vous propose un projet de construction de maison individuelle neuve, situé sur la commune de Morestel, à seulement quelques minutes des principaux axes, dans un environnement recherché pour sa tranquillité.Le projet comprend une maison d’environ 90m² habitables, fonctionnelle et lumineuse, impla
                          Professionnel Publié le 16 avril à 18:45 Non géolocalisée
                          Trept Neuf 3 ch 1 sdb
                          • Maison - 110 m² - 5 pièces
                          • Maison - 110 m² - 5 pièces
                          • Maison - 110 m² - 5 pièces
                          • Maison - 110 m² - 5 pièces

                          Maison - 110 m² - 5 pièces

                          348 000 €
                          DEMEURES CALADOISES constructeur depuis 50 ans vous propose cette belle parcelle hors lotissement sur la commune dynamique de Trept. Venez découvrir ce terrain qui accueillera votre projet de construction pensé ensemble. Pour toutes demandes de visites ou autres contactez moiJérôme VINGUETAMA Chargé de Projets jvinguetama@demeures-caladoises.fr 04 74 09 45 45 06 03 97 27 14 187
                          Professionnel Publié le 16 avril à 10:47
                          Trept Neuf 4 ch 2 sdb
                          • Maison - 126 m² - 5 pièces
                          • Maison - 126 m² - 5 pièces
                          • Maison - 126 m² - 5 pièces
                          • Maison - 126 m² - 5 pièces

                          Maison - 126 m² - 5 pièces

                          345 000 €
                          Sur la commune prisée de Trept (38), dans un environnement résidentiel calme et verdoyant, découvrez ce projet de maison à étage signé Demeures Caladoises.Développant 126 m² habitables, cette villa contemporaine séduit par son architecture soignée, ses volumes généreux et sa conception pensée pour un confort de vie optimal.Le rez-de-chaussée s’ouvre sur une vaste pièce de vie b
                          Professionnel Publié le 15 avril à 10:46
                          Trept Neuf 4 ch 2 sdb

                          Bien immobiliers neufs à Passins. Toutes les ventes immobilières à Passins et aux environs.

                          Recherche en cours...
                          Rechercher dans cette zone