Bureau - 40 m² - 4 pièces à Paris 9
favoris
1 750 € / mois
Description :
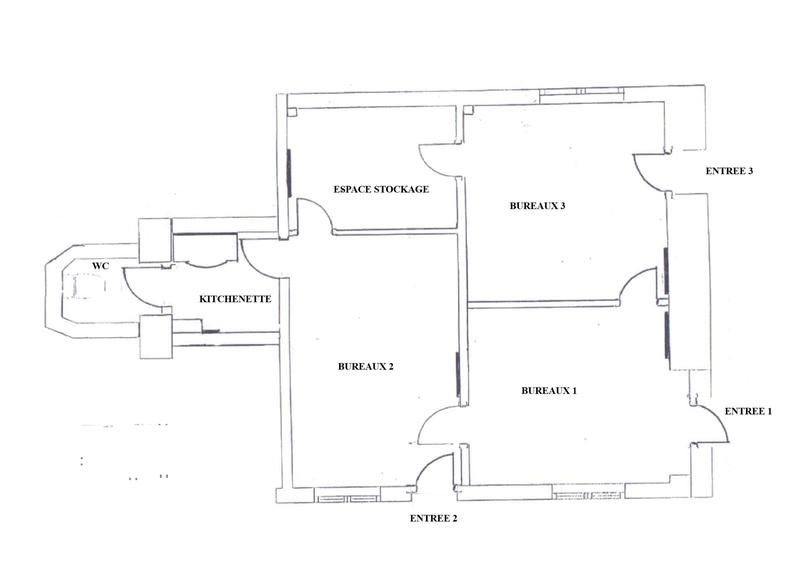
Aximmo Paris 9 vous propose au sein d'un très belk immeuble en PDT, en rez de chaussée sur cour, un espace de bureau composé de 3 bureaux indépendants, d'une salle d'archive, d'un espace cuisine et d'un bloc sanitaire.
Chaque bureau à la faculté d'être accessible indépendamment par une porte palière et peuvent également communiquer entre eux.
Profession libérale autorisée.
Bail 3/6/9 ans
Dépôt de garantie : 3 mois de loyer,
Loyer mensuel : 1 750,00 EUR payable trimestriellement à échoir.
Garanties demandées.
Disponibilité : Avril 2026.
Afficher plus de détails
Informations sur ce bien :
L'intérieur :
-
4 pièces
-
40 m²
-
Sans cuisineInformations complémentairesSans cuisine
L'extérieur :
-
Parking
Autres :
-
Chauffage :Individuel, Radiateur, Électrique
-
Année de construction :1900
-
Étage :RDC
Copropriété :
-
Copropriété :Oui
-
Nombre de lots :53
Synthèse
Bureau à Paris 9
1 750 € / mois
Surface :
40 m²
Transaction :
Location (locaux professionnels)
Référence :
L170005263
Montant de la caution :
5 250 €
Honoraires :
6 300 €
Mandat :
Exclusif
Date de publication :
Aujourd'hui à 06:30
Contacter l'annonceur
Performance énergétique
A
B
C
D
E
F
G
Gaz à effet de serre
A
B
C
D
E
F
G
Agent
AXIMMO
ABISROR Emmanuel
Mettre en avant cette annonce
Signaler une erreur
Localisation :
L'adresse exacte n'est pas renseignée. Le bien se situe dans cette zone.
Performance énergétique :
Logement économe
A
B
C
D
E
F
348
kWh/m²/an
11
kg CO₂/m²/an
G
Logement énergivore
Faible émission de CO₂
A
B
11
kg CO₂/m²/an
C
D
E
F
G
Forte émission de CO₂
Date du diagnostic :
02 février 2026
Estimation des coûts annuels d’énergie du logement :
746 €
Locations de bureaux à proximité
- 503 locations de bureaux à Paris (2.7 km)
- 10 locations de bureaux à Saint-Ouen (3.7 km)
- 15 locations de bureaux à Clichy (3.7 km)
- 16 locations de bureaux à Levallois-Perret (4 km)
- 1 location de bureau à L'Île-Saint-Denis (5.9 km)
- 6 locations de bureaux à Gennevilliers (6.1 km)
- 2 locations de bureaux à Bagnolet (6.3 km)
- 4 locations de bureaux à Villeneuve-la-Garenne (6.5 km)
- 1 location de bureau à Saint-Mandé (7.1 km)