Bureau - 105 m² à Paris 8
favoris
5 337 € / mois
Description :
En plein cœur du QCA dans le 8ème arrondissement, dans un immeuble en pierre de taille à louer un local professionnel de 105m².
CARACTERISTIQUES DE L'OFFRE
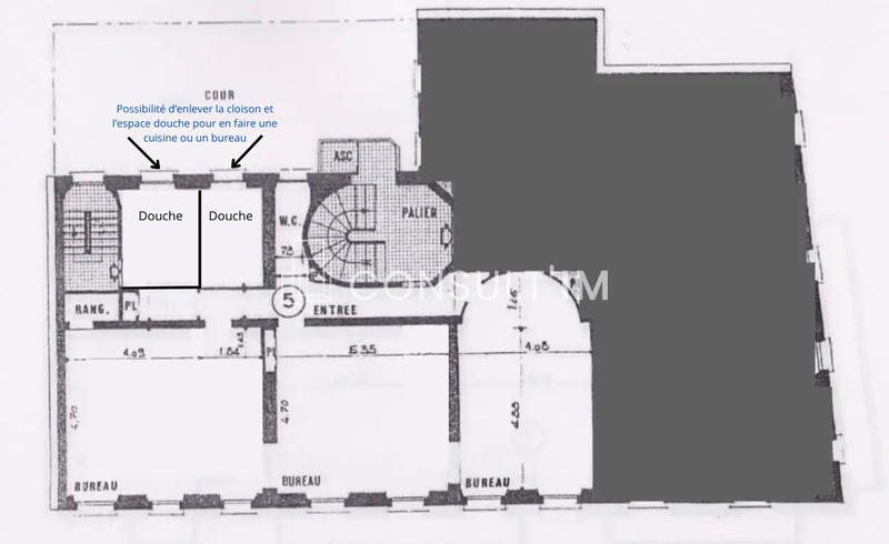
Trois grands bureaux
Un sanitaire
Deux salles d'eau
Possibilité de transformer les salles d'eau en cuisine ou en bureau
Acompagnement prévu de la part du bailleur pour rafraichissement
Lumineux
Immeuble de bon standing
Parquet, moulures et cheminées
Beaux volumesCONDITIONS FINANCIERES
Bail : Professionnel 6 ans
Loyer mensuel : 4 987,50 € HT/HC
Disponibilité : Immédiate
Afficher plus de détails
Informations sur ce bien :
L'intérieur :
-
105 m²
Copropriété :
-
Taxe foncière :2 782 €
Synthèse
Bureau à Paris 8
5 337 € / mois
Surface :
105 m²
Transaction :
Location (locaux professionnels)
Référence :
10313607
Charges :
349,13 €
Informations complémentaires
Les charges sont inclues dans le loyer affiché
Disponibilité :
24/03/2025
Date de publication :
Il y a plus de 7 jours
Contacter l'annonceur
Agent
CONSULT IM
Mettre en avant cette annonce
Signaler une erreur
Localisation :
L'adresse exacte n'est pas renseignée. Le bien se situe dans cette zone.
Locations de bureaux à proximité
- 503 locations de bureaux à Paris (3 km)
- 16 locations de bureaux à Levallois-Perret (3.2 km)
- 15 locations de bureaux à Clichy (3.7 km)
- 10 locations de bureaux à Saint-Ouen (4.6 km)
- 5 locations de bureaux à Puteaux (5.9 km)
- 6 locations de bureaux à Gennevilliers (6.2 km)
- 4 locations de bureaux à Malakoff (6.2 km)
- 10 locations de bureaux à La Garenne-Colombes (6.6 km)
- 1 location de bureau à L'Île-Saint-Denis (6.9 km)