Bureau - 109 m² à Paris 10
favoris
5 360 € / mois
Description :
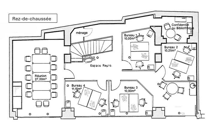
Dans un environnement dynamique, entre le théâtre de la Renaissance et la place de la République, Consult'im vous propose des bureaux 109 m² au RDC avec très beau linéaire de façade d'environ 15 mètres. CARACTERISTIQUES DE L'OFFRE
Au rez-de-chaussée :
Un espace de vente / accueil
Plusieurs espaces de bureaux facilement décloisonnables
Une grande salle de réunion avec une entrée indépendante
Au sous-sol :
Une salle de réunion
Un bloc sanitaire H/F
CONDITIONS FINANCIERES
Bail : 3/6/9 ans
Loyer mensuel : 5 359 €/mois HT HC
Disponibilité : Immédiate
Afficher plus de détails
Informations sur ce bien :
L'intérieur :
-
109 m²
Synthèse
Bureau à Paris 10
5 360 € / mois
Surface :
109 m²
Transaction :
Location (locaux professionnels)
Référence :
10315883
Date de publication :
Il y a plus de 7 jours
Contacter l'annonceur
Agent
CONSULT IM
Mettre en avant cette annonce
Signaler une erreur
Localisation :
L'adresse exacte n'est pas renseignée. Le bien se situe dans cette zone.
Locations de bureaux à proximité
- 503 locations de bureaux à Paris (2.5 km)
- 6 locations de bureaux à Pantin (4 km)
- 1 location de bureau à Aubervilliers (4.1 km)
- 10 locations de bureaux à Saint-Ouen (4.2 km)
- 2 locations de bureaux à Bagnolet (4.7 km)
- 1 location de bureau à Romainville (5.5 km)
- 1 location de bureau à Saint-Mandé (5.8 km)
- 1 location de bureau à L'Île-Saint-Denis (6.2 km)
- 1 location de bureau à La Courneuve (6.6 km)