Retour
Rechercher
Lieu
Où ?
    Type de bien
    Quel type de projet ?
    Particulier Entreprise
    Quel type de bien ?
        Prix
        Quel budget ?
              Surface
              Quelle surface ?
                    Pièces
                    Combien de pièces ?
                      Combien de chambres ?
                          258

                          Annonces immobilières à Paris 3

                          Recherche 258
                          Carte
                          • Appartement - 52 m² - 3 pièces
                          • Appartement - 52 m² - 3 pièces
                          • Appartement - 52 m² - 3 pièces
                          • Appartement - 52 m² - 3 pièces
                          • Appartement - 52 m² - 3 pièces
                          • Appartement - 52 m² - 3 pièces Cliquez pour voir les 17 photos

                          Appartement - 52 m² - 3 pièces

                          561 800 €
                          Paris 3e - 3 pièces (1 chambre) de 52 m² situé dans le très prisé quartier Sainte-Avoye. Découvrez ce charmant et lumineux appartement de 52 m², idéalement situé dans un quartier dynamique et recherché tout en étant au calme. Niché au 6e et dernier étage avec ascenseur d'un bel immeuble, il offre une excellente luminosité naturelle grâce à sa double orientation Est et Ouest.
                          Professionnel Publié hier à 09:34
                          Paris 3 1 ch 1 sdb Dernier étage Exposition Est
                          • Appartement - 39 m² - 2 pièces
                          • Appartement - 39 m² - 2 pièces
                          • Appartement - 39 m² - 2 pièces
                          • Appartement - 39 m² - 2 pièces
                          • Appartement - 39 m² - 2 pièces
                          • Appartement - 39 m² - 2 pièces Cliquez pour voir les 13 photos

                          Appartement - 39 m² - 2 pièces

                          450 000 €
                          Situé au troisième étage d'un bel immeuble haussmannien de 1900, ce deux-pièces de 40 m2 offre le charme de l'ancien, une belle hauteur sous plafond et un vrai potentiel d'aménagement. Traversant et au calme, il bénéficie d'une vue agréable sur une large cour arborée dont le ravalement intérieur a été récemment réalisé. Le séjour, orienté à l'est, est lumineux. La cuisine indé
                          Professionnel Publié hier à 09:33 Non géolocalisée
                          Paris 3 1 ch 1 sdb 3ème étage
                          • Appartement - 63 m² - 3 pièces
                          • Appartement - 63 m² - 3 pièces
                          • Appartement - 63 m² - 3 pièces
                          • Appartement - 63 m² - 3 pièces
                          • Appartement - 63 m² - 3 pièces
                          • Appartement - 63 m² - 3 pièces Cliquez pour voir les 9 photos

                          Appartement - 63 m² - 3 pièces

                          660 000 €
                          Paris IIIe - RUE DU BOURG L'ABEE - DUPLEX TRAVERSANT CALME ET LUMINEUX AU DERNIER ETAGE - effiCity, l'agence qui estime votre bien en ligne vous propose ce duplex (de 63,14m² Carrez) avec deux chambres à proximité immédiate du Centre national d'art et de culture Georges-Pompidou (Beaubourg) entre le Marais et les Halles (RER A,B & D et Métros 1, 4, 7, 11 & 14) Situé rue du Bour
                          Professionnel Publié le 03 déc. à 09:53
                          Paris 3 2 ch 1 sdb 4ème étage Exposition Sud
                          • Appartement - 45 m² - 2 pièces
                          • Appartement - 45 m² - 2 pièces
                          • Appartement - 45 m² - 2 pièces
                          • Appartement - 45 m² - 2 pièces
                          • Appartement - 45 m² - 2 pièces
                          • Appartement - 45 m² - 2 pièces Cliquez pour voir les 9 photos

                          Appartement - 45 m² - 2 pièces

                          640 000 €
                          Dans le charmant quartier du 3ème arrondissement de Paris, cet appartement de 44 m² offre un cadre de vie élégant et sécurisé. Composé de deux pièces, dont une chambre spacieuse, il séduit par son design moderne et ses matériaux de haute qualité. Le parquet en bois clair se marie parfaitement aux touches contemporaines du mobilier intégré. La cuisine, à la fois fonctionnelle e
                          Professionnel Publié le 03 déc. à 09:12
                          Paris 3 1 ch 1 sdb RDC Exposition Nord-ouest
                          • Appartement - 40 m² - 1 pièce
                          • Appartement - 40 m² - 1 pièce
                          • Appartement - 40 m² - 1 pièce
                          • Appartement - 40 m² - 1 pièce
                          • Appartement - 40 m² - 1 pièce
                          • Appartement - 40 m² - 1 pièce Cliquez pour voir les 15 photos

                          Appartement - 40 m² - 1 pièce

                          1 680 € / mois
                          EXCLUSIVITÉ - Studio d'Exception dans Hôtel Particulier - Rue du Parc Royal - Paris 3? Adresse de prestige - Calme absolu - Vue jardin arboré Le cabinet ICOSIUM IMMO a le privilège de présenter, en exclusivité, un studio rare situé dans l'un des plus remarquables hôtels particuliers de la rue du Parc Royal, au coeur du Marais historique, dans le très recherché 3? arrondissement
                          Professionnel Publié le 03 déc. à 06:14
                          Paris 3 1 sdb 3ème étage Parking
                          • Appartement - 21 m² - 1 pièce
                          • Appartement - 21 m² - 1 pièce
                          • Appartement - 21 m² - 1 pièce
                          • Appartement - 21 m² - 1 pièce
                          • Appartement - 21 m² - 1 pièce
                          • Appartement - 21 m² - 1 pièce Cliquez pour voir les 9 photos

                          Appartement - 21 m² - 1 pièce

                          1 250 € / mois
                          Dans un immeuble historique, à 5 minutes à pied de République et accès à 6 lignes de métro ! Ce beau studio a été refait à neuf avec cachet. Situé au RDC et au fond de la cour intérieure, le logement est au calme absolu tout en étant central dans Paris. Il comprend une pièce principale avec parquet et briques, cuisine ouverte, une salle de bain avec douche, porte serviette chau
                          Professionnel Publié le 02 déc. à 08:55
                          Paris 3 Meublé 1 sdb RDC Terrasse
                          • Studio - 36 m² - 1 pièce
                          • Studio - 36 m² - 1 pièce
                          • Studio - 36 m² - 1 pièce
                          • Studio - 36 m² - 1 pièce
                          • Studio - 36 m² - 1 pièce
                          • Studio - 36 m² - 1 pièce Cliquez pour voir les 11 photos

                          Studio - 36 m² - 1 pièce

                          1 700 € / mois
                          À louer – Studio meublé – 36 m² – Paris 3e Situé rue Portefoin, dans le quartier prisé du Marais, ce studio meublé de 36 m² se trouve au 1er étage avec ascenseur d'un immeuble moderne. L'espace de vie est spacieux et lumineux grâce à ses quatre fenêtres donnant sur cour et sur la terrasse, et comprend un canapé-lit double, un espace repas et un bar. La cuisine ouverte est ent
                          Professionnel Publié le 01 déc. à 08:19
                          Paris 3 Meublé 1 sdb 1er étage
                          • Fonds de commerce - Hôtellerie / Restauration - 71 m²
                          • Fonds de commerce - Hôtellerie / Restauration - 71 m²
                          • Fonds de commerce - Hôtellerie / Restauration - 71 m²

                          Fonds de commerce - Hôtellerie / Restauration - 71 m²

                          305 000 €
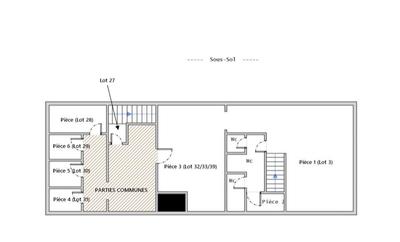
                          Paris 3 ème - Bar - Restaurant très bien situé. Licence IV - Coeur du Marais L'établissement comprend une superficie de 71 M² - Au Rdc une salle 30 couverts cvt - Une cuisine plain pied de 11M² alimentée au Gaz et équipée d'une Extraction - Une réserve de 35 M² au Ss - sol - 5 mètre de hauteur sous plafond - Un Bail 3/6/9 qui finit en juillet 2031, avec un petit loyer de 1610
                          Professionnel Publié le 29 nov. à 05:37 Non géolocalisée
                          Paris 3 Parking
                          • Appartement - 111 m² - 4 pièces
                          • Appartement - 111 m² - 4 pièces
                          • Appartement - 111 m² - 4 pièces
                          • Appartement - 111 m² - 4 pièces
                          • Appartement - 111 m² - 4 pièces
                          • Appartement - 111 m² - 4 pièces Cliquez pour voir les 18 photos

                          Appartement - 111 m² - 4 pièces

                          1 290 000 €
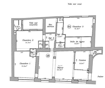
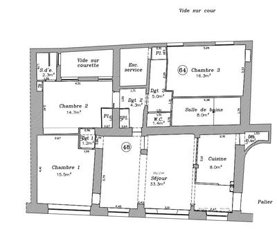
                          Découvrez cet appartement T4 de 111,40 m², situé au premier étage d'un immeuble ancien ravalé. Il combine le charme de l'ancien avec un bon niveau de confort et un agencement fonctionnel, avec une double exposition Sud-Nord. Le bien dispose d'un séjour agréable de 33 m², avec 3 fenêtres en double-vitrage, orienté sud-ouest, donnant sur une rue calme, à sens unique. La cuisine a
                          Professionnel Publié le 28 nov. à 05:59
                          Paris 3 3 ch 2 sdb 1er étage Parking
                          • Fonds de commerce - Hôtellerie / Restauration - 48 m²
                          • Fonds de commerce - Hôtellerie / Restauration - 48 m²
                          • Fonds de commerce - Hôtellerie / Restauration - 48 m²

                          Fonds de commerce - Hôtellerie / Restauration - 48 m²

                          150 000 €
                          Canal Saint Martin - 75010 - Vente d'un fonds de commerce de restauration rapide situé sur un emplacement très dynamique du 10ème arrondissement. Flux de passage très important. Le local de 48m2 comprend : - 26 places en salle et 8 en terrasse - Une cuisine de plain pied ouverte sur la salle - Une belle façade de 6 mètres qui s'ouvre entièrement - Bail 3/6/9 avec un petit loyer
                          Professionnel Publié le 28 nov. à 05:41
                          Paris 3 Parking
                          • Local d'activité / Entrepôt - 38 m²
                          • Local d'activité / Entrepôt - 38 m²
                          • Local d'activité / Entrepôt - 38 m²
                          • Local d'activité / Entrepôt - 38 m²
                          • Local d'activité / Entrepôt - 38 m²
                          • Local d'activité / Entrepôt - 38 m² Cliquez pour voir les 14 photos

                          Local d'activité / Entrepôt - 38 m²

                          1 929 € / mois
                          Dans un bel immeuble en Pierre de Taille, une boutique situé la rue Meslay, comprenant une surface de vente d'env. 25m2. Une cave voutée en excellent état d'env. 25m². Belle hauteur sous plafond. Vitrine linéaire d'env. 5 mètres. Loyer : 1990 Euros H.T/ H.C. Quartier très dynamique, à deux pas du CNAM et de la porte Saint-Martin. Excellent emplacement dans la partie la plus
                          Professionnel Publié le 27 nov. à 11:23 Non géolocalisée
                          Paris 3
                          • Appartement - 53 m² - 3 pièces
                          • Appartement - 53 m² - 3 pièces

                          Appartement - 53 m² - 3 pièces

                          590 000 €
                          En Exclusivité, Beaulieu Le Marais vous presente, Un Appartement lumineux de 54 m², baigné de lumière grâce à son exposition Est-Ouest. Situé au 5ème étage d'un immeuble de 6 étages en excellent état, cet appartement T2/3 offre une vue dégagée qui vous transportera au quotidien. Le séjour spacieux de 26 m² est idéal pour recevoir vos proches ou vous détendre après une longue jo
                          Professionnel Publié le 27 nov. à 06:13 Non géolocalisée
                          Paris 3 1 ch 1 sdb 5ème étage Parking
                          Parking - 10 m²

                          Parking - 10 m²

                          190 € / mois
                          COEUR DU MARAIS - RUE DES ARCHIVES / RUE HAUDRIETTE Emplacement parking - Immeuble sécurisé. Contact: 01 53 09 23 53- location18@immobilier-parisien.fr Depuis 25 ans, nous sommes à votre service pour être le meilleur conseiller à chaque étape de vos projets.L'Immobilier Parisien, la meilleure adresse pour trouver la vôtre !
                          Professionnel Publié il y a plus de 7 jours
                          Paris 3 Parking
                          • Fonds de commerce - 30 m²
                          • Fonds de commerce - 30 m²

                          Fonds de commerce - 30 m²

                          198 000 €
                          75003 - PARIS - QUARTIER DES ARCHIVES - FOND DE COMMERCES - 29m2 À vendre fonds de commerce salon de coiffure de 29 m², idéalement situé sur rue très fréquenté dans ce quartier dynamique. Superficie : 29 m² Équipement complet : 2 postes de coiffage, 2 bacs Exploitation : aucun salarié à reprendre Loyer : 2000 € TTC / mois Motif de vente : départ en retraite Fonds de com
                          Professionnel Publié il y a plus de 7 jours
                          Paris 3
                          • Studio - 30 m² - 2 pièces
                          • Studio - 30 m² - 2 pièces
                          • Studio - 30 m² - 2 pièces
                          • Studio - 30 m² - 2 pièces
                          • Studio - 30 m² - 2 pièces
                          • Studio - 30 m² - 2 pièces Cliquez pour voir les 9 photos

                          Studio - 30 m² - 2 pièces

                          447 000 €
                          Charme authentique – Mezzanine – Orientation Sud-Est – Sans vis-à-vis – Idéal investisseur & pied-à-terre – Immeuble du XVIIIᵉ rénové Découvrez ce studio parisien d'exception, niché au 3ᵉ étage d'un immeuble du XVIIIᵉ siècle récemment rénové, au cœur du très recherché quartier des Archives. Dès l'entrée, le charme opère : rampe d'escalier classée, porte blindée, digicode et in
                          Professionnel Publié il y a plus de 7 jours
                          Paris 3 1 ch 1 sdb 3ème étage
                          • Appartement - 43 m² - 2 pièces
                          • Appartement - 43 m² - 2 pièces
                          • Appartement - 43 m² - 2 pièces
                          • Appartement - 43 m² - 2 pièces
                          • Appartement - 43 m² - 2 pièces
                          • Appartement - 43 m² - 2 pièces Cliquez pour voir les 10 photos

                          Appartement - 43 m² - 2 pièces

                          488 000 €
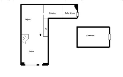
                          Duplex situé 52 RUE DU ROI DE SICILE, Métro Hotel de Ville à 4 minutes à pieds. Ancien local commercial ayant subit un changement de destination pour de l'occupation (possibilité de revenir à un local commercial). En rez-de-chaussée: salon de 25m2, cuisine de 4m2 et salle d'eau de 2m2. A l'étage: chambre de 12m2. CAVE. Honoraires inclus de 4.16% TTC à la charge de l'acquéreur.
                          Professionnel Publié il y a plus de 7 jours
                          Paris 3 1 ch 1 sdb RDC Parking Exposition Sud
                          • Fonds de commerce - Hôtellerie / Restauration - 70 m²
                          • Fonds de commerce - Hôtellerie / Restauration - 70 m²
                          • Fonds de commerce - Hôtellerie / Restauration - 70 m²
                          • Fonds de commerce - Hôtellerie / Restauration - 70 m²

                          Fonds de commerce - Hôtellerie / Restauration - 70 m²

                          87 000 €
                          PARIS 10 - Cession fonds de commerce d'un restaurant traditionnel bien placé dans le 10ème arrondissement - Pas loin du Canal - Quartier dynamique ( écoles , musées , commerces...) - Clientèle bureaux , résidentielle et festive les soirs - Superficie d'environ 70 m² - Sous sol - Cuisine de plain pied ouverte - Extraction - 22 couverts reconfigurables - Droit de terrasse possibl
                          Professionnel Publié il y a plus de 7 jours
                          Paris 3 Parking
                          • Appartement - 89 m² - 4 pièces
                          • Appartement - 89 m² - 4 pièces
                          • Appartement - 89 m² - 4 pièces
                          • Appartement - 89 m² - 4 pièces
                          • Appartement - 89 m² - 4 pièces
                          • Appartement - 89 m² - 4 pièces Cliquez pour voir les 17 photos

                          Appartement - 89 m² - 4 pièces

                          3 747 € / mois
                          3ème - Proche Conservatoire des arts et métiers Dans un bel immeuble Pierre de Taille, au 7ème et dernier étage avec ascenseur, appartement traversant de 95,41 m2 de surface de plancher, très clair et calme avec vue sur les toits, 4 pièces entièrement rénovées avec des prestations de qualité ( 160 141 euros de travaux dont climatisation réversible) ),1 entrée avec placards, 1 s
                          Professionnel Publié il y a plus de 7 jours
                          Paris 3 2 ch 2 sdb Dernier étage Parking Exposition Est
                          • Appartement - 52 m² - 2 pièces
                          • Appartement - 52 m² - 2 pièces
                          • Appartement - 52 m² - 2 pièces
                          • Appartement - 52 m² - 2 pièces
                          • Appartement - 52 m² - 2 pièces
                          • Appartement - 52 m² - 2 pièces Cliquez pour voir les 9 photos

                          Appartement - 52 m² - 2 pièces

                          550 000 €
                          T2 pièces - 52,2 m² - Quartier des Halles / Centre Pompidou Venez découvrir cet appartement de 2 pièces, d'une superficie de 52,2 m², à quelques pas du Centre Pompidou et en plein cœur de Paris, rue Quincampoix. Au 2? étage avec ascenseur d'un immeuble ancien rénové il y a six ans, cet appartement en très bon état vous séduira par son emplacement et son calme. Il se compose
                          Professionnel Publié il y a plus de 7 jours
                          Paris 3 1 ch 2nd étage Parking
                          • Appartement - 55 m² - 3 pièces
                          • Appartement - 55 m² - 3 pièces
                          • Appartement - 55 m² - 3 pièces
                          • Appartement - 55 m² - 3 pièces
                          • Appartement - 55 m² - 3 pièces
                          • Appartement - 55 m² - 3 pièces Cliquez pour voir les 8 photos

                          Appartement - 55 m² - 3 pièces

                          550 000 €
                          51 Rue Meslay / 56 rue Notre Dame de Nazareth, dans une copropriété aux belles parties communes rénovées nous vous proposons un local commercial à rénover. Dispose de l'accord de la copropriété pour le transformer en habitation, ce bien pourra très bien s'y prêter. L'entrée usuelle se situe au rez-de-chaussée intérieure coté rue Meslay, le bien est constitué de 3 pièces avec 6
                          Professionnel Publié il y a plus de 7 jours
                          Paris 3 RDC Parking
                          Parking - 13 m²

                          Parking - 13 m²

                          28 000 €
                          À vendre : emplacement de parking situé au 3e sous-sol d'un parking sécurisé dans le quartier de l'Horloge, en plein cœur de Paris. • Accès facile grâce à une rampe large • Gardien présent 24h/24 et 7j/7 • Charges : 150 € / trimestre • Location très forte demande Accès voiture par la rue Beaubourg et sortie piétonne rue du Grenier-Saint-Lazare. Idéal investisseur ou pour un u
                          Professionnel Publié il y a plus de 7 jours
                          Paris 3
                          • Appartement - 23 m² - 2 pièces
                          • Appartement - 23 m² - 2 pièces
                          • Appartement - 23 m² - 2 pièces
                          • Appartement - 23 m² - 2 pièces
                          • Appartement - 23 m² - 2 pièces
                          • Appartement - 23 m² - 2 pièces Cliquez pour voir les 13 photos

                          Appartement - 23 m² - 2 pièces

                          245 000 €
                          Nicolas BORGE vous propose ce bien : Paris 3ᵉ – Porte Saint-Martin / Arts-et-Métiers À deux pas des lignes 4, 8 et 9, Valeur Immo Paris vous présente ce 2 pièces de 23 m² Carrez, situé au 5ᵉ et dernier étage sur cour d'un immeuble du XVIIIᵉ siècle (sans ascenseur). Calme absolu, luminosité et absence de vis-à-vis caractérisent cet appartement au charme de l'ancien, récemment
                          Professionnel Publié il y a plus de 7 jours
                          Paris 3 1 ch 2 sdb Dernier étage
                          • Appartement - 23 m² - 1 pièce
                          • Appartement - 23 m² - 1 pièce
                          • Appartement - 23 m² - 1 pièce
                          • Appartement - 23 m² - 1 pièce
                          • Appartement - 23 m² - 1 pièce
                          • Appartement - 23 m² - 1 pièce Cliquez pour voir les 12 photos

                          Appartement - 23 m² - 1 pièce

                          2 350 € / mois
                          ## Space Eligible au bail mobilité. Notre bien de 23 m² est idéalement situé dans le Haut Marais, enclave emblématique de Paris, imprégnée d'histoire, de diversité et de vie parisienne. La proximité du studio avec des sites emblématiques tels que le Centre Pompidou, le Musée des Arts et Métiers et la Place des Vosges vous permettra d'explorer le riche patrimoine culturel prop
                          Professionnel Publié il y a plus de 7 jours
                          Paris 3 Meublé 2 sdb 1er étage
                          • Fonds de commerce - Hôtellerie / Restauration - 100 m²
                          • Fonds de commerce - Hôtellerie / Restauration - 100 m²
                          • Fonds de commerce - Hôtellerie / Restauration - 100 m²

                          Fonds de commerce - Hôtellerie / Restauration - 100 m²

                          288 800 €
                          Paris 11e - Bar pur (Licence IV) tout équipé situé dans une rue très passante. Ce magnifique bar comprend : - 80m² env. au RDC avec une capacité d'accueil de 70 personnes (assis + debout) - une réserve au sous-sol - un grand comptoir brasseur - équipé d'un système son Bail 3/6/9, reste 8 ans, avec actuellement un loyer de 3912€/ mois (net TVA) HC Contactez Pierre-Alexandre A
                          Professionnel Publié il y a plus de 7 jours
                          Paris 3 Parking
                          • Appartement - 48 m² - 2 pièces
                          • Appartement - 48 m² - 2 pièces
                          • Appartement - 48 m² - 2 pièces
                          • Appartement - 48 m² - 2 pièces
                          • Appartement - 48 m² - 2 pièces
                          • Appartement - 48 m² - 2 pièces Cliquez pour voir les 9 photos

                          Appartement - 48 m² - 2 pièces

                          1 990 € / mois
                          A deux pas du métro Rue Saint Anastase, dans un immeuble ancien où vécu jadis Jules Hardouin Mansart premier architecte de Louis XIV, se trouve au 3ème étage sans ascenseur un appartement de charme de 48,41m2 lumineux, haut de plafond meublé offrant une entrée desservant une belle pièce à vivre avec poutres apparentes et cheminée, chambre avec placard, cuisine aménagée semi équ
                          Professionnel Publié il y a plus de 7 jours
                          Paris 3 Meublé 1 ch 1 sdb 3ème étage Parking
                          • Appartement - 55 m² - 3 pièces
                          • Appartement - 55 m² - 3 pièces
                          • Appartement - 55 m² - 3 pièces
                          • Appartement - 55 m² - 3 pièces
                          • Appartement - 55 m² - 3 pièces
                          • Appartement - 55 m² - 3 pièces Cliquez pour voir les 13 photos

                          Appartement - 55 m² - 3 pièces

                          4 300 € / mois
                          ## Space Ce logement est disponible pour un bail mobilité UNIQUEMENT. Le bail mobilité est un type de bail de location meublée de courte durée. Il vise à faciliter la mobilité des locataires, et notamment ceux amenés à déménager pour des raisons professionnelles (mutation ou mission), les étudiants, les jeunes en formation, en alternance ou en stage. Il s'agit d'un superbe ap
                          Professionnel Publié il y a plus de 7 jours
                          Paris 3 Meublé 1 sdb 2nd étage
                          • Appartement - 90 m² - 2 pièces
                          • Appartement - 90 m² - 2 pièces
                          • Appartement - 90 m² - 2 pièces
                          • Appartement - 90 m² - 2 pièces
                          • Appartement - 90 m² - 2 pièces
                          • Appartement - 90 m² - 2 pièces Cliquez pour voir les 12 photos

                          Appartement - 90 m² - 2 pièces

                          5 000 € / mois
                          ## Space Bienvenue dans cet appartement niché au cœur du Marais. Avec son emplacement exceptionnel en face des Archives Nationales, vous serez idéalement placé pour découvrir la capitale et ses trésors. D'une superficie de 90m², cet appartement lumineux est situé au 3ᵉ étage, accessible par escaliers et peut accueillir jusqu'à 4 personnes tout en offrant le confort nécessair
                          Professionnel Publié il y a plus de 7 jours
                          Paris 3 Meublé 2 ch 2 sdb 3ème étage
                          • Appartement - 29 m² - 1 pièce
                          • Appartement - 29 m² - 1 pièce
                          • Appartement - 29 m² - 1 pièce
                          • Appartement - 29 m² - 1 pièce
                          • Appartement - 29 m² - 1 pièce
                          • Appartement - 29 m² - 1 pièce Cliquez pour voir les 10 photos

                          Appartement - 29 m² - 1 pièce

                          2 100 € / mois
                          ## Space Il s'agit d'un appartement d'une chambre situé au 3ème étage avec ascenseur d'un immeuble proche du fameux Marché Couvert des Enfants Rouges et de la très belle Place des Vosges à moins de 10 minutes à pieds ! C'est un quartier vivant et animé, idéal pour ceux qui souhaitent profiter de tout ce que la capitale française a à offrir. Situé au coeur du Marais, ce quartie
                          Professionnel Publié il y a plus de 7 jours
                          Paris 3 Meublé 1 sdb 3ème étage
                          • Appartement - 18 m² - 1 pièce
                          • Appartement - 18 m² - 1 pièce
                          • Appartement - 18 m² - 1 pièce
                          • Appartement - 18 m² - 1 pièce
                          • Appartement - 18 m² - 1 pièce
                          • Appartement - 18 m² - 1 pièce Cliquez pour voir les 12 photos

                          Appartement - 18 m² - 1 pièce

                          2 000 € / mois
                          ## Space Eligible au bail mobilité Bienvenue dans ce charmant studio de 18 m² situé au 1er étage sans ascenseur d'un immeuble typiquement parisien, rue Notre Dame de Nazareth, dans le 3ème arrondissement de Paris. Idéalement niché au cœur du Marais, ce studio moderne offre un cadre de vie exceptionnel. Dès l'entrée, vous serez séduit par l'agencement optimisé de cet espace.
                          Professionnel Publié il y a plus de 7 jours
                          Paris 3 Meublé 1 sdb 1er étage
                          • Appartement - 22 m² - 1 pièce
                          • Appartement - 22 m² - 1 pièce
                          • Appartement - 22 m² - 1 pièce
                          • Appartement - 22 m² - 1 pièce
                          • Appartement - 22 m² - 1 pièce
                          • Appartement - 22 m² - 1 pièce Cliquez pour voir les 13 photos

                          Appartement - 22 m² - 1 pièce

                          2 200 € / mois
                          ## Space Ce logement est disponible pour un bail mobilité UNIQUEMENT. Le bail mobilité est un type de bail de location meublée de courte durée. Il vise à faciliter la mobilité des locataires, et notamment ceux amenés à déménager pour des raisons professionnelles (mutation ou mission), les étudiants, les jeunes en formation, en alternance ou en stage. Il s'agit d'un studio de
                          Professionnel Publié il y a plus de 7 jours
                          Paris 3 Meublé 2 sdb 4ème étage

                          Toutes les annonces immobilières à Paris 3 et aux environs. Achat, vente et location d'immobilier à Paris 3. Le site immobilier de Paris 3.

                          Recherche en cours...
                          Rechercher dans cette zone