Appartement - 53 m² - 3 pièces à Paris 2

favoris
  • Appartement - 53 m² - 3 pièces
  • Appartement - 53 m² - 3 pièces
  • Appartement - 53 m² - 3 pièces
540 000 €
53 m²
3 pièces
2 chambres

Description :

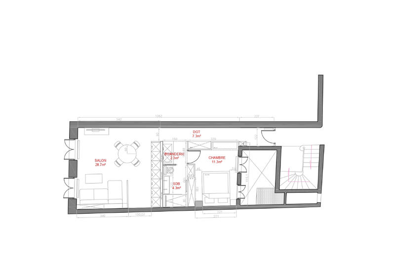
Vente d'un appartement trois pièces à Paris 2ème - Secteur Montorgueil Description du bien Situé dans le 2ème arrondissement de Paris, secteur Montorgueil, à proximité du métro Sentier, cet appartement trois pièces se trouve au premier étage d'un immeuble équipé d'un ascenseur. Disposition et caractéristiques Le bien comprend une entrée, un séjour, deux chambres et une salle de bain. L'appartement bénéficie d'une double exposition sur rue et sur cour. Des travaux sont à prévoir, offrant ainsi une opportunité de personnalisation. Potentiel de restructuration Il est possible de restructurer l'appartement en deux pièces, comprenant un double séjour, une chambre, une salle de bain et une cuisine. Informations complémentaires ?Surface : 53 m² ?Prix de vente : 540 000 euros FAI ?Contact : 06 62 10 42 42 (5.88 % honoraires TTC à la charge de l'acquéreur.) Copropriété de 27 lots ().

Afficher plus de détails

Informations sur ce bien :

L'intérieur :

  • 3 pièces
  • 53 m²
    Informations complémentaires
    Surface habitable : 53 m²
  • 2 Chambres
  • Séjour de 20 m²

Autres :

  • Étage :
    1er étage
    Informations complémentaires
    Nombre d'étages de la construction : 5
  • Nombre de niveaux :
    1

Copropriété :

  • Nombre de lots :
    27
Synthèse
Appartement à Paris 2
540 000 €
Surface : 53 m²
Prix au m² : 10 189 €
Transaction :
Achat
Référence :
1163
Date de publication :
Il y a plus de 7 jours
Appartement - 53 m² - 3 pièces
Performance énergétique
A
B
C
D
E
F
G
Gaz à effet de serre
A
B
C
D
E
F
G
Agent
CHB Immo
Jacques NALDET
Appeler
Écrire
Mettre en avant cette annonce
Signaler une erreur

Localisation :

L'adresse exacte n'est pas renseignée. Le bien se situe dans cette zone.

Performance énergétique :

Logement économe
A
B
C
D
E
F
G
≥ 421
kWh/m²/an
≥ 101
kg CO₂/m²/an
Logement énergivore
Faible émission de CO₂
A
B
C
D
E
F
G
≥ 101
kg CO₂/m²/an
Forte émission de CO₂
Date du diagnostic : 08 juillet 2025
Annonces similaires
Annonces immobilières récentes