Bureau - 119 m² à Paris 18
favoris
797 300 €
Description :
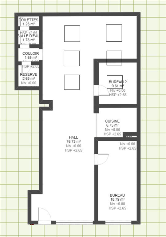
LOCAUX VENDUS OCCUPESDans un immeuble de standing en bon état, à louer au RDC une surface de 119 m²CARACTERISTIQUES DE L'OFFRE
Actuellement aménagée en espaces ouverts bénéficiant d'une vitrine de 5,6M
Une salle de réunion
Un bureau
Une cuisine
Bloc sanitaires
Grande souplesse d'aménagement et très peu de contrainte porteuse.
Emplacement de parking en sous-sol (en sus)
CONDITIONS FINANCIERES Locaux vendus occupés : bail 3/6/9 du 1er mars 2021
Loyer : 3075 € HT HC soit 36 900 € / an
797 300 € net vendeur + parking soit 817 300 € net vendeur
Honoraires 5% HT en sus
Afficher plus de détails
Informations sur ce bien :
L'intérieur :
-
119 m²
Copropriété :
-
Taxe foncière :2 056 €
Synthèse
Bureau à Paris 18
797 300 €
Surface :
119 m²
Prix au m² :
6 700 €
Transaction :
Achat (professionnels)
Référence :
10316164
Date de publication :
Il y a plus de 7 jours
Contacter l'annonceur
Agent
CONSULT IM
Mettre en avant cette annonce
Signaler une erreur
Localisation :
L'adresse exacte n'est pas renseignée. Le bien se situe dans cette zone.
Ventes de bureaux à proximité
- 2 ventes de bureaux à Saint-Ouen (2.7 km)
- 2 ventes de bureaux à Aubervilliers (3.3 km)
- 2 ventes de bureaux à Clichy (3.8 km)
- 171 ventes de bureaux à Paris (3.9 km)
- 2 ventes de bureaux aux Lilas (5 km)
- 3 ventes de bureaux à Bois-Colombes (6.7 km)
- 3 ventes de bureaux à Saint-Mandé (7.2 km)
- 12 ventes de bureaux à Vincennes (8 km)
- 1 vente de bureau à La Garenne-Colombes (8.1 km)