Appartement - 47 m² - 2 pièces à Paris 14
favoris
450 000 €
Description :
Denfert-Rochereau (Paris 14e): A proximité immédiate de Denfert-Rochereau (RER B, Métro 4 et 6) et des commerces (Mouton-Duvernet / Daguerre) ; au 3e étage d'un immeuble ancien bien entretenu, un appartement 2 pièces de 47m2 Carrez.
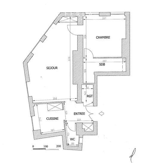
Il se compose d'une entrée avec WC séparé et dressing avec point d'eau, d'un séjour lumineux (3 fenêtres) exposé Est, d'une cuisine indépendante, d'une chambre avec salle de bain.
Une cave en sous-sol.
Appartement très lumineux bénéficiant d'une vue dégagée. Idéalement situé. Idéal primo-accédant ou pied-à-terre.
Afficher plus de détails
Informations sur ce bien :
L'intérieur :
-
2 pièces
-
47 m²Informations complémentairesSurface habitable : 47 m²
-
1 Chambre
-
1 Salle de bain
-
1 Toilette
-
Séjour de 20 m²
-
Cave
Les équipements :
-
Double vitrage
-
Interphone
-
Digicode
Autres :
-
Chauffage :Individuel
-
État :À rafraîchir
-
Exposition :Est
-
Vue :Dégagée
-
Étage :3ème étageInformations complémentairesNombre d'étages de la construction : 5
Copropriété :
-
Charges annuelles :158 €
Synthèse
Appartement à Paris 14
450 000 €
Surface :
47 m²
Prix au m² :
9 574 €
Transaction :
Achat
Référence :
86226758B
Mandat :
Exclusif
Date de publication :
Aujourd'hui à 08:42
Contacter l'annonceur
Performance énergétique
A
B
C
D
E
F
G
Gaz à effet de serre
A
B
C
D
E
F
G
Agent
DE FERLA DAGUERRE
Isaline BONNEFOY
Mettre en avant cette annonce
Signaler une erreur
Localisation :
Performance énergétique :
Logement économe
A
B
C
D
E
319
kWh/m²/an
69
kg CO₂/m²/an
F
G
Logement énergivore
Faible émission de CO₂
A
B
C
D
E
69
kg CO₂/m²/an
F
G
Forte émission de CO₂
Date du diagnostic :
24 mars 2025
Ventes d'appartements à proximité
- 116 ventes d'appartements à Montrouge (1.8 km)
- 40 ventes d'appartements à Gentilly (2.4 km)
- 43 ventes d'appartements à Malakoff (2.6 km)
- 87 ventes d'appartements à Vanves (2.9 km)
- 55 ventes d'appartements à Arcueil (3 km)
- 3616 ventes d'appartements à Paris (3.4 km)
- 29 ventes d'appartements au Kremlin-Bicêtre (3.6 km)
- 191 ventes d'appartements à Issy-les-Moulineaux (3.8 km)
- 101 ventes d'appartements à Châtillon (4 km)