Local commercial - 100 m² - 3 pièces à Paris 11

favoris
  • Local commercial - 100 m² - 3 pièces
  • Local commercial - 100 m² - 3 pièces
  • Local commercial - 100 m² - 3 pièces
  • Local commercial - 100 m² - 3 pièces
  • Local commercial - 100 m² - 3 pièces
  • Local commercial - 100 m² - 3 pièces
  • Local commercial - 100 m² - 3 pièces
  • Local commercial - 100 m² - 3 pièces
  • Local commercial - 100 m² - 3 pièces
  • Local commercial - 100 m² - 3 pièces
788 000 €
100 m²
3 pièces

Description :

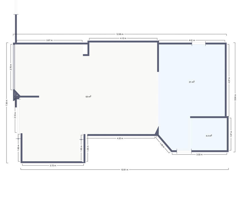
Exclusivité Maison Picturale Atelier / Bureau mixte à vendre – Passage de la Fonderie, Paris 11eme Dans un passage privé arboré du cœur de Paris, découvrez ce local commercial rare offrant un beau volume à aménager. Surface actuelle : 100 m² au sol (80 m² Carrez). Un projet de modification de toiture et de création d’une verrière — déjà validé par la copropriété et la mairie — portera la surface à 97 m² Carrez après travaux. L’espace bénéficie d’un environnement calme, clair et plein de charme, idéal pour un atelier d’artiste, un bureau ou un usage mixte. Trois entrées indépendantes offrent de nombreuses possibilités d’aménagement. - Diffuze : votre prestataire de diffusion d'annonces immobilières.

Afficher plus de détails

Informations sur ce bien :

L'intérieur :

  • 3 pièces
  • 100 m²
    Informations complémentaires
    Surface habitable : 100 m²

Autres :

  • Mitoyenneté :
    Non
  • Étage :
    RDC
Synthèse
Local commercial à Paris 11
788 000 €
Surface : 100 m²
Prix au m² : 7 880 €
Transaction :
Achat (professionnels)
Référence :
4240-8
Date de publication :
Le 05 déc. à 08:29
Local commercial - 100 m² - 3 pièces
Performance énergétique
A
B
C
D
E
F
G
Gaz à effet de serre
A
B
C
D
E
F
G
Agent
Barnabé
Diffuze
Appeler
Écrire
Mettre en avant cette annonce
Signaler une erreur

Localisation :

Performance énergétique :

Logement économe
A
≤ 70
kWh/m²/an
≤ 6
kg CO₂/m²/an
B
C
D
E
F
G
Logement énergivore
Faible émission de CO₂
A
≤ 6
kg CO₂/m²/an
B
C
D
E
F
G
Forte émission de CO₂
Annonces similaires
Annonces immobilières récentes