Fonds de commerce - Bureau - 65 m² à Paris 11

favoris
  • Fonds de commerce - Bureau - 65 m²
  • Fonds de commerce - Bureau - 65 m²
214 000 €
65 m²
2 pièces

Description :

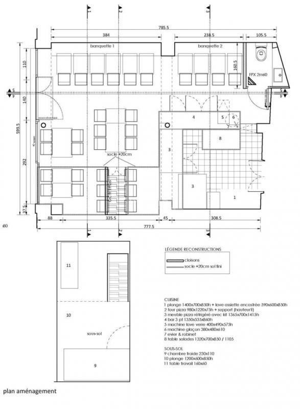
Vente d'un fonds de commerce d'un restaurant / pizzeria. Le local de 65m2 comprend : RDC de 50m2 et sous-sol de 15m2. Façade de 6 mètres.

Au RDC : salle de restaurant, WC avec point d'eau, cuisine de plain-pied avec un système d'extraction pro de type DSO 2002 ST et équipée de four à pizza. Au sous-sol en accès direct: chambre froide, stockage.

Capacité de 56 couverts: 34 en salle, 14 en terrasse à l'année et 8 en terrasse estivale. Ouvert en coupure, fermé le dimanche et 2 semaines/an. Tenu depuis 10 ans. Avis Google 4,8/5. Chiffre d'affaires 407K HT (moyenne 3 dernières années).

Rénové en 2024, décoré avec goût, le local est bien tenu et en très bon état général. Pas de travaux à prévoir. Loyer mensuel : 3385€ charges comprises / mois. Pas de TVA.

Environnement : entouré de commerces, bureaux, écoles / université et hôtels. A proximité du métro Charonne (ligne 9), métro Faidherbe – Chaligny (ligne 8).

Annonce publiée par Fanny Thomas (EI) votre agent commercial en immobilier LF immo à Paris, 75008 immatriculé au RSAC de PARIS sous le n°901 638 502 000 12. Consultez nos tarifs sur le site LF immo.

Les informations sur les risques auxquels ce bien est exposé sont disponibles sur le site Géorisques : www.georisques.gouv.fr.

Afficher plus de détails

Informations sur ce bien :

L'intérieur :

  • 2 pièces
  • 65 m²
    Informations complémentaires
    Surface d'activité : 65 m²
  • Cuisine
Synthèse
Bureau à Paris 11
214 000 €
Surface : 65 m²
Prix au m² : 3 292 €
Transaction :
Fonds de commerce
Référence :
fr066594
Mandat :
Exclusif
Date de publication :
Il y a plus de 7 jours
Fonds de commerce - Bureau - 65 m²
Performance énergétique
A
B
C
D
E
F
G
Gaz à effet de serre
A
B
C
D
E
F
G
Agent
LA FOURMI IMMO
LA FOURMI IMMO
Fanny Thomas
Appeler
Écrire
Mettre en avant cette annonce
Signaler une erreur

Localisation :

L'adresse exacte n'est pas renseignée. Le bien se situe dans cette zone.

Performance énergétique :

Logement économe
A
B
C
D
229
kWh/m²/an
7
kg CO₂/m²/an
E
F
G
Logement énergivore
Faible émission de CO₂
A
B
7
kg CO₂/m²/an
C
D
E
F
G
Forte émission de CO₂
Annonces similaires
Annonces immobilières récentes