Maison - 98 m² - 5 pièces à Parcieux

favoris
  • Maison - 98 m² - 5 pièces
  • Maison - 98 m² - 5 pièces
  • Maison - 98 m² - 5 pièces
  • Maison - 98 m² - 5 pièces
374 500 €
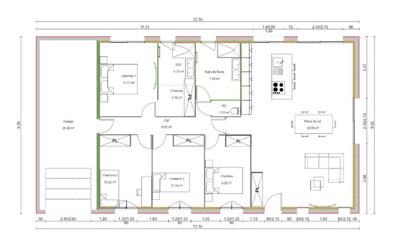
98 m²
5 pièces
4 chambres

Description :

10 m² OFFERT + CUISINE OFFERTE + PACK DECO OFFERT (peintures + parquet des chambres + faïence sdb + placards pour nos 50 ans.À vendre : Charmante maison individuelle de plein pied de 98 m² avec 4 chambres sur la commune Parcieux.Vous recherchez le foyer idéal pour votre famille dans un cadre paisible et accueillant ? Ne cherchez pas plus loin ! Cette maison individuelle de 98m², située dans la charmante commune de Parcieux, est le parfait projet de construction pour vous.Située sur un terrain spacieux de 400 m², cette maison offre un espace extérieur généreux pour profiter des journées ensoleillées en famille ou entre amis.À l'intérieur, vous trouverez quatre chambres lumineuses dont une suite parentale, offrant amplement d'espace pour accueillir votre famille et vos invités. La maison est également équipée d'une pompe à chaleur, assurant un confort thermique optimal tout au long de l'année, ainsi que des volets roulants motorisés pour plus de praticité au quotidien.Située dans un quartier calme et familial, cette maison est idéalement située à proximité de l'autoroute, des écoles et des transports en commun, offrant ainsi un cadre de vie pratique et agréable pour toute la famille.Contactez Arnaud dès aujourd'hui pour organiser une visite et découvrir tout le potentiel de cette charmante maison contemporaine.

Afficher plus de détails

Informations sur ce bien :

L'intérieur :

  • 5 pièces
  • 98 m²
  • 4 Chambres
  • 1 Salle de bain

L'extérieur :

  • Garage

À proximité :

  • Accès voie rapide
  • Centre-ville
  • Commerces
  • Ecoles
  • Transports en commun

Autres :

  • Style :
    Traditionnelle
Synthèse
Maison à Parcieux
374 500 €
Surface : 98 m²
Prix au m² : 3 821 €
Transaction :
Neuf
Référence :
5362 DUFOR Arnaud
Date de publication :
Aujourd'hui à 10:46
Maison - 98 m² - 5 pièces
Agent
Maisons Punch - Saint Priest
Maisons Punch - Saint Priest
Arnaud DUFOR
Appeler
Écrire
Mettre en avant cette annonce
Signaler une erreur

Localisation :

L'adresse exacte n'est pas renseignée. Le bien se situe dans cette zone.
Annonces similaires
Annonces immobilières récentes