Retour
Rechercher
Lieu
Où ?
    Type de bien
    Quel type de projet ?
    Particulier Entreprise
    Quel type de bien ?
        Prix
        Quel budget ?
              Surface
              Quelle surface ?
                    Pièces
                    Combien de pièces ?
                      Combien de chambres ?
                          26

                          Ventes d'appartements à Ouistreham

                          Recherche 26
                          Carte
                          • Appartement - 25 m² - 1 pièce
                          • Appartement - 25 m² - 1 pièce
                          • Appartement - 25 m² - 1 pièce

                          Appartement - 25 m² - 1 pièce

                          134 900 €
                          Ouistreham Appartement en rez-de-jardin,1 pièce de 25.25m2. Il se compose d'une pièce de vie avec cuisine, salle d'eau avec wc, d'une terrasse de 5m2 et d'un jardin de 13.96m2. Appartement livrable au 4ieme trimestre 2027. images non contractuelles. Les informations sur les risques auxquels ce bien est exposé sont disponibles sur le site Géorisques : www. georisques.gouv.f
                          Professionnel Publié le 21 déc. à 11:18 Non géolocalisée
                          Ouistreham RDC Exposition Sud
                          • Appartement - 65 m² - 3 pièces
                          • Appartement - 65 m² - 3 pièces
                          • Appartement - 65 m² - 3 pièces
                          • Appartement - 65 m² - 3 pièces

                          Appartement - 65 m² - 3 pièces

                          344 900 €
                          Fiche Id-UBW100281 : Ouistreham, secteur Bourg cotier caen nord, T3 proche mer d'environ 65 m2 comprenant 3 piece(s) dont 2 chambre(s) + Balcon de 6 m2 - Vue : Vue degagee - Construction 2025 Beton - Equipements annexes : balcon - garage - digicode - ascenseur - cave - chauffage : Gaz Chaudiere livraison en decembre 2025 - DPE en cours - Plus d'informations disponibles
                          Professionnel Publié le 20 déc. à 08:44 Non géolocalisée
                          Ouistreham 2 ch Terrasse Balcon Parking Exposition Sud-ouest
                          • Appartement - 39 m² - 2 pièces
                          • Appartement - 39 m² - 2 pièces
                          • Appartement - 39 m² - 2 pièces
                          • Appartement - 39 m² - 2 pièces

                          Appartement - 39 m² - 2 pièces

                          225 900 €
                          Fiche Id-UBW162888 : Ouistreham, secteur Caen nord, T2 terrasse d'environ 39 m2 comprenant 2 piece(s) dont 1 chambre(s) + Terrasse de 12 m2 - Vue : Sur terrasse - Construction 2025 Beton - Equipements annexes : terrasse - parking - digicode - double vitrage - ascenseur - - chauffage : Gaz Individuel 2025 - DPE en cours - Plus d'informations disponibles sur demande..
                          Professionnel Publié le 20 déc. à 08:44 Non géolocalisée
                          Ouistreham 1 ch Terrasse Exposition Nord-est
                          • Appartement - 60 m² - 3 pièces
                          • Appartement - 60 m² - 3 pièces
                          • Appartement - 60 m² - 3 pièces
                          • Appartement - 60 m² - 3 pièces
                          • Appartement - 60 m² - 3 pièces
                          • Appartement - 60 m² - 3 pièces Cliquez pour voir les 18 photos

                          Appartement - 60 m² - 3 pièces

                          162 000 €
                          A vendre en exclusivité - Appartement T3 - 60m² - Ouistreham (14150) - Résidence Les Caravelles Coup de coeur assuré pour ce 3 pièces lumineux, au 3ème étage sur 4 sans ascenseur avec double balcon et vue dégagée plein sud, situé dans l'un des secteurs les plus recherchés d'Ouistreham ! Localisation idéale : Avenue de la Résistance, dans une résidence calme, sécurisée et parf
                          Professionnel Publié le 20 déc. à 08:37
                          Ouistreham 2 ch 3ème étage
                          • Appartement - 123 m² - 5 pièces
                          • Appartement - 123 m² - 5 pièces
                          • Appartement - 123 m² - 5 pièces
                          • Appartement - 123 m² - 5 pièces
                          • Appartement - 123 m² - 5 pièces
                          • Appartement - 123 m² - 5 pièces Cliquez pour voir les 24 photos

                          Appartement - 123 m² - 5 pièces

                          398 000 €
                          Iad France - Nathalie Lecler vous propose : Appartement en Duplex 123 m², 4 chambres, vue mer – Ouistreham Riva-Bella (14150) Localisation & charme Dans une élégante demeure historique de caractère, idéalement située à Ouistreham Riva-Bella, à quelques minutes à pied de la plage et des commerces, découvrez ce superbe duplex entièrement rénové, niché au dernier étage. Descriptio
                          Professionnel Publié il y a plus de 7 jours
                          Ouistreham 4 ch Dernier étage
                          • Appartement - 61 m² - 3 pièces
                          • Appartement - 61 m² - 3 pièces
                          • Appartement - 61 m² - 3 pièces
                          • Appartement - 61 m² - 3 pièces
                          • Appartement - 61 m² - 3 pièces
                          • Appartement - 61 m² - 3 pièces Cliquez pour voir les 24 photos

                          Appartement - 61 m² - 3 pièces

                          160 500 €
                          Nouvelle exclusivité chez UNI IMMOBILIER ! Appartement T3 de 61.11 m², vendu loué ( fin du bail : juin 2027), à quelques pas de la mer ! LOCALISATION : Ouistreham Les points forts de ce bien : - A 5 min des plages de Ouistreham - A 20 min du centre ville de Caen - Idéal investisseurs Année de construction : 1970 Cet appartement se compose comme suit : - 1 entrée - 1 cell
                          Professionnel Publié il y a plus de 7 jours
                          Ouistreham 2 ch 1 sdb
                          • Appartement - 67 m² - 4 pièces
                          • Appartement - 67 m² - 4 pièces
                          • Appartement - 67 m² - 4 pièces
                          • Appartement - 67 m² - 4 pièces
                          • Appartement - 67 m² - 4 pièces
                          • Appartement - 67 m² - 4 pièces Cliquez pour voir les 10 photos

                          Appartement - 67 m² - 4 pièces

                          192 000 €
                          POZZO IMMOBILIER Vous propose à la vente une MAISON / APPARTEMENT de 4 PIÈCES AU CALME A 400 M DE LA MER -composé d'une pièce de vie de 33 m2 avec cuisine aménagée et équipée, 2 chambres, une salle d'eau et wc séparé. IDEAL INVESTISSEUR ou PREMIERE ACQUISITION (6.67 % honoraires TTC à la charge de l'acquéreur.) Copropriété de 25 lots (Pas de procédure en cours). Charges annu
                          Professionnel Publié il y a plus de 7 jours
                          Ouistreham 2 ch 1 sdb RDC Terrasse
                          • Appartement - 22 m² - 1 pièce
                          • Appartement - 22 m² - 1 pièce
                          • Appartement - 22 m² - 1 pièce
                          • Appartement - 22 m² - 1 pièce

                          Appartement - 22 m² - 1 pièce

                          134 900 €
                          Votre agence CASA, agence immobilière à Caen, vous propose à la vente un Studio à Ouistreham Riva-Bella - entre mer et ville, un cadre de vie idéal ! À seulement 14 km de Caen et tout près de Cabourg, découvrez ce charmant studio au sein d'une résidence située au coeur de la station balnéaire prisée de Ouistreham Riva-Bella. Un emplacement privilégié :Entre plages de sable fin,
                          Professionnel Publié il y a plus de 7 jours
                          Ouistreham 1 sdb RDC Terrasse Parking
                          • Appartement - 67 m² - 3 pièces
                          • Appartement - 67 m² - 3 pièces
                          • Appartement - 67 m² - 3 pièces
                          • Appartement - 67 m² - 3 pièces
                          • Appartement - 67 m² - 3 pièces
                          • Appartement - 67 m² - 3 pièces Cliquez pour voir les 12 photos

                          Appartement - 67 m² - 3 pièces

                          229 500 €
                          POZZO IMMOBILIER, vous propose un appartement en DUPLEX au dernier étage d'une résidence des années 90 avec ascenseur, à 2 pas du port de plaisance, l'appartement se compose : - Une entrée, une salle d'eau, une cuisine aménagée avec une loggia, un séjour avec une loggia exposée OUEST et un WC. - A l'étage : 2 chambres, une salle de bains, un dressing et un comble. Une cave et u
                          Professionnel Publié il y a plus de 7 jours
                          Ouistreham 2 ch 3 sdb Dernier étage
                          • Appartement - 36 m² - 3 pièces
                          • Appartement - 36 m² - 3 pièces
                          • Appartement - 36 m² - 3 pièces
                          • Appartement - 36 m² - 3 pièces
                          • Appartement - 36 m² - 3 pièces
                          • Appartement - 36 m² - 3 pièces Cliquez pour voir les 6 photos

                          Appartement - 36 m² - 3 pièces

                          162 750 €
                          Ouistreham – RETOUR À LA VENTE !! Un petit coin de paradis à 50 mètres de la Plage Envie de vous évader dans un lieu où détente et calme riment avec plaisir de vivre au bord de la mer ? Nathalie COLLET et Efficity, l'agence spécialisée dans l'estimation en ligne, vous invitent à découvrir cet appartement T3 lumineux situé à seulement 50 mètres de la plage ! Un cadre idéal pou
                          Professionnel Publié il y a plus de 7 jours
                          Ouistreham 2 ch 1 sdb 1er étage Balcon Parking
                          • Appartement - 41 m² - 2 pièces
                          • Appartement - 41 m² - 2 pièces
                          • Appartement - 41 m² - 2 pièces
                          • Appartement - 41 m² - 2 pièces
                          • Appartement - 41 m² - 2 pièces
                          • Appartement - 41 m² - 2 pièces Cliquez pour voir les 6 photos

                          Appartement - 41 m² - 2 pièces

                          160 000 €
                          Nous vous proposons en exclusivité cet appartement de 2 pièces avec ascenseur dans une résidence sécurisée à 2 minutes à pieds de la plage de Ouistreham qui se compose d'une entrée, un séjour avec une cuisine ouverte équipée, une grande chambre avec ses rangements, une salle d'eau, un WC. Une cave et un garage en sous-sol complètent l'appartement. L'appartement est idéalement p
                          Professionnel Publié il y a plus de 7 jours
                          Ouistreham 1 ch 1 sdb Dernier étage Parking
                          • Appartement - 21 m² - 1 pièce
                          • Appartement - 21 m² - 1 pièce
                          • Appartement - 21 m² - 1 pièce

                          Appartement - 21 m² - 1 pièce

                          134 900 €
                          Découvrez la toute nouvelle résidence idéalement située à OUISTREHAM (14) : "RESIDENCE GAMBETTA" A seulement 1,3 km de la plage Riva-Bella et à 15 minutes de Caen, la résidence GAMBETTA s'installe en plein centre-ville de OUISTREHAM, à deux pas de la mairie, des commerces et du marché. Cet emplacement privilégié offre un cadre de vie idéal entre ville et bord de mer, au coeur
                          Professionnel Publié il y a plus de 7 jours
                          Ouistreham Neuf 1 sdb RDC Parking
                          • Appartement - 58 m² - 3 pièces
                          • Appartement - 58 m² - 3 pièces
                          • Appartement - 58 m² - 3 pièces

                          Appartement - 58 m² - 3 pièces

                          279 900 €
                          Découvrez la toute nouvelle résidence idéalement située à OUISTREHAM (14) : "RESIDENCE GAMBETTA" A seulement 1,3 km de la plage Riva-Bella et à 15 minutes de Caen, la résidence GAMBETTA s'installe en plein centre-ville de OUISTREHAM, à deux pas de la mairie, des commerces et du marché. Cet emplacement privilégié offre un cadre de vie idéal entre ville et bord de mer, au coeur
                          Professionnel Publié il y a plus de 7 jours
                          Ouistreham 2 ch 1er étage Balcon Parking
                          • Appartement - 80 m² - 4 pièces
                          • Appartement - 80 m² - 4 pièces
                          • Appartement - 80 m² - 4 pièces

                          Appartement - 80 m² - 4 pièces

                          439 900 €
                          Découvrez la toute nouvelle résidence idéalement située à OUISTREHAM (14) : "RESIDENCE GAMBETTA" A seulement 1,3 km de la plage Riva-Bella et à 15 minutes de Caen, la résidence GAMBETTA s'installe en plein centre-ville de OUISTREHAM, à deux pas de la mairie, des commerces et du marché. Cet emplacement privilégié offre un cadre de vie idéal entre ville et bord de mer, au coeur
                          Professionnel Publié il y a plus de 7 jours
                          Ouistreham 3 ch 1er étage Balcon Parking
                          • Appartement - 34 m² - 2 pièces
                          • Appartement - 34 m² - 2 pièces
                          • Appartement - 34 m² - 2 pièces

                          Appartement - 34 m² - 2 pièces

                          189 900 €
                          Découvrez la toute nouvelle résidence idéalement située à OUISTREHAM (14) : "RESIDENCE GAMBETTA" A seulement 1,3 km de la plage Riva-Bella et à 15 minutes de Caen, la résidence GAMBETTA s'installe en plein centre-ville de OUISTREHAM, à deux pas de la mairie, des commerces et du marché. Cet emplacement privilégié offre un cadre de vie idéal entre ville et bord de mer, au coeur
                          Professionnel Publié il y a plus de 7 jours
                          Ouistreham 1 ch RDC Terrasse Parking
                          • Appartement - 21 m² - 1 pièce
                          • Appartement - 21 m² - 1 pièce
                          • Appartement - 21 m² - 1 pièce

                          Appartement - 21 m² - 1 pièce

                          134 900 €
                          Découvrez la toute nouvelle résidence idéalement située à OUISTREHAM (14) : "RESIDENCE GAMBETTA" A seulement 1,3 km de la plage Riva-Bella et à 15 minutes de Caen, la résidence GAMBETTA s'installe en plein centre-ville de OUISTREHAM, à deux pas de la mairie, des commerces et du marché. Cet emplacement privilégié offre un cadre de vie idéal entre ville et bord de mer, au coeur
                          Professionnel Publié il y a plus de 7 jours
                          Ouistreham RDC Terrasse Parking
                          • Appartement - 121 m² - 5 pièces
                          • Appartement - 121 m² - 5 pièces
                          • Appartement - 121 m² - 5 pièces

                          Appartement - 121 m² - 5 pièces

                          699 900 €
                          Découvrez la toute nouvelle résidence idéalement située à OUISTREHAM (14) : "RESIDENCE GAMBETTA" A seulement 1,3 km de la plage Riva-Bella et à 15 minutes de Caen, la résidence GAMBETTA s'installe en plein centre-ville de OUISTREHAM, à deux pas de la mairie, des commerces et du marché. Cet emplacement privilégié offre un cadre de vie idéal entre ville et bord de mer, au coeur
                          Professionnel Publié il y a plus de 7 jours
                          Ouistreham 4 ch Dernier étage Balcon Parking
                          • Appartement - 49 m² - 2 pièces
                          • Appartement - 49 m² - 2 pièces
                          • Appartement - 49 m² - 2 pièces
                          • Appartement - 49 m² - 2 pièces
                          • Appartement - 49 m² - 2 pièces
                          • Appartement - 49 m² - 2 pièces Cliquez pour voir les 12 photos

                          Appartement - 49 m² - 2 pièces

                          149 000 €
                          POZZO IMMOBILIER vous propose, en EXCLUSIVITE, Au coeur de RIVA BELLA, un appartement situé à 100 mètres de la plage. Dans une résidence calme, au dernier étage venez découvrir ce 2 pièces de 49 m² au sol (36m2 habitable) aménagée comme suit : Entrée, dégagement, séjour, cuisine séparée, 1 chambre avec salle d'eau et un wc séparé. PARKING / PLAGE / IDEAL SECONDAIRE ou LOCATIO
                          Professionnel Publié il y a plus de 7 jours
                          Ouistreham 1 ch 1 sdb Dernier étage Parking Standing
                          • Appartement - 66 m² - 5 pièces
                          • Appartement - 66 m² - 5 pièces
                          • Appartement - 66 m² - 5 pièces
                          • Appartement - 66 m² - 5 pièces
                          • Appartement - 66 m² - 5 pièces
                          • Appartement - 66 m² - 5 pièces Cliquez pour voir les 17 photos

                          Appartement - 66 m² - 5 pièces

                          229 500 €
                          * NOUVEAU À CE PRIX * Situé sur les bords du quai Jean Charcot de Ouistreham, au 3ème étage dans une résidence avec ascenseur, ce lumineux duplex traversant attend ses nouveaux propriétaires ! Imaginez-vous le matin prendre le petit déjeuner sur le balcon 'Est' (6 m²env) face aux bateaux qui naviguent sur le canal et profiter des soirées avec le couché de soleil et la vue sur l
                          Professionnel Publié il y a plus de 7 jours
                          Ouistreham 2 ch 2 sdb 3ème étage Parking
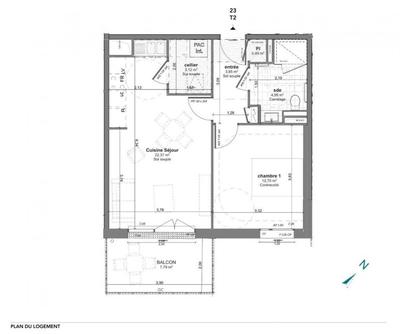
                          • Appartement - 23 m² - 1 pièce
                          • Appartement - 23 m² - 1 pièce
                          • Appartement - 23 m² - 1 pièce

                          Appartement - 23 m² - 1 pièce

                          134 900 €
                          Au calme, secteur Reine Mathilde-Bourg de Ouistreham Riva-Bella. Investissez maintenant dans ce studio avec un bel extérieur et son parking privatif. Vous êtes à la recherche d'un pied à terre sur la Côte pour profiter d'un environnement sein et authentique . Réserve, Planches, cabane de plage, Casino, restaurants, pêche, Port de pêche et de plaisance, On vit à l'année dans cet
                          Professionnel Publié il y a plus de 7 jours Non géolocalisée
                          Ouistreham 1 sdb RDC Terrasse Parking
                          • Appartement - 40 m² - 2 pièces
                          • Appartement - 40 m² - 2 pièces
                          • Appartement - 40 m² - 2 pièces
                          • Appartement - 40 m² - 2 pièces

                          Appartement - 40 m² - 2 pièces

                          225 900 €
                          Petite résidence privée avec ascenseur idéalement située à 300 mètres du port, à quelques minutes de marche de la superbe plage de Riva-Bella et des commerces.Emblématique ville de bord de mer où il fait bon vivre à l'année . Vous aimerez ses différents sites : son bois, ses chevaux, ses planches, son casino, sa rue de la mer, son Port de pêche et de Plaisance,sa gare Maritime
                          Professionnel Publié il y a plus de 7 jours Non géolocalisée
                          Ouistreham 1 ch 1 sdb 1er étage Terrasse Parking
                          • Appartement - 55 m² - 2 pièces
                          • Appartement - 55 m² - 2 pièces
                          • Appartement - 55 m² - 2 pièces
                          • Appartement - 55 m² - 2 pièces
                          • Appartement - 55 m² - 2 pièces
                          • Appartement - 55 m² - 2 pièces Cliquez pour voir les 7 photos

                          Appartement - 55 m² - 2 pièces

                          255 000 €
                          Situé à Ouistreham (14150), cet appartement 2 pièces de 55 m² construit en 1980 offre un cadre de vie agréable. Sécurisé et équipé d'un digicode, il garantit un sentiment de tranquillité. Avec la commodité de la fibre et la proximité des arrêts de bus, cet emplacement est idéal pour les familles grâce à la présence d'écoles, lycées et collèges à proximité. À l'extérieur, vous b
                          Professionnel Publié il y a plus de 7 jours
                          Ouistreham 1 ch 1 sdb 1er étage Parking Exposition Sud
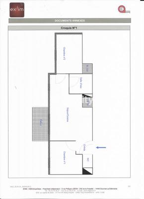
                          • Appartement - 70 m² - 4 pièces
                          • Appartement - 70 m² - 4 pièces
                          • Appartement - 70 m² - 4 pièces
                          • Appartement - 70 m² - 4 pièces
                          • Appartement - 70 m² - 4 pièces
                          • Appartement - 70 m² - 4 pièces Cliquez pour voir les 12 photos

                          Appartement - 70 m² - 4 pièces

                          194 000 €
                          L'agence 'les clés du Littoral' vous propose, situé au 3eme étage d'une copropriété bien entretenue de 4 étages sans ascenseur, cet appartement de 4 pièces qui vous séduira par ses volumes, sa luminosité et sa double exposition. La pièce de vie, d'environ 28 m², ouvre sur un balcon exposé plein sud, idéal pour profiter du soleil tout au long de la journée. Vous trouverez égale
                          Professionnel Publié il y a plus de 7 jours Non géolocalisée
                          Ouistreham 2 ch 1 sdb 3ème étage Balcon Parking
                          • Appartement - 87 m² - 4 pièces
                          • Appartement - 87 m² - 4 pièces
                          • Appartement - 87 m² - 4 pièces
                          • Appartement - 87 m² - 4 pièces

                          Appartement - 87 m² - 4 pièces

                          420 000 €
                          Dans petite résidence privée de 18 appartements avec ascenseur idéalement situés, à 300 mètres du port, 15 minutes de marche de la superbe plage de Riva-Bella et seulement quelques pas du bourg, des écoles, du collège, des commerces et services de la ville. Une jolie architecture bas-normande typique de nos côtes . Osez le bord de mer à 10 minutes de Caen, Capitale régionale, p
                          Professionnel Publié il y a plus de 7 jours Non géolocalisée
                          Ouistreham 3 ch 2 sdb Dernier étage Parking Exposition Sud
                          • Appartement - 44 m² - 2 pièces
                          • Appartement - 44 m² - 2 pièces
                          • Appartement - 44 m² - 2 pièces

                          Appartement - 44 m² - 2 pièces

                          201 500 €
                          L'agence du neuf vous propose de très belles opportunités de logements immédiatement habitables et jamais habités sur la Côte de nacre. Exemple: petite résidence, dans une impasse au calme à proximité du centre ville et ses commerces, à quelques minutes à vélo de la plage. Bel Appartement de 44 M2 avec  chambre séparée et une belle pièce de vie lumineuse avec balcon. Placards a
                          Professionnel Publié il y a plus de 7 jours Non géolocalisée
                          Ouistreham 1 ch RDC Parking
                          • Appartement - 70 m² - 3 pièces
                          • Appartement - 70 m² - 3 pièces
                          • Appartement - 70 m² - 3 pièces
                          • Appartement - 70 m² - 3 pièces
                          • Appartement - 70 m² - 3 pièces
                          • Appartement - 70 m² - 3 pièces Cliquez pour voir les 6 photos

                          Appartement - 70 m² - 3 pièces

                          285 450 €
                          Caen et Mer Immo vous propose un bel appartement de 70 M2 aux pieds de la rue de la mer de Riva Bella. Vous profiterez de la proximité immédiate des commerces et à  10 minutes à  pied de la plage. Une pièce de vie de 34 M2 avec sa cuisine ouverte et aménagée donnent sur un beau balcon de 7 M2 au calme Vous aurez 2 chambres, une grande salle de douche et le tout dans un immeu
                          Professionnel Publié il y a plus de 7 jours Non géolocalisée
                          Ouistreham 2 ch 1 sdb 1er étage Balcon Parking
                          3

                          Ventes d'appartements à Colleville-Montgomery

                          (2.8 km)
                          • Appartement - 47 m² - 2 pièces
                          • Appartement - 47 m² - 2 pièces
                          • Appartement - 47 m² - 2 pièces
                          • Appartement - 47 m² - 2 pièces
                          • Appartement - 47 m² - 2 pièces
                          • Appartement - 47 m² - 2 pièces Cliquez pour voir les 8 photos

                          Appartement - 47 m² - 2 pièces

                          182 750 €
                          COUP DE COEUR ASSURÉ ! Appartement Rénové avec Jardin - Bourg de Colleville-Montgomery L'ÉQUILIBRE PARFAIT : CALME ET PROXIMITÉ IMMÉDIATE DES COMMODITÉS Découvrez sans tarder cet appartement de plain-pied entièrement rénové situé dans le coeur prisé du bourg de Colleville-Montgomery. Idéalement agencé, il offre un cadre de vie pratique et paisible, sans aucun vis-à-vis. Cara
                          Professionnel Publié il y a plus de 7 jours
                          Colleville-Montgomery 1 ch 1 sdb RDC Terrasse Parking
                          • Appartement - 30 m² - 2 pièces
                          • Appartement - 30 m² - 2 pièces
                          • Appartement - 30 m² - 2 pièces
                          • Appartement - 30 m² - 2 pièces
                          • Appartement - 30 m² - 2 pièces
                          • Appartement - 30 m² - 2 pièces Cliquez pour voir les 11 photos

                          Appartement - 30 m² - 2 pièces

                          87 000 €
                          Les clés du Littoral Ouistreham vous propose, situé au rez-de-chaussée d'une petite copropriété, cet appartement qui vous offrira un cadre pratique et fonctionnel à deux pas des commodités. Il se compose d'un séjour lumineux avec coin cuisine (13,5 m²), d'une chambre séparée de 11,5 m², d'une salle d'eau et de WC indépendants. Pour votre confort, une cave ainsi qu'une place d
                          Professionnel Publié il y a plus de 7 jours Non géolocalisée
                          Colleville-Montgomery 1 ch 1 sdb RDC Parking
                          • Appartement - 74 m² - 4 pièces
                          • Appartement - 74 m² - 4 pièces
                          • Appartement - 74 m² - 4 pièces
                          • Appartement - 74 m² - 4 pièces
                          • Appartement - 74 m² - 4 pièces
                          • Appartement - 74 m² - 4 pièces Cliquez pour voir les 11 photos

                          Appartement - 74 m² - 4 pièces

                          189 000 €
                          En plein coeur de Colleville-Montgommery, proche de la plage, venez découvrir cet appartement en duplex très cosy entièrement rénové. Une entrée privée vous emmène à la pièce de vie principale qui sera illuminée du matin au soir. Le couloir dessert une première chambre avec verrière et une salle d'eau avec meuble double vasque et WC suspendu. À l'étage, vous pourrez profiter d'
                          Professionnel Publié il y a plus de 7 jours
                          Colleville-Montgomery 2 sdb
                          4

                          Ventes d'appartements à Hermanville-sur-Mer

                          (4.1 km)
                          • Appartement - 69 m² - 3 pièces
                          • Appartement - 69 m² - 3 pièces
                          • Appartement - 69 m² - 3 pièces
                          • Appartement - 69 m² - 3 pièces
                          • Appartement - 69 m² - 3 pièces
                          • Appartement - 69 m² - 3 pièces Cliquez pour voir les 13 photos

                          Appartement - 69 m² - 3 pièces

                          286 500 €
                          A vendre appartement T3 neuf à Hermanville-sur-Mer En ce moment, frais de notaire offerts pour la signature d'un contrat de réservation ! Bel appartement T3 NEUF de 69.5 m² avec balcon de 13.9 m² plein Sud. Séjour ouvert sur cuisine de 28.5 m², 2 belles chambres de 10.34 m² et 12.79 m² , salle d'eau, wc séparés, cellier et placard dans l'entrée. Cet appartement combine confo
                          Professionnel Publié il y a plus de 7 jours Non géolocalisée
                          Hermanville-sur-Mer 2 ch 2nd étage Parking
                          • Appartement - 47 m² - 2 pièces
                          • Appartement - 47 m² - 2 pièces
                          • Appartement - 47 m² - 2 pièces
                          • Appartement - 47 m² - 2 pièces
                          • Appartement - 47 m² - 2 pièces
                          • Appartement - 47 m² - 2 pièces Cliquez pour voir les 10 photos

                          Appartement - 47 m² - 2 pièces

                          209 000 €
                          A vendre appartement T2 neuf à Hermanville-sur-Mer En ce moment, frais de notaire offerts pour la signature d'un contrat de réservation ! Ce bel appartement de type T2 combine confort, modernité et fonctionnalité. Exceptionnel. Cuisine ouverte sur le séjour 22.37m², donnant sur terrasse de 27.87 m². Il dispose d'une chambre spacieuse / de 12.72 m², d'un cellier, d'une salle d
                          Professionnel Publié il y a plus de 7 jours Non géolocalisée
                          Hermanville-sur-Mer 1 ch 1 sdb 1er étage Parking
                          • Appartement - 71 m²
                          • Appartement - 71 m²
                          • Appartement - 71 m²
                          • Appartement - 71 m²
                          • Appartement - 71 m²
                          • Appartement - 71 m² Cliquez pour voir les 16 photos

                          Appartement - 71 m²

                          300 000 €
                          Appartement neuf à vendre à Hermanville-sur-Mer FRAIS DE NOTAIRE OFFERTS pour toute signature d'un contrat de réservation ! A Hermanville-sur-Mer, en coeur de bourg, Solstice est un programme neuf proche tous commerces, parcs, services et professionnels de santé. Livraison prévisionnelle : janvier 2028. Appartement T3 de 71.34 m² donnant sur terrasse privative de 27.48 m².
                          Professionnel Publié il y a plus de 7 jours Non géolocalisée
                          Hermanville-sur-Mer 2 ch 1er étage Parking
                          • Appartement - 47 m²
                          • Appartement - 47 m²
                          • Appartement - 47 m²
                          • Appartement - 47 m²
                          • Appartement - 47 m²
                          • Appartement - 47 m² Cliquez pour voir les 12 photos

                          Appartement - 47 m²

                          192 000 €
                          A vendre appartement neuf à Hermanville-sur-Mer En ce moment, frais de notaire offerts pour la signature d'un contrat de réservation ! A Hermanville-sur-Mer En cœur de bourg et à proximité immédiate des commerces, Normandie Aménagement développe une opération immobilière de 12 logements de type T2 et T3 aux espaces généreux, conçus pour un confort de vie optimal. D'une super
                          Professionnel Publié il y a plus de 7 jours Non géolocalisée
                          Hermanville-sur-Mer 1 ch 1 sdb 2nd étage

                          Achat d'un appartement à Ouistreham. Toutes les ventes immobilières d'appartements à Ouistreham et aux environs. Appartement à vendre.

                          Recherche en cours...
                          Rechercher dans cette zone