• Terrain - 1 350 m²
  • Terrain - 1 350 m²
  • Terrain - 1 350 m²
  • Terrain - 1 350 m²
  • Terrain - 1 350 m²
  • Terrain - 1 350 m²
117 000 €
1 350 m²

Description :

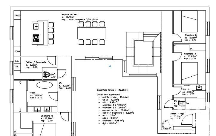
Iad France - Johann Garcia vous propose : À Nyons, en Drôme Provençâle, au cOEur d’un environnement recherché, découvrez ce magnifique terrain constructible de 1 350 m², une opportunité rare sur le secteur. Permis de construire accordé pour une maison de plain-pied de 150 m², avec garage de 50 m², piscine de 35m3 et hauteur de construction possible jusqu’à 4,90 m. Idéalement exposé, en position dominante, il offre un cadre privilégié sans aucun vis-à-vis et un ensoleillement optimal tout au long de la journée. Situé dans un secteur paisible, proche des commodités de Nyons, réputée pour sa qualité de vie, son climat et son dynamisme. Documents disponibles. Viabilisation à la charge de l’acquéreur. Honoraires d'agence à la charge du vendeur. Bien non soumis au DPE. Les informations sur les risques auxquels ce bien est exposé, y compris l'obligation légale de débroussaillement, sont disponibles sur le site Géorisques : http://www.georisques.gouv.fr. La présente annonce immobilière a été rédigée sous la responsabilité éditoriale de M Johann Garcia mandataire indépendant en immobilier (sans détention de fonds), agent commercial de la SAS I@D France immatriculé au RSAC de Avignon sous le numéro 802873232, titulaire de la carte de démarchage immobilier pour le compte de la société I@D France SAS.

Afficher plus de détails

Informations sur ce bien :

L'intérieur :

  • 1 350 m²

Autres :

  • Mitoyenneté :
    Non

Terrain :

  • Viabilisé :
    Non
Synthèse
Terrain à Nyons
117 000 €
Surface : 1 350 m²
Prix au m² : 87 €
Transaction :
Achat
Référence :
1963261
Date de publication :
Il y a plus de 7 jours
Terrain - 1 350 m²
Agent
iad france
iad france
Johann Garcia
Appeler
Écrire
Mettre en avant cette annonce
Signaler une erreur

Localisation :

L'adresse exacte n'est pas renseignée. Le bien se situe dans cette zone.
Annonces similaires
Annonces immobilières récentes