• Appartement - 42 m² - 2 pièces
  • Appartement - 42 m² - 2 pièces
  • Appartement - 42 m² - 2 pièces
  • Appartement - 42 m² - 2 pièces
  • Appartement - 42 m² - 2 pièces
  • Appartement - 42 m² - 2 pièces
  • Appartement - 42 m² - 2 pièces
  • Appartement - 42 m² - 2 pièces
  • Appartement - 42 m² - 2 pièces
265 000 €
42 m²
2 pièces
1 chambre

Description :

NICE CIMIEZ / LISERB, Magnifique résidence Belle Époque nichée dans un écrin de verdure, découvrez ce charmant 2 pièces de 42M² en triple exposition situé au 2ème et dernier étage.

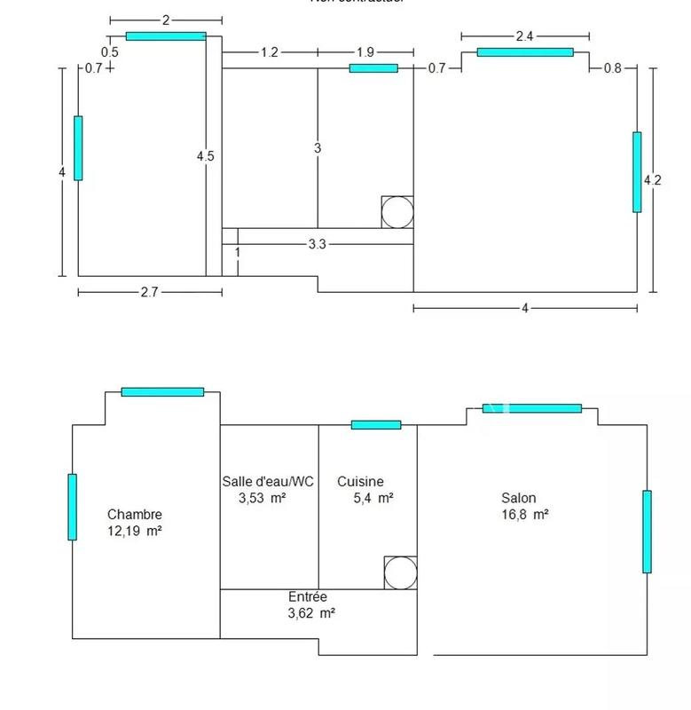
L’appartement se compose d’une entréé, séjour, cuisine indépendante, chambre, cuisine indépendante, une salle d’eau avec Wc.

Possibilité de stationnement au sein de la résidence.

Baigné de lumière et offrant un cadre de vie paisible, ce bien bénéficie d’un environnement calme et verdoyant. A proximité immédiate des transports, commerces et établissements scolaires.

Idéal en pied-à-terre, premier achat ou investissement.

Classe énergie: D. Copropriété de 4 lots.

Afficher plus de détails

Informations sur ce bien :

L'intérieur :

  • 2 pièces
  • 42 m²
    Informations complémentaires
    Surface Carrez : 42 m²
  • 1 Chambre de 12 m²
  • Cuisine de 5 m²
  • 1 Salle de bain de 4 m²
  • Salon de 17 m²

Les équipements :

  • Tout à l'égout
  • Climatisation
  • ADSL
  • Fibre optique
  • Volets roulants éléctriques
  • Double vitrage
  • Interphone
  • Digicode

Autres :

  • Chauffage :
    Individuel, Climatisation, Électrique
  • Eau chaude :
    Individuel, Chauffe-eau
  • État :
    Bon état
  • Vue :
    Dégagée
  • Étage :
    Dernier
    Informations complémentaires
    Nombre d'étages de la construction : 2
  • Nombre de niveaux :
    2

Copropriété :

  • Nombre de lots :
    8
  • Charges annuelles :
    960 €
  • Taxe foncière :
    1 500 €
Synthèse
Appartement à Nice
265 000 €
Surface : 42 m²
Prix au m² : 6 310 €
Transaction :
Achat
Date de publication :
Hier à 05:02
Appartement - 42 m² - 2 pièces
Performance énergétique
A
B
C
D
E
F
G
Gaz à effet de serre
A
B
C
D
E
F
G
Agent
HBM immobilier
HBM immobilier
Benjamin HENOU
Appeler
Écrire
Mettre en avant cette annonce
Signaler une erreur

Localisation :

Performance énergétique :

Logement économe
A
B
C
D
239
kWh/m²/an
8
kg CO₂/m²/an
E
F
G
Logement énergivore
Faible émission de CO₂
A
B
8
kg CO₂/m²/an
C
D
E
F
G
Forte émission de CO₂
Date du diagnostic : 25 juin 2025
Annonces similaires
Annonces immobilières récentes