• Appartement - 70 m² - 3 pièces
  • Appartement - 70 m² - 3 pièces
  • Appartement - 70 m² - 3 pièces
  • Appartement - 70 m² - 3 pièces
  • Appartement - 70 m² - 3 pièces
  • Appartement - 70 m² - 3 pièces
  • Appartement - 70 m² - 3 pièces
  • Appartement - 70 m² - 3 pièces
  • Appartement - 70 m² - 3 pièces
  • Appartement - 70 m² - 3 pièces
279 000 €
70 m²
3 pièces
2 chambres

Description :

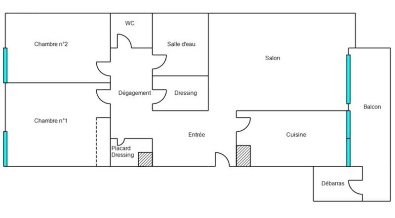
CAUCADE / DERNIER ETAGE : Au fond d'une impasse, au calme absolu dans résidence de standing, beau 3 pièces traversant composé d'un séjour donnant sur une terrasse vue mer avec cellier, une cuisine séparée, 2 chambres avec parquet massif, une salle de douches, un WC indépendant. Deux dressings attenants aux chambres.
Volets roulants électriques, store électrique, porte blindée, double vitrage rendent cet appartement facile à vivre.
Grande cave de 10m2 et possibilité de garage en sus.
Tramway à deux pas de la copropriété et à proximité du futur pole multimodal.
Stationnement aisé au pied de la copropriété. `
Visite virtuelle disponible sur demande.

À voir absolument , coup de coeur assuré.

Nombre de lots de copropriété : 49 (dont 29 à usage d'habitation).

Les informations sur les risques auxquels ce bien est exposé sont disponibles sur le site Géorisques : georisques.gouv.fr"

Afficher plus de détails

Informations sur ce bien :

L'intérieur :

  • 3 pièces
  • 70 m²
  • 2 Chambres
    Informations complémentaires
    Chambre 1 : Surface de 12 m²
    Chambre 2 : Surface de 12 m²
  • Cuisine de 8 m²
    Informations complémentaires
    Exposition sud
  • Séjour de 22 m²
    Informations complémentaires
    Exposition sud
  • Cave de 10 m²

L'extérieur :

  • Terrasse de 9 m²
    Informations complémentaires
    Exposition sud
  • Garage

Les équipements :

  • Ascenseur
  • Tout à l'égout
  • Portail électrique
  • Porte blindée
  • Digicode

Autres :

  • Chauffage :
    Collectif, Radiateur
  • Eau chaude :
    Collectif
  • État :
    Bon état
  • Vue :
    Dégagée
  • Étage :
    Dernier
    Informations complémentaires
    Nombre d'étages de la construction : 4

Copropriété :

  • Charges annuelles :
    3 540 €
  • Taxe foncière :
    1 549 €
Synthèse
Appartement à Nice
279 000 €
Surface : 70 m²
Prix au m² : 3 986 €
Transaction :
Achat
Référence :
2925135
Mandat :
Exclusif
Date de publication :
Il y a plus de 7 jours
Appartement - 70 m² - 3 pièces
Performance énergétique
A
B
C
D
E
F
G
Gaz à effet de serre
A
B
C
D
E
F
G
Agent
Agence Privilège - Cessole
Agence Privilège - Cessole
Matthieu COURTOIS
Appeler
Écrire
Mettre en avant cette annonce
Signaler une erreur

Localisation :

L'adresse exacte n'est pas renseignée. Le bien se situe dans cette zone.

Performance énergétique :

Logement économe
A
B
C
D
E
278
kWh/m²/an
61
kg CO₂/m²/an
F
G
Logement énergivore
Faible émission de CO₂
A
B
C
D
E
61
kg CO₂/m²/an
F
G
Forte émission de CO₂
Date du diagnostic : 29 avril 2025
Annonces similaires
Annonces immobilières récentes