Retour
Rechercher
Lieu
Où ?
    Type de bien
    Quel type de projet ?
    Particulier Entreprise
    Quel type de bien ?
        Prix
        Quel budget ?
              Surface
              Quelle surface ?
                    Pièces
                    Combien de pièces ?
                      Combien de chambres ?
                          17

                          Annonces immobilières à Neulise

                          Recherche 17
                          Carte
                          • Maison - 95 m² - 4 pièces
                          • Maison - 95 m² - 4 pièces
                          • Maison - 95 m² - 4 pièces
                          • Maison - 95 m² - 4 pièces
                          • Maison - 95 m² - 4 pièces
                          • Maison - 95 m² - 4 pièces Cliquez pour voir les 8 photos

                          Maison - 95 m² - 4 pièces

                          158 000 €
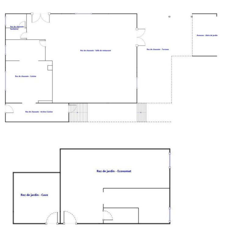
                          Iad France - William Dumas vous propose : Vous avez envie d’un projet original et plein de potentiel ? Cet ancien restaurant situé à Neulise, à proximité immédiate des axes autoroutiers, n’attend que vous pour retrouver une seconde vie. Ce bien offre de nombreux atouts. La grande pièce à vivre, très lumineuse, permettra de créer un bel espace de vie convivial. La cuisine exista
                          Professionnel Publié il y a plus de 7 jours
                          Neulise Terrasse
                          • Maison
                          • Maison
                          • Maison
                          • Maison
                          • Maison
                          • Maison Cliquez pour voir les 6 photos

                          Maison

                          54 000 €
                          Exclusivité BSK Immobilier : à Neulise, unique pizzeria du village, vendue avec ses murs commerciaux et une maison attenante de 110 m² sur 1000 m² de terrain. Terrasse couverte 50 places, cuisine complète (four à bois français, pétrin, saladette, inox), sanitaires aux normes. CA env. 45 000 €, gros potentiel de développement (vente à emporter, saison estivale). Prix global : 27
                          Professionnel Publié il y a plus de 7 jours
                          Neulise
                          • Ferme - 230 m² - 9 pièces
                          • Ferme - 230 m² - 9 pièces
                          • Ferme - 230 m² - 9 pièces
                          • Ferme - 230 m² - 9 pièces
                          • Ferme - 230 m² - 9 pièces
                          • Ferme - 230 m² - 9 pièces Cliquez pour voir les 16 photos

                          Ferme - 230 m² - 9 pièces

                          385 000 €
                          NEULISE (42590) vends en exclusivité corps de ferme avec 2,85 hectares de terrain. Vous rêvez d'espace, d'authenticité et de calme ? Découvrez ce magnifique corps de ferme de 230 m² habitable avec cour fermée, niché sur un terrain de 2,85 hectares, avec piscine et jardin paysager. Les dépendances de 410 m² à aménager selon vos envies (atelier, gîte, garages, écuries, stockage,
                          Professionnel Publié il y a plus de 7 jours Non géolocalisée
                          Neulise 4 ch 2 sdb Terrasse Piscine Parking
                          • Maison - 150 m² - 150 pièces
                          • Maison - 150 m² - 150 pièces
                          • Maison - 150 m² - 150 pièces
                          • Maison - 150 m² - 150 pièces
                          • Maison - 150 m² - 150 pièces
                          • Maison - 150 m² - 150 pièces Cliquez pour voir les 17 photos

                          Maison - 150 m² - 150 pièces

                          311 970 €
                          Propriété Authentique : Située dans un cadre verdoyant, à équidistance de trois grande ville Lyon Clermont et Saint Etienne , ce corps de ferme authentique, en pierre, s'étend sur un terrain de 2.68 hectares, parfait pour les amoureux de la nature et des grands espaces ; Il offre un véritable potentiel . La Maison (150 m²) : L'accès à la maison se fait par une grande terra
                          Professionnel Publié il y a plus de 7 jours
                          Neulise 4 ch 1 sdb
                          • Maison - 114 m² - 4 pièces
                          • Maison - 114 m² - 4 pièces
                          • Maison - 114 m² - 4 pièces
                          • Maison - 114 m² - 4 pièces
                          • Maison - 114 m² - 4 pièces
                          • Maison - 114 m² - 4 pièces Cliquez pour voir les 10 photos

                          Maison - 114 m² - 4 pièces

                          140 000 €
                          Iad France - William Dumas vous propose : Maison de village avec jardin et garage – Neulise Au cOEur du village de Neulise, découvrez cette maison avec terrain de 274 m², offrant un jardin clos et un garage attenant. La maison s’élève sur un étage et se compose au rez-de-chaussée d’un hall d’entrée, d’une cuisine, d’un séjour, d’une salle de bains, d’un WC indépendant ainsi que
                          Professionnel Publié il y a plus de 7 jours
                          Neulise 3 ch
                          • Maison traditionnelle - 145 m² - 6 pièces
                          • Maison traditionnelle - 145 m² - 6 pièces
                          • Maison traditionnelle - 145 m² - 6 pièces
                          • Maison traditionnelle - 145 m² - 6 pièces
                          • Maison traditionnelle - 145 m² - 6 pièces
                          • Maison traditionnelle - 145 m² - 6 pièces Cliquez pour voir les 9 photos

                          Maison traditionnelle - 145 m² - 6 pièces

                          195 000 €
                          PINAY . Au calme, avec vue sur la campagne et sur la Loire, maison offrant sur environ 145m² habitables cuisine et salle à manger ouvrant sur terrasse en partie couverte, salon, dégagements, 4 chambres dont deux ouvrant sur balcon, salle d'eau, WC . Cellier . Buanderie . Cave . Le tout sur un terrain d'environ 2280m² avec grande dépendance pouvant être aménagée en garage . DPE
                          Professionnel Publié il y a plus de 7 jours Non géolocalisée
                          Neulise 4 ch Exposition Sud
                          • Maison traditionnelle - 148 m² - 8 pièces
                          • Maison traditionnelle - 148 m² - 8 pièces
                          • Maison traditionnelle - 148 m² - 8 pièces
                          • Maison traditionnelle - 148 m² - 8 pièces
                          • Maison traditionnelle - 148 m² - 8 pièces
                          • Maison traditionnelle - 148 m² - 8 pièces Cliquez pour voir les 9 photos

                          Maison traditionnelle - 148 m² - 8 pièces

                          118 000 €
                          SOUS OFFRE. SAINT JODARD. EN EXCLUSIVITE, charmante maison de bourg offrant environ 150m² habitables répartis en un T3 et un T4 pouvant aisément être modulés en un seul logement selon vos projets. Le tout sur un terrain d'environ 560m² avec cour, préau, garage, local de rangement, puits. Chauffage fuel. Double vitrage PVC. Visite virtuelle disponible sur notre site. DPE G. 118
                          Professionnel Publié il y a plus de 7 jours Non géolocalisée
                          Neulise 4 ch 2 sdb Parking
                          Maison - 146 m² - 5 pièces

                          Maison - 146 m² - 5 pièces

                          265 000 €
                          Sous compromis : DPE en cours. Les informations sur les risques auxquels ce bien est exposé sont disponibles sur le site Géorisques : georisques.gouv.fr. Votre conseiller e-mobilier.fr : Fabrice Presle Agent commercial (Entreprise individuelle) RSAC de Roanne 404540379 RCP GALIAN 127100479
                          Professionnel Publié il y a plus de 7 jours Non géolocalisée
                          Neulise Parking
                          • Entrepôt - 330 m² - 3 pièces
                          • Entrepôt - 330 m² - 3 pièces
                          • Entrepôt - 330 m² - 3 pièces
                          • Entrepôt - 330 m² - 3 pièces
                          • Entrepôt - 330 m² - 3 pièces
                          • Entrepôt - 330 m² - 3 pièces Cliquez pour voir les 6 photos

                          Entrepôt - 330 m² - 3 pièces

                          107 000 €
                          Votre agence CHALTON DUBANCHET vous propose à la vente sur la commune de NEULISE un ensemble d'entrepôt plus un logement de environ 340m².L'ensemble est répartis sur deux niveaux de 170m² chacun.Bien rare sur Neulise à visiter rapidement!!!Contacter votre agent Aurélien COMBE au 06 63 11 25 00 Aurélien COMBE (EI) Agent Commercial - Numéro RSAC : - .
                          Professionnel Publié il y a plus de 7 jours Non géolocalisée
                          Neulise Parking
                          • Entrepôt - 330 m² - 3 pièces
                          • Entrepôt - 330 m² - 3 pièces
                          • Entrepôt - 330 m² - 3 pièces
                          • Entrepôt - 330 m² - 3 pièces
                          • Entrepôt - 330 m² - 3 pièces
                          • Entrepôt - 330 m² - 3 pièces Cliquez pour voir les 6 photos

                          Entrepôt - 330 m² - 3 pièces

                          107 000 €
                          Votre agence CHALTON DUBANCHET vous propose à la vente sur la commune de NEULISE un ensemble d'entrepôt plus un logement de environ 340m². L'ensemble est répartis sur deux niveaux de 170m² chacun. Bien rare sur Neulise à visiter rapidement!!! Contacter votre agent Aurélien COMBE au 06 63 11 25 00 Aurélien COMBE (EI) Agent Commercial - Numéro RSAC : - . Les informations sur l
                          Professionnel Publié il y a plus de 7 jours Non géolocalisée
                          Neulise
                          • Maison - 102 m² - 6 pièces
                          • Maison - 102 m² - 6 pièces
                          • Maison - 102 m² - 6 pièces
                          • Maison - 102 m² - 6 pièces
                          • Maison - 102 m² - 6 pièces
                          • Maison - 102 m² - 6 pièces Cliquez pour voir les 8 photos

                          Maison - 102 m² - 6 pièces

                          59 000 €
                          Au coeur du Village de Neulise, une maison d'habitation à rénover. Elles se compose d'un rez de chaussée avec entrée, salle à manger, salon, cuisine, WC séparé, salle d'eau, courette intérieur. À l'étage 4 chambres et combles au dessus. Une cave. La toiture à été refaite. Chauffage électrique par convecteurs. Tout à l'égout. Prévoir travaux de second oeuvre : isolation, électri
                          Professionnel Publié il y a plus de 7 jours Non géolocalisée
                          Neulise 4 ch 1 sdb Terrasse Parking
                          • Maison - 102 m² - 6 pièces
                          • Maison - 102 m² - 6 pièces
                          • Maison - 102 m² - 6 pièces
                          • Maison - 102 m² - 6 pièces
                          • Maison - 102 m² - 6 pièces
                          • Maison - 102 m² - 6 pièces Cliquez pour voir les 8 photos

                          Maison - 102 m² - 6 pièces

                          59 000 €
                          Au coeur du Village de Neulise, une maison d'habitation à rénover. Elles se compose d'un rez de chaussée avec entrée, salle à manger, salon, cuisine, WC séparé, salle d'eau, courette intérieur. A l'étage 4 chambres et combles au dessus. Une cave. La toiture à été refaite. Chauffage électrique par convecteurs. Tout à l'égout. Prévoir travaux de second oeuvre : isolation, électri
                          Professionnel Publié il y a plus de 7 jours Non géolocalisée
                          Neulise 4 ch 1 sdb Terrasse Parking Exposition Est
                          • Maison - 120 m² - 4 pièces
                          • Maison - 120 m² - 4 pièces
                          • Maison - 120 m² - 4 pièces
                          • Maison - 120 m² - 4 pièces
                          • Maison - 120 m² - 4 pièces
                          • Maison - 120 m² - 4 pièces Cliquez pour voir les 17 photos

                          Maison - 120 m² - 4 pièces

                          229 000 €
                          EXCLUSIVITE : À 10 minutes de l'A89 Balbigny, dans un petit village de la Loire. Découvrez cette charmante maison de 2008; qui se compose d'une entrée, un WC, une cuisine équipée ouverte sur un séjour, une véranda, une salle de bains et 3 chambres, le tout sur un rez-de-chaussée d'une surface de 91 m². Au sous-sol, deux garages, une cuisine d'été d'une surface de 29 m², un seco
                          Professionnel Publié il y a plus de 7 jours Non géolocalisée
                          Neulise 3 ch 1 sdb Terrasse Parking
                          • Maison - 172 m² - 6 pièces
                          • Maison - 172 m² - 6 pièces
                          • Maison - 172 m² - 6 pièces
                          • Maison - 172 m² - 6 pièces
                          • Maison - 172 m² - 6 pièces
                          • Maison - 172 m² - 6 pièces Cliquez pour voir les 10 photos

                          Maison - 172 m² - 6 pièces

                          148 000 €
                          Iad France - William Dumas vous propose : Charmante Maison Pleine de Caractère à Deux Pas du Centre de Neulise Découvrez cette résidence unique à l'atmosphère chaleureuse, idéalement située à proximité du centre-ville de Neulise. Cette maison pleine de cachet offre un cadre de vie exceptionnel. Caractéristiques clés : Emplacement idéal : Proche du cOEur de Neulise, cette maison
                          Professionnel Publié il y a plus de 7 jours
                          Neulise
                          • Bureau - 391 m² - 6 pièces
                          • Bureau - 391 m² - 6 pièces
                          • Bureau - 391 m² - 6 pièces

                          Bureau - 391 m² - 6 pièces

                          299 000 €
                          À Vendre Local d'Activité de 391 m² à NEULISE (42), Proche AUTOROUTE Découvrez ce LOCAL d'activité de 391 m², idéalement implanté, offrant une excellente ACCESSIBILITE. Ce local est actuellement LOUE pour un loyer de 2330€ HT (bail 3-6-9), hors charge. Caractéristiques du local : - Superficie totale : 391 m² - Grand hall d'entrée (env. 60 m²) - Possibilité d'aménagement en
                          Professionnel Publié il y a plus de 7 jours Non géolocalisée
                          Neulise Parking
                          • Fonds de commerce - Magasins
                          • Fonds de commerce - Magasins
                          • Fonds de commerce - Magasins
                          • Fonds de commerce - Magasins
                          • Fonds de commerce - Magasins
                          • Fonds de commerce - Magasins Cliquez pour voir les 6 photos

                          Fonds de commerce - Magasins

                          20 000 €
                          Professionnel Publié il y a plus de 7 jours Non géolocalisée
                          Neulise Parking
                          • Maison - 120 m² - 4 pièces
                          • Maison - 120 m² - 4 pièces
                          • Maison - 120 m² - 4 pièces
                          • Maison - 120 m² - 4 pièces
                          • Maison - 120 m² - 4 pièces
                          • Maison - 120 m² - 4 pièces Cliquez pour voir les 17 photos

                          Maison - 120 m² - 4 pièces

                          229 000 €
                          EXCLUSIVITE : A 10 minutes de l'A89 Balbigny, dans un petit village de la Loire. Découvrez cette charmante maison de 2008; qui se compose d'une entrée, un WC, une cuisine équipée ouverte sur un séjour, une véranda, une salle de bains et 3 chambres, le tout sur un rez-de-chaussée d'une surface de 91 m2. Au sous-sol, deux garages, une cuisine d'été d'une surface de 29 m2, un seco
                          Professionnel Publié il y a plus de 7 jours Non géolocalisée
                          Neulise 3 ch 1 sdb Terrasse Parking
                          3

                          Annonces immobilières à Saint-Marcel-de-Félines

                          (3.7 km)
                          • Terrain constructible - 733 m²
                          • Terrain constructible - 733 m²
                          • Terrain constructible - 733 m²
                          • Terrain constructible - 733 m²

                          Terrain constructible - 733 m²

                          42 700 €
                          En exclusivité Nathalie Collon vous présente, à moins d'1h de Lyon, dans un agréable lotissement, un magnifique terrain de 733 m2 entièrement viabilisé, possédant également une cuve de récupération des eaux de pluie . Vous serez séduit par la vue dominante sur le village de Saint-Marcel-de-Félines, le cadre naturel a été respecté, puisque aucune ligne électrique ne vient
                          Professionnel Publié il y a plus de 7 jours
                          Saint-Marcel-de-Félines
                          • Terrain constructible - 685 m²
                          • Terrain constructible - 685 m²
                          • Terrain constructible - 685 m²
                          • Terrain constructible - 685 m²
                          • Terrain constructible - 685 m²

                          Terrain constructible - 685 m²

                          40 000 €
                          En exclusivité Nathalie Collon vous présente, à moins d'1h de Lyon, dans un agréable lotissement, un magnifique terrain de 685 m2 entièrement viabilisé, possédant également une cuve de récupération des eaux de pluie . Vous serez séduit par la vue dominante sur le village de Saint-Marcel-de-Félines, le cadre naturel a été respecté, puisque aucune ligne électrique ne vient
                          Professionnel Publié il y a plus de 7 jours
                          Saint-Marcel-de-Félines
                          • Maison ancienne - 177 m² - 8 pièces
                          • Maison ancienne - 177 m² - 8 pièces
                          • Maison ancienne - 177 m² - 8 pièces
                          • Maison ancienne - 177 m² - 8 pièces
                          • Maison ancienne - 177 m² - 8 pièces
                          • Maison ancienne - 177 m² - 8 pièces Cliquez pour voir les 9 photos

                          Maison ancienne - 177 m² - 8 pièces

                          225 000 €
                          SAINT MARCEL DE FELINES. En pleine campagne, au calme, ensemble de trois maisons en pierre. La ferme offre entrée par véranda sur cuisine dînatoire avec cheminée, salon, salle de bains avec douche italienne WC et baignoire, 2 chambres. Garage et chaufferie/buanderie attenants. La maison avec terrasse : entrée sur cuisine dinatoire avec poêle à bois, dégagement, salle d'eau avec
                          Professionnel Publié il y a plus de 7 jours Non géolocalisée
                          Saint-Marcel-de-Félines 5 ch 3 sdb Terrasse Balcon Parking
                          1

                          Annonce immobilière à Croizet-sur-Gand

                          (4.1 km)
                          • Maison - 148 m² - 5 pièces
                          • Maison - 148 m² - 5 pièces
                          • Maison - 148 m² - 5 pièces
                          • Maison - 148 m² - 5 pièces
                          • Maison - 148 m² - 5 pièces
                          • Maison - 148 m² - 5 pièces Cliquez pour voir les 15 photos

                          Maison - 148 m² - 5 pièces

                          320 000 €
                          Iad France - Eve Espinosa vous propose : Charmante Maison Traditionnelle à Croizet-sur-Gand - Nichée dans un écrin de verdure, cette ravissante maison de plain pied de 148 m², avec un joli terrain paysagé offre un joli cadre de vie paisible. Construite en 1972 et entièrement rénovée avec soin, elle dégage un charme intemporel et invite à la découverte de ses multiples atouts. E
                          Professionnel Publié il y a plus de 7 jours
                          Croizet-sur-Gand 4 ch
                          5

                          Annonces immobilières à Saint-Jodard

                          (4.5 km)
                          Appartement - 70 m² - 3 pièces

                          Appartement - 70 m² - 3 pièces

                          442 € / mois
                          Appartement de type 3 à louer sur la jolie commune de Saint Jodard à 25 minutes de Roanne et 15 minutes de Balbigny. Cet appartement se situe au 2ème étage dans une résidence calme de seulement 3 étages. Village au calme avec épicerie, groupement scolaire avec les communes de Pinay et St Georges de Baroille. Il se compose d'un séjour lumineux et spacieux , d'une cuisine, de d
                          Professionnel Publié il y a plus de 7 jours
                          Saint-Jodard 2 ch 1 sdb RDC
                          • Maison - 170 m² - 8 pièces
                          • Maison - 170 m² - 8 pièces
                          • Maison - 170 m² - 8 pièces
                          • Maison - 170 m² - 8 pièces
                          • Maison - 170 m² - 8 pièces
                          • Maison - 170 m² - 8 pièces Cliquez pour voir les 15 photos

                          Maison - 170 m² - 8 pièces

                          209 000 €
                          Votre agence CHALTON DUBANCHET a le plaisir de vous présenter cette superbe maison de caractère des années 1930, offrant environ 170 m² habitables, idéalement située sur la commune de Saint-Jodard.Alliant le charme de l'ancien au confort moderne, cette propriété vous séduira par son authenticité, ses volumes généreux et son cadre de vie exceptionnel.Édifiée sur plusieurs niveau
                          Professionnel Publié il y a plus de 7 jours Non géolocalisée
                          Saint-Jodard 5 ch 1 sdb Terrasse Parking
                          • Maison - 170 m² - 8 pièces
                          • Maison - 170 m² - 8 pièces
                          • Maison - 170 m² - 8 pièces
                          • Maison - 170 m² - 8 pièces
                          • Maison - 170 m² - 8 pièces
                          • Maison - 170 m² - 8 pièces Cliquez pour voir les 15 photos

                          Maison - 170 m² - 8 pièces

                          209 000 €
                          Votre agence CHALTON DUBANCHET a le plaisir de vous présenter cette superbe maison de caractère des années 1930, offrant environ 170 m² habitables, idéalement située sur la commune de Saint-Jodard. Alliant le charme de l'ancien au confort moderne, cette propriété vous séduira par son authenticité, ses volumes généreux et son cadre de vie exceptionnel. Édifiée sur plusieurs ni
                          Professionnel Publié il y a plus de 7 jours Non géolocalisée
                          Saint-Jodard 5 ch 1 sdb Terrasse Standing
                          • Terrain - 843 m²
                          • Terrain - 843 m²
                          • Terrain - 843 m²
                          • Terrain - 843 m²

                          Terrain - 843 m²

                          45 000 €
                          SAINT JODARD. Terrains constructibles viabilisés, plats, vue dégagée, proches du bourg. Construction libre. Parcelles de 1184 m², 843 m² et 1085m². A voir. A partir de 45 000?. Honoraires charge vendeur. ROCHETTE Immobilier. Contacter Kelly BARBELIVIEN au O6.5O.8O.41.78. EI RSAC St-Etienne n°832120869. Les informations sur les risques auxquels ce bien est exposé sont disponibl
                          Professionnel Publié il y a plus de 7 jours Non géolocalisée
                          Saint-Jodard
                          • Terrain - 1 184 m²
                          • Terrain - 1 184 m²
                          • Terrain - 1 184 m²
                          • Terrain - 1 184 m²

                          Terrain - 1 184 m²

                          65 000 €
                          SAINT JODARD. Terrains constructibles viabilisés, plats, vue dégagée, proches du bourg. Construction libre. Parcelles de 1184 m², 843 m² et 1085m². A voir. A partir de 45 000€. Honoraires charge vendeur. ROCHETTE Immobilier. Contacter Kelly BARBELIVIEN au O6.5O.8O.41.78. EI RSAC St-Etienne n°832120869. Les informations sur les risques auxquels ce bien est exposé sont disponibl
                          Professionnel Publié il y a plus de 7 jours Non géolocalisée
                          Saint-Jodard
                          2

                          Annonces immobilières à Pinay

                          (4.7 km)
                          • Maison de campagne - 150 m² - 6 pièces
                          • Maison de campagne - 150 m² - 6 pièces
                          • Maison de campagne - 150 m² - 6 pièces
                          • Maison de campagne - 150 m² - 6 pièces
                          • Maison de campagne - 150 m² - 6 pièces
                          • Maison de campagne - 150 m² - 6 pièces Cliquez pour voir les 13 photos

                          Maison de campagne - 150 m² - 6 pièces

                          195 000 €
                          Iad France - William Dumas vous propose : Charmante maison de campagne avec dépendance – Vue imprenable à Pinay À Pinay, au cOEur d’un environnement paisible et verdoyant, découvrez cette belle maison de campagne de 150 m² habitables, avec une vue exceptionnelle sur la Loire. Elle se compose comme suit Cuisine et salle à manger donnant sur une terrasse en partie couverte Salon
                          Professionnel Publié il y a plus de 7 jours
                          Pinay 3 ch
                          • Maison traditionnelle - 145 m² - 6 pièces
                          • Maison traditionnelle - 145 m² - 6 pièces
                          • Maison traditionnelle - 145 m² - 6 pièces
                          • Maison traditionnelle - 145 m² - 6 pièces
                          • Maison traditionnelle - 145 m² - 6 pièces
                          • Maison traditionnelle - 145 m² - 6 pièces Cliquez pour voir les 8 photos

                          Maison traditionnelle - 145 m² - 6 pièces

                          220 000 €
                          NEULISE PINAY . Maison Forézienne avec très belle vue sur la campagne et la Loire, d'environ 145m² habitables sur un terrain de 2280m² environ, au rez-de-chaussée cuisine et salle à manger ouvrant sur terrasse en partie couverte, salon, dégagements, à l'étage 4 chambres dont deux donnant sur balcon plein sud., salle d'eau, WC . Cellier . Buanderie . Cave . Grande dépendance à r
                          Professionnel Publié il y a plus de 7 jours
                          Pinay 4 ch Terrasse Balcon
                          19

                          Annonces immobilières à Saint-Just-la-Pendue

                          (4.7 km)
                          • Maison - 121 m² - 5 pièces
                          • Maison - 121 m² - 5 pièces
                          • Maison - 121 m² - 5 pièces
                          • Maison - 121 m² - 5 pièces
                          • Maison - 121 m² - 5 pièces
                          • Maison - 121 m² - 5 pièces Cliquez pour voir les 15 photos

                          Maison - 121 m² - 5 pièces

                          99 000 €
                          Iad France - William Dumas vous propose : Maison de village d’une surface habitable d’environ 121 m², comprenant également un grenier de 54 m² et une cave de 10 m². La maison se compose, au rez-de-chaussée, d’une entrée, d’une salle à manger, d’un salon, d’une cuisine, d’une salle d’eau et d’un WC. À l’étage, elle dispose de trois chambres, dont une avec débarras et balcon. Le
                          Professionnel Publié il y a plus de 7 jours
                          Saint-Just-la-Pendue 3 ch
                          • Maison de village - 83 m² - 5 pièces
                          • Maison de village - 83 m² - 5 pièces
                          • Maison de village - 83 m² - 5 pièces
                          • Maison de village - 83 m² - 5 pièces
                          • Maison de village - 83 m² - 5 pièces
                          • Maison de village - 83 m² - 5 pièces Cliquez pour voir les 9 photos

                          Maison de village - 83 m² - 5 pièces

                          135 000 €
                          SAINT JUST LA PENDUE, proche commodités. EN EXCLUSIVITE, maison de village offrant sur environ 83m² entrée, pièce à vivre avec poêle à granules, buanderie, salle de bains avec WC au rez-de-chaussée. A l'étage bureau, 3 chambres dont une avec salle d'eau et une ouvrant sur belle terrasse. Cuisine d'été et garage avec accès cour et jardinet. Le tout sur un terrain de 164m². Visit
                          Professionnel Publié il y a plus de 7 jours Non géolocalisée
                          Saint-Just-la-Pendue 3 ch 2 sdb Terrasse Parking Exposition Nord-est
                          • Immeuble - 300 m² - 8 pièces
                          • Immeuble - 300 m² - 8 pièces
                          • Immeuble - 300 m² - 8 pièces
                          • Immeuble - 300 m² - 8 pièces
                          • Immeuble - 300 m² - 8 pièces
                          • Immeuble - 300 m² - 8 pièces Cliquez pour voir les 13 photos

                          Immeuble - 300 m² - 8 pièces

                          60 000 €
                          En exclusivité sur la commune de Saint Just la Pendue, Un batiment offrant 300 m² de surface utile. Au rez de chaussée un ancien restaurant avec terrasse. À l'Etage un logement offrant 4 chambres, un séjour, une salle de bains. Combles aménageables au dessus pour environ 85 m². Garage et caves en sous sol. Possibilités : Reprise du restaurant / Nouveau commerces / Investissemen
                          Professionnel Publié il y a plus de 7 jours Non géolocalisée
                          Saint-Just-la-Pendue 4 ch 1 sdb Terrasse Parking
                          • Maison ancienne - 88 m² - 5 pièces
                          • Maison ancienne - 88 m² - 5 pièces
                          • Maison ancienne - 88 m² - 5 pièces
                          • Maison ancienne - 88 m² - 5 pièces
                          • Maison ancienne - 88 m² - 5 pièces
                          • Maison ancienne - 88 m² - 5 pièces Cliquez pour voir les 12 photos

                          Maison ancienne - 88 m² - 5 pièces

                          99 000 €
                          MAISON 88 m², grande partie vie lumineuse ouverte sur la cour sans aucun vis à vis de 300 m². 3 chambre, salle de bain, garage, atelier de 107 m² Honoraires à la charge du vendeur. Non soumis au DPE. Les informations sur les risques auxquels ce bien est exposé sont disponibles sur le site Géorisques : georisques.gouv.fr. Votre conseiller Réseau ImmoForfait : Edmond TRAVAR
                          Professionnel Publié il y a plus de 7 jours
                          Saint-Just-la-Pendue 3 ch 1 sdb Parking
                          • Maison - 262 m² - 8 pièces
                          • Maison - 262 m² - 8 pièces
                          • Maison - 262 m² - 8 pièces
                          • Maison - 262 m² - 8 pièces
                          • Maison - 262 m² - 8 pièces
                          • Maison - 262 m² - 8 pièces Cliquez pour voir les 19 photos

                          Maison - 262 m² - 8 pièces

                          280 000 €
                          Iad France - William Dumas vous propose : Maison de Charme avec Grand Atelier de 100 m² Découvrez cette magnifique maison sur un étage avec charpente traditionnelle, offrant environ 262 m² habitables, située sur une parcelle de 1000 m² hors lotissement. Le rez-de-chaussée comprend un hall d'entrée donnant sur une pièce de vie lumineuse avec cheminée, une cuisine équipée, une sa
                          Professionnel Publié il y a plus de 7 jours
                          Saint-Just-la-Pendue 4 ch Terrasse

                          Toutes les annonces immobilières à Neulise et aux environs. Achat, vente et location d'immobilier à Neulise. Le site immobilier de Neulise.

                          Recherche en cours...
                          Rechercher dans cette zone