• Appartement - 64 m² - 3 pièces
  • Appartement - 64 m² - 3 pièces
  • Appartement - 64 m² - 3 pièces
  • Appartement - 64 m² - 3 pièces
  • Appartement - 64 m² - 3 pièces
266 000 €
64 m²
3 pièces
2 chambres

Description :

Exclusif à Nancy !

*DEVENEZ PROPRIÉTAIRE D'UN APPARTEMENT DE 3 PIÈCES À NANCY*

// Balcon // Localisation privilégiée // Espace lumineux //

*QUARTIER : Située à proximité du centre-ville de Nancy, ce quartier offre toutes les commodités nécessaires à ses habitants : commerces, écoles, collèges, université, etc. Ce quartier dynamique se situe proche de zones de loisir et à 2 KM des rives de la Meurthe.

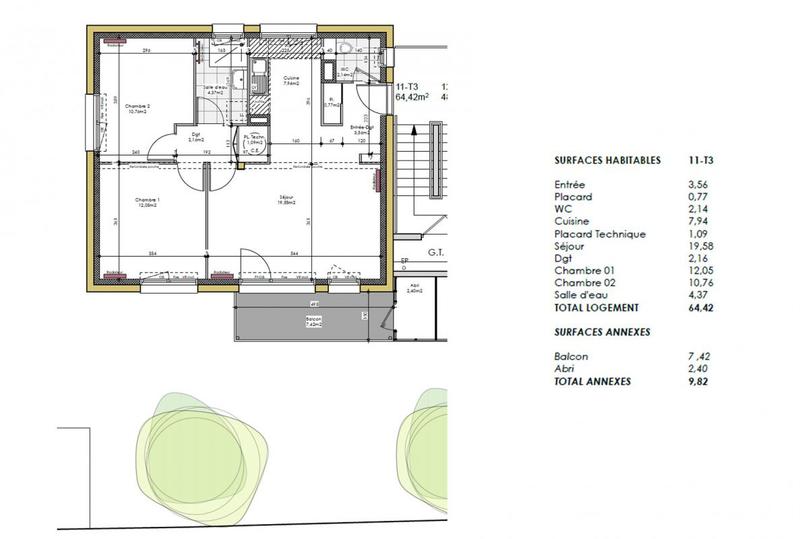
*LOGEMENT : Cet appartement de 3 pièces de 64.42m² , dont 2 chambres de 12,05m² et 10.76m² profite d'un séjour lumineux avec cuisine ouverte de 19.58m² donnant sur un balcon de 7.42m². Cet appartement est équipé d'une salle d'eau avec WC séparé.

*RÉSIDENCE LES LILAS : Bénéficiant d'une localisation privilégiée, la résidence Les Lilas est idéale pour les jeunes actifs et les familles, grâce à sa proximité avec des secteurs dynamique et le confort de vie qu'il offre au quotidien

Contactez-nous dès maintenant !

Afficher plus de détails

Informations sur ce bien :

L'intérieur :

  • 3 pièces
  • 64 m²
    Informations complémentaires
    Surface habitable : 64 m²
  • 2 Chambres
  • Cuisine ouverte
    Informations complémentaires
    Ouverte
  • 1 Salle d'eau
  • 1 Toilette
  • Séjour de 19 m²

L'extérieur :

  • Balcon

Autres :

  • Chauffage :
    Électrique
  • Exposition :
    Nord-est
  • Étage :
    1er étage
Synthèse
Appartement à Nancy
266 000 €
Surface : 64 m²
Prix au m² : 4 156 €
Transaction :
Achat
Référence :
54-25-006801
Date de publication :
Il y a plus de 7 jours
Appartement - 64 m² - 3 pièces
Agent
QUADRAL TRANSACTIONS
QUADRAL TRANSACTIONS
Hijra BAHMANI
Appeler
Écrire
Mettre en avant cette annonce
Signaler une erreur

Localisation :

Annonces similaires
Annonces immobilières récentes