• Appartement - 82 m² - 3 pièces
  • Appartement - 82 m² - 3 pièces
  • Appartement - 82 m² - 3 pièces
  • Appartement - 82 m² - 3 pièces
  • Appartement - 82 m² - 3 pièces
  • Appartement - 82 m² - 3 pièces
  • Appartement - 82 m² - 3 pièces
  • Appartement - 82 m² - 3 pièces
  • Appartement - 82 m² - 3 pièces
  • Appartement - 82 m² - 3 pièces
220 000 €
82 m²
3 pièces
2 chambres

Description :

34000 MONTPELLIER – EXCLUSIVITÉ – T3/T4 SPACIEUX AVEC TERRASSES – VUE DÉGAGÉE À DEUX PAS DE PORT MARIANNE - STATIONNEMENT PRIVATIF + CAVE - possibilité de 3e chambre

Natalia et Efficity, l'agence qui estime votre bien en ligne, vous proposent cet appartement de 81,54 m² Loi Carrez, situé dans une résidence calme et bien entretenue, à quelques pas du Lez, de la Nouvelle Mairie et du quartier prisé de Port Marianne.

Situé dans une résidence soignée et bien entretenue, à proximité immédiate de la Nouvelle Mairie, du Lez et du quartier prisé de Port Marianne, cet appartement lumineux de 81,54 m² Loi Carrez vous séduira par ses volumes, sa clarté et son emplacement privilégié.

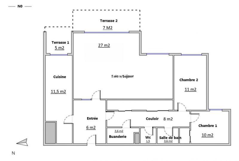
Au 3e étage sur 4 avec ascenseur, il se compose de :

- Une entrée accueillante de 6 m²

- Un double séjour de 27 m², ouvrant sur une terrasse de 7 m² exposée sud-est, sans vis-à-vis, avec une belle vue dégagée

- Une cuisine indépendante de 11,5 m², avec accès à une deuxième terrasse de 5 m²

- Deux chambres confortables de 10 m² et 11 m²

- Une penderie linéaire de près de 5 mètres

- Une salle de bains avec baignoire

- WC séparés

- Buanderie pratique

Configuration modulable : le séjour peut facilement être réaménagé pour créer une 3e chambre, selon vos besoins.

L'appartement comprend également :

- Une cave privative de 5 m²

- Une place de stationnement réservée

Charges annuelles : 1 200 €
Taxe foncière : 1 723 €

Emplacement recherché :

À 5 min à pied du tramway

À 20 min à pied de la gare Saint-Roch

Accès direct aux pistes cyclables du Lez jusqu'à la mer

15 minutes en voiture des plages

Commerces, écoles, collège, mairie… tout est accessible à pied. Travaux à prévoir.

Pourquoi ce bien ?
Un bel espace de vie lumineux, un emplacement central, des extérieurs agréables et un fort potentiel d'évolution.

Contactez Natalia dès maintenant pour organiser une visite.
Les informations sur les risques auxquels ce bien est exposé sont disponibles sur le site Georisque : georisques. gouv. fr
Natalia Lopes - EI - est Agent Commercial mandataire en immobilier, immatriculé au Registre Spécial des Agents Commerciaux du Tribunal de Commerce de Montpellier sous le n°935366898.
Siège social du mandant : effiCity, 48 avenue de Villiers - 75017 PARIS - Société par Actions Simplifiée, société au capital de 132 373,05 euros, immatriculée au RCS Paris 497 617 746 et titulaire de la Carte professionnelle CPI 7501 2015 000 002 025 - CCI Paris IDF - Caisse de Garantie : GALIAN Assurances 89 rue de la Boétie 75008 Paris

Afficher plus de détails

Informations sur ce bien :

L'intérieur :

  • 3 pièces
  • 82 m²
    Informations complémentaires
    Surface habitable : 82 m²
  • 2 Chambres
  • 1 Salle de bain
  • 1 Toilette
  • Séjour de 27 m²
  • Cave

L'extérieur :

  • Balcon
  • Parking

Les équipements :

  • Ascenseur
  • Accès handicapé

Autres :

  • Chauffage :
    Individuel, Climatisation, Électrique
  • Année de construction :
    1988
  • Exposition :
    Sud
  • Étage :
    3ème étage
    Informations complémentaires
    Nombre d'étages de la construction : 4

Copropriété :

  • Copropriété :
    Oui
  • Nombre de lots :
    62
  • Charges annuelles :
    1 200 €
  • Taxe foncière :
    1 700 €
Synthèse
Appartement à Montpellier
220 000 €
Surface : 82 m²
Prix au m² : 2 683 €
Transaction :
Achat
Référence :
181245
Mandat :
Exclusif
Date de publication :
Il y a plus de 7 jours
Appartement - 82 m² - 3 pièces
Performance énergétique
A
B
C
D
E
F
G
Gaz à effet de serre
A
B
C
D
E
F
G
Agent
RESEAU EFFICITY
RESEAU EFFICITY
Mme Natalia Lopes
Appeler
Écrire
Mettre en avant cette annonce
Signaler une erreur

Localisation :

Performance énergétique :

Logement économe
A
B
C
136
kWh/m²/an
4
kg CO₂/m²/an
D
E
F
G
Logement énergivore
Faible émission de CO₂
A
4
kg CO₂/m²/an
B
C
D
E
F
G
Forte émission de CO₂
Date du diagnostic : 20 janvier 2025
Annonces similaires
Annonces immobilières récentes