• Appartement - 68 m² - 2 pièces
190 000 €
68 m²
2 pièces
1 chambre

Description :

Dans le cœur vibrant du 6ᵉ arrondissement de Marseille, à deux pas de Notre-Dame-du-Mont et de la rue Fontange, découvrez ce magnifique T2 de 65 m², niché au sein d'un immeuble de caractère.

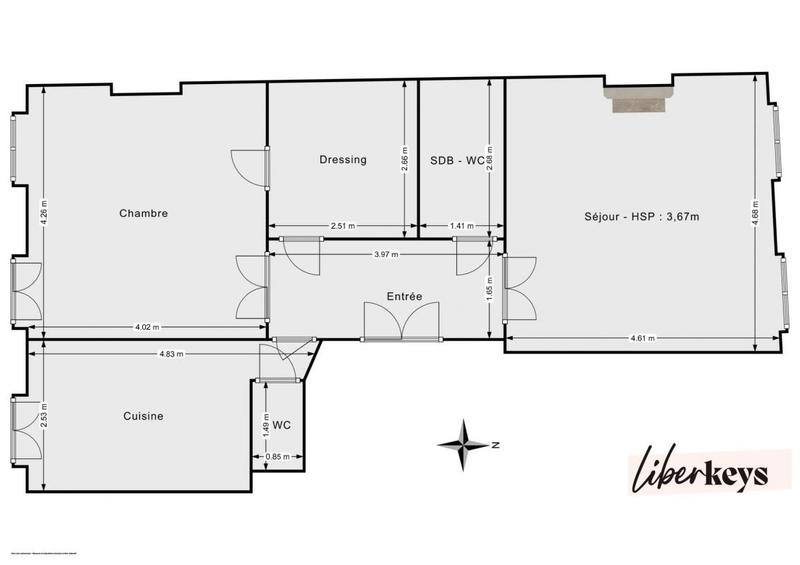
Cet appartement aux lignes élégantes, à la hauteur sous plafond rare de 3,67 m, offre un subtil mélange entre charme de l'ancien et potentiel haut de gamme.

Agencement harmonieux :

Entrée spacieuse desservant toutes les pièces, parfaite pour accueillir une bibliothèque ou une console design
Séjour lumineux de plus de 21 m² (4,61 x 4,68 m), avec cheminée décorative et grandes ouvertures
Cuisine indépendante (12,2 m²), pouvant être transformée en cuisine dînatoire haut de gamme
Chambre de maître de 17,2 m², au calme
Dressing généreux attenant (6,7 m²), idéal pour optimiser le rangement
Salle de bain avec WC + toilettes séparées pour les invités
Les + du bien :

Charme de l'ancien : volumes, portes pleines, cheminées
Plan en étoile offrant une circulation fluide
Triple orientation pour une belle luminosité
Quartier dynamique et central, à 3 min du métro Notre-Dame-du-Mont, proche des écoles, restaurants, galeries, et du Cours Julien
Adresse idéale pour amateurs de vie culturelle, citadine et élégante.

Ce bien s'adresse aux esthètes, jeunes actifs, ou investisseurs exigeants souhaitant conjuguer emplacement, volume et authenticité dans un cadre de vie rare.

Afficher plus de détails

Informations sur ce bien :

L'intérieur :

  • 2 pièces
  • 68 m²
    Informations complémentaires
    Surface habitable : 68 m²
  • 1 Chambre
  • 1 Salle d'eau
  • 2 Toilettes
  • Cave

L'extérieur :

  • Terrasse

Les équipements :

  • Double vitrage

Autres :

  • Chauffage :
    Individuel, Radiateur, Électrique
  • Année de construction :
    1919
  • Exposition :
    Nord
  • Étage :
    RDC
    Informations complémentaires
    Nombre d'étages de la construction : 3

Copropriété :

  • Charges annuelles :
    360 €
  • Taxe foncière :
    1 159 €
Synthèse
Appartement à Marseille 6
190 000 €
Surface : 68 m²
Prix au m² : 2 794 €
Transaction :
Achat
Référence :
DOM16145
Mandat :
Exclusif
Date de publication :
Il y a plus de 7 jours
Appartement - 68 m² - 2 pièces
Agent
Liberkeys
Liberkeys
Jotricia Loubelo
Appeler
Écrire
Mettre en avant cette annonce
Signaler une erreur

Localisation :

L'adresse exacte n'est pas renseignée. Le bien se situe dans cette zone.

Performance énergétique :

Bien non soumis au Diagnostic de Performance Énergétique (DPE)

Annonces similaires
Annonces immobilières récentes