• Appartement - 35 m² - 2 pièces
  • Appartement - 35 m² - 2 pièces
  • Appartement - 35 m² - 2 pièces
  • Appartement - 35 m² - 2 pièces
  • Appartement - 35 m² - 2 pièces
  • Appartement - 35 m² - 2 pièces
  • Appartement - 35 m² - 2 pièces
  • Appartement - 35 m² - 2 pièces
  • Appartement - 35 m² - 2 pièces
  • Appartement - 35 m² - 2 pièces
60 000 €
35 m²
2 pièces
1 chambre

Description :

' LA BELLE OPPORTUNITÉ '

La Belle de Mai - 3EME ARRONDISSEMENT

Idéalement situé en plein coeur de la Belle de Mai à côté de nombreuses proximités (transports, commerces...), THE AGENCY vous propose en exclusivité cet appartement de type 2/3 au 3ème et dernier étage sans ascenseur.

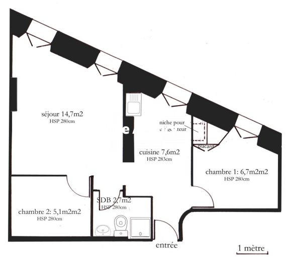
Il est composé d'une cuisine indépendante, d'un séjour, d'une chambre, d'une salle d'eau avec WC et d'un bureau pouvant servir de 2nde chambre.

L'immeuble est en situation de péril et un dossier de prise en charge par l'Anah a été déposé.

L'acquéreur se verra reversé le montant du remboursement, soit jusqu'à 46000€ à la fin des travaux une fois celui-ci accordé.

Vous pourrez donc ensuite bénéficier d'une excellente rentabilité.

Charges : 70.00€ /mois
Taxe Foncière : 594.00€ /an

'The Agency la Révolution Immobilière '

Honoraires inclus de 13.21% TTC à la charge de l'acquéreur. Prix hors honoraires 53 000 €. Dans une copropriété de 14 lots. Quote-part moyenne du budget prévisionnel 840 €/an. Aucune procédure n'est en cours. DPE vierge. Les informations sur les risques auxquels ce bien est exposé sont disponibles sur le site Géorisques : georisques.gouv.fr.

Votre conseiller The Agency : Jean Bastien COSSU
Agent commercial (Entreprise individuelle)

Afficher plus de détails

Informations sur ce bien :

L'intérieur :

  • 2 pièces
  • 35 m²
  • 1 Chambre
  • Cuisine séparée, équipée
    Informations complémentaires
    Séparée, équipée
  • 1 Salle d'eau
  • Séjour de 15 m²

L'extérieur :

  • Parking

Les équipements :

  • Digicode

Autres :

  • Chauffage :
    Individuel, Électrique
  • Année de construction :
    1949
  • Exposition :
    Sud
  • Étage :
    3ème étage (dernier)
    Informations complémentaires
    Nombre d'étages de la construction : 3

Copropriété :

  • Copropriété :
    Oui
  • Nombre de lots :
    14
  • Charges annuelles :
    840 €
Synthèse
Appartement à Marseille 1
60 000 €
Surface : 35 m²
Prix au m² : 1 714 €
Transaction :
Achat
Référence :
VA3299-THEAGENCY
Mandat :
Exclusif
Date de publication :
Il y a plus de 7 jours
Appartement - 35 m² - 2 pièces
Agent
The Agency
Appeler
Écrire
Mettre en avant cette annonce
Signaler une erreur

Localisation :

Performance énergétique :

Estimation des coûts annuels d’énergie du logement : 1 000 €
Annonces similaires
Annonces immobilières récentes