• Demeure - 250 m² - 7 pièces
  • Demeure - 250 m² - 7 pièces
  • Demeure - 250 m² - 7 pièces
  • Demeure - 250 m² - 7 pièces
  • Demeure - 250 m² - 7 pièces
  • Demeure - 250 m² - 7 pièces
  • Demeure - 250 m² - 7 pièces
400 000 €
250 m²
7 pièces
7 chambres

Description :

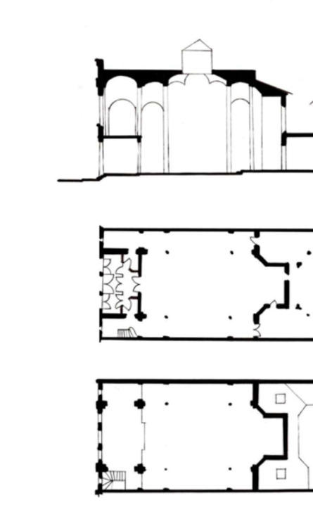
13006 - MARSEILLE - 15 rue BEL AIR - 7 PIÈCES - TEMPLE - 280.0 M² - AVEC TERRASSE POSSIBLE

effiCity, l'agence qui estime votre bien en ligne, vous propose cette sublime EGLISE de caractère située dans le quartier prestigieux de Bel Air à Marseille.

Construite avant 1850, cette demeure de 280.0 m² sur deux niveaux offre un espace de vie spacieux et chaleureux. Avec ses 7 pièces et 7 chambres, elle saura accueillir confortablement toute votre famille.

Les deux potentielles terrasses de 20 m² chacune vous permettra de profiter de moments en extérieur en toute quiétude.

Cette EGLISE de caractère ravira les amateurs d'authenticité et de charme. Sa période de construction lui confère une histoire unique et un cachet indéniable.

Ne laissez pas passer l'opportunité de devenir propriétaire de cette perle rare à Marseille. Contactez-nous dès maintenant au 06 09 03 64 30 pour organiser une visite et découvrir tous les atouts de ce bien d'exception.
Les informations sur les risques auxquels ce bien est exposé sont disponibles sur le site Georisque : georisques. gouv. fr
Thibault Corniquet - EI - est Agent Commercial mandataire en immobilier, immatriculé au Registre Spécial des Agents Commerciaux du Tribunal de Commerce de Marseille sous le n°811251776.
Siège social du mandant : effiCity, 48 avenue de Villiers - 75017 PARIS - Société par Actions Simplifiée, société au capital de 132 373,05 euros, immatriculée au RCS Paris 497 617 746 et titulaire de la Carte professionnelle CPI 7501 2015 000 002 025 - CCI Paris IDF - Caisse de Garantie : GALIAN Assurances 89 rue de la Boétie 75008 Paris

Afficher plus de détails

Informations sur ce bien :

L'intérieur :

  • 7 pièces
  • 250 m²
    Informations complémentaires
    Surface habitable : 250 m²
  • 7 Chambres
  • 1 Salle de bain
  • 1 Toilette

L'extérieur :

  • Terrasse

Les équipements :

  • Accès handicapé
Synthèse
Demeure à Marseille 6
400 000 €
Surface : 250 m²
Prix au m² : 1 600 €
Transaction :
Achat
Référence :
201174
Date de publication :
Hier à 08:48
Demeure - 250 m² - 7 pièces
Performance énergétique
A
B
C
D
E
F
G
Gaz à effet de serre
A
B
C
D
E
F
G
Agent
RESEAU EFFICITY
RESEAU EFFICITY
M. Thibault Corniquet
Appeler
Écrire
Mettre en avant cette annonce
Signaler une erreur

Localisation :

Performance énergétique :

Logement économe
A
B
C
D
E
F
G
500
kWh/m²/an
200
kg CO₂/m²/an
Logement énergivore
Faible émission de CO₂
A
B
C
D
E
F
G
200
kg CO₂/m²/an
Forte émission de CO₂
Date du diagnostic : 07 décembre 2025
Annonces similaires
Annonces immobilières récentes