• Appartement - 121 m² - 4 pièces
  • Appartement - 121 m² - 4 pièces
  • Appartement - 121 m² - 4 pièces
  • Appartement - 121 m² - 4 pièces
  • Appartement - 121 m² - 4 pièces
  • Appartement - 121 m² - 4 pièces
873 000 €
121 m²
4 pièces
3 chambres

Description :

(69003) Je vous propose, dans le quartier de Grange-Blanche, quartier calme tout en étant proche du centre-ville et de la Part-Dieu, Appartements atypiques de style loft dans une résidence proche de nombreux restaurants, petits commerces et cafés qui peut vous garantir une vie de quartier agréable. Vous bénéficiez aussi d'un box simple PMR avec recharge électrique.

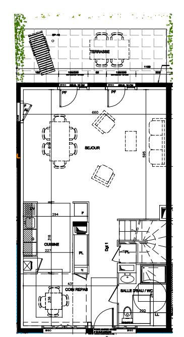
En arrivant devant cet Appartements atypiques , vous trouverez une cour de 36.65m². Cette appartement duplex de 121.90m² comprend, au rez-de-chaussée, une cuisine de 7.35 m² avec un coin repas de 8.90m² d'un côté et ouverte d'un autre côté sur un séjour de 36.97m² donnant une pièce aérée et conviviale et s'ouvrant sur une terrasse de 19.40m² et d'un jardin de 42.10m², ce qui apporte un maximum de luminosité à votre intérieur.

Vous trouverez, également, à cet étage, une salle d'eau avec WC de 6.35m².

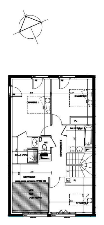
A l'étage, il y a 3 belles chambres de 11.13m², 16.68m² et 14.30m² dont 2 chambres avec placard, une belle salle de bain de 4.30m² avec une baignoire et double vasque et un WC séparé de 1.40m².

Pour compléter ce bel espace, vous trouverez, également une mezzanine de 9.30m²au-dessus du coin repas.

Tout ceci dans un style contemporain où les matériaux et les équipements ont été choisis pour vous offrir un confort moderne et un chez-soi agréable à vivre.

Produit unique et très rare sur le secteur.
Livraison : Livraison 2ème trimestre 2023.
DPE non requis Lot 102
Prix de vente : 873 000 euros
Mandat réf: 390954
Informations, réservations auprès de votre conseiller commercialisateur Coll Thierry pour ineuf-com au 06 62 37 23 23.
Pour visiter et vous accompagner dans votre projet, contactez Thierry Coll, agissant sous le statut conseiller immobilier indépendant auprès de la SAS Propriétés Privées au
06 62 37 23 23 ou par courriel à t.coll@proprietes-privees.com.
RCS 487 624 777 - Le professionnel vous conseille, garantit et sécurise votre projet immobilier.
Cette présente annonce a été rédigée sous la responsabilité éditoriale de Coll Thierry agissant sous le statut d'agent commercial immatriculé au RSAC BREST 878921915 auprès de la SAS PROPRIETES PRIVEES, Réseau national immobilier, au capital de 40000 euros, 44 ALLÉE DES CINQ CONTINENTS - ZAC LE CHÊNE FERRÉ, 44120 VERTOU, RCS Nantes n° 487 624 777 00040,
*voir conditions auprès de votre conseiller.
Copropriété de 20 lots ().

Charges annuelles : 1000 euros.

Afficher plus de détails

Informations sur ce bien :

L'intérieur :

  • 4 pièces
  • 121 m²
    Informations complémentaires
    Surface habitable : 122 m²
  • 3 Chambres
  • Cuisine aménagée
    Informations complémentaires
    Aménagée
  • 2 Salles d'eau
  • 2 Toilettes
  • Séjour de 36 m²

L'extérieur :

  • Jardin
  • Parking extérieur
    Informations complémentaires
    Extérieur

Les équipements :

  • Interphone
  • Digicode

Autres :

  • Chauffage :
    Individuel, Gaz
  • Année de construction :
    2022
  • Exposition :
    Nord
  • Étage :
    RDC
    Informations complémentaires
    Nombre d'étages de la construction : 1

Copropriété :

  • Copropriété :
    Oui
  • Nombre de lots :
    20
  • Charges annuelles :
    1 000 €
Synthèse
Appartement à Lyon 3
873 000 €
Surface : 121 m²
Prix au m² : 7 215 €
Transaction :
Achat
Référence :
3110TC390954TCL
Date de publication :
Il y a plus de 7 jours
Appartement - 121 m² - 4 pièces
Agent
Propriétés Privées
Propriétés Privées
Thierry COLL
Appeler
Écrire
Mettre en avant cette annonce
Signaler une erreur

Localisation :

Performance énergétique :

Bien non soumis au Diagnostic de Performance Énergétique (DPE)

Annonces similaires
Annonces immobilières récentes