• Appartement - 114 m² - 4 pièces
  • Appartement - 114 m² - 4 pièces
  • Appartement - 114 m² - 4 pièces
  • Appartement - 114 m² - 4 pièces
  • Appartement - 114 m² - 4 pièces
  • Appartement - 114 m² - 4 pièces
  • Appartement - 114 m² - 4 pièces
  • Appartement - 114 m² - 4 pièces
480 000 €
114 m²
4 pièces
3 chambres

Description :

69001 LYON - ROUVILLE - DUPLEX DE CHARME EN DERNIER ÉTAGE AVEC VUE FOURVIÈRE.

effiCity, l'agence qui estime votre bien en ligne, vous propose cet appartement de 4 pièces au 5ème et dernier étage avec ascenseur et situé à proximité de la place Rouville.

Ce joli bien de caractère, typique du secteur, offre une surface de 114m² (88m² carrez) baignée de lumière et dispose d'une vue imprenable et d'un calme absolu, tout en étant à deux pas de toutes les commodités.

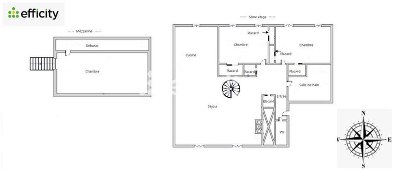
Il se compose d'une entrée qui dessert un spacieux séjour de 40m² avec sa cuisine ouverte et entièrement équipée. Cette dernière, côté Nord, donne dans une rue très calme et peu passante. Le salon quant à lui, est exposé plein Sud, offrant une belle luminosité tout au long de la journée, une superbe vue dégagée sur Fourvière et les toits de Lyon et aucun vis-à-vis.

Côté nuit et sur ce même niveau, vous profiterez de deux chambres avec placards de rangement, la salle de bain ainsi que les WC séparés.

En duplex, un espace de près de 15m² carrez vous offrira, au choix, la possibilité d'une troisième chambre, d'un vaste bureau surplombant la pièce à vivre ou d'un second coin salon.

Cachet de l'ancien, cheminée, poutres apparentes et jolis volumes, ce bien à rafraîchir n'attend que vous pour mettre en valeur tout le charme qu'il possède déjà.
Les photographies de l'annonce sont des propositions d'aménagement réalisées pour vous aider dans vos projections futures (hors cuisine et salle de bains).

Contactez Blandine JOULIA pour plus d'informations.
Les informations sur les risques auxquels ce bien est exposé sont disponibles sur le site Georisque : georisques. gouv. fr
Blandine Joulia - EI - est Agent Commercial mandataire en immobilier, immatriculé au Registre Spécial des Agents Commerciaux du Tribunal de Commerce de Lyon sous le n°801778325.
Siège social du mandant : effiCity, 48 avenue de Villiers - 75017 PARIS - Société par Actions Simplifiée, société au capital de 132 373,05 euros, immatriculée au RCS Paris 497 617 746 et titulaire de la Carte professionnelle CPI 7501 2015 000 002 025 - CCI Paris IDF - Caisse de Garantie : GALIAN Assurances 89 rue de la Boétie 75008 Paris

Afficher plus de détails

Informations sur ce bien :

L'intérieur :

  • 4 pièces
  • 114 m²
    Informations complémentaires
    Surface habitable : 114 m²
  • 3 Chambres
  • 1 Salle de bain
  • Séjour de 30 m²
  • Cave

Les équipements :

  • Ascenseur

Autres :

  • Chauffage :
    Individuel, Radiateur, Électrique
  • Exposition :
    Sud
  • Étage :
    5ème étage (dernier)
    Informations complémentaires
    Nombre d'étages de la construction : 5

Copropriété :

  • Copropriété :
    Oui
  • Nombre de lots :
    25
  • Charges annuelles :
    1 200 €
  • Taxe foncière :
    660 €
Synthèse
Appartement à Lyon 1
480 000 €
Surface : 114 m²
Prix au m² : 4 211 €
Transaction :
Achat
Référence :
200176
Date de publication :
Il y a plus de 7 jours
Appartement - 114 m² - 4 pièces
Performance énergétique
A
B
C
D
E
F
G
Gaz à effet de serre
A
B
C
D
E
F
G
Agent
RESEAU EFFICITY
RESEAU EFFICITY
Mme Blandine Joulia
Appeler
Écrire
Mettre en avant cette annonce
Signaler une erreur

Localisation :

Performance énergétique :

Logement économe
A
B
C
D
244
kWh/m²/an
7
kg CO₂/m²/an
E
F
G
Logement énergivore
Faible émission de CO₂
A
B
7
kg CO₂/m²/an
C
D
E
F
G
Forte émission de CO₂
Date du diagnostic : 02 novembre 2022
Annonces similaires
Annonces immobilières récentes