• Terrain - 950 m²
  • Terrain - 950 m²
396 000 €
950 m²

Description :

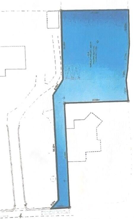
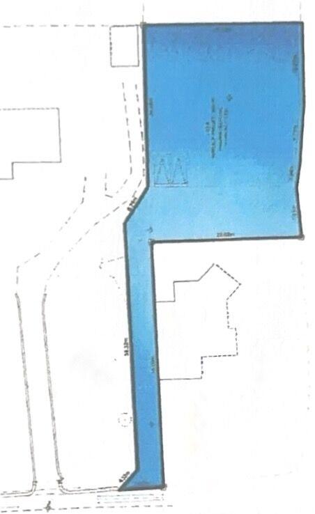
Iad France - Gaël CAILLE vous propose : Terrain de 950 m² à 5 minutes d'une plage en vélo, environnement au calme, sans vis à vis. - Exposé sud - Hors lotissement - Libre de tout constructeur - 30% de coefficient d'emprise au sol soit 285 m² - Viabilisation à proximité Une opportunité rare à ne pas manquer ! Honoraires d'agence à la charge du vendeur. Bien non soumis au DPE. Les informations sur les risques auxquels ce bien est exposé, y compris l'obligation légale de débroussaillement, sont disponibles sur le site Géorisques : http://www.georisques.gouv.fr. La présente annonce immobilière a été rédigée sous la responsabilité éditoriale de Mme Gaël CAILLE mandataire indépendant en immobilier (sans détention de fonds), agent commercial de la SAS I@D France immatriculé au RSAC de LORIENT sous le numéro 878592724, titulaire de la carte de démarchage immobilier pour le compte de la société I@D France SAS.

Afficher plus de détails

Informations sur ce bien :

L'intérieur :

  • 950 m²

Autres :

  • Mitoyenneté :
    Non

Terrain :

  • Viabilisé :
    Non
Synthèse
Terrain à Locmariaquer
396 000 €
Surface : 950 m²
Prix au m² : 417 €
Transaction :
Achat
Référence :
1942443
Date de publication :
Il y a plus de 7 jours
Terrain - 950 m²
Agent
iad france
iad france
Gaël CAILLE
Appeler
Écrire
Mettre en avant cette annonce
Signaler une erreur

Localisation :

L'adresse exacte n'est pas renseignée. Le bien se situe dans cette zone.
Annonces similaires
Annonces immobilières récentes