• Maison - 70 m² - 3 pièces
  • Maison - 70 m² - 3 pièces
  • Maison - 70 m² - 3 pièces
  • Maison - 70 m² - 3 pièces
395 000 €
70 m²
3 pièces
2 chambres

Description :

LILLE - JB LEBAS/ SAINT SAUVEUR – MAISON- 2 CHAMBRES - 70 m² avec JARDIN PRIVATIF-
effiCity, l'agence qui estime votre bien en ligne, vous propose une maison d'exception de 2 chambres, d'une superficie de 70 m², avec une terrasse offrant un véritable havre de paix en plein cœur de Lille.

Il s'agit d'un projet de réhabilitation moderne et respectueux de l'environnement, rénovation haut de gamme d'une maison.
Quartier JB Lebas/Saint Sauveur, Un quartier prisé de Lille, Vous serez à deux pas du parc Jean Lebas, un véritable micro-écosystème urbain naturel, des commerces, des services ou encore des équipements sportifs et culturels, extrêmement bien desservi par une variété de dispositifs de transports (VLille, bus, métros, gare TGV).

Les atouts de la résidence
• Résidence intimiste
• Prestation haut de gamme
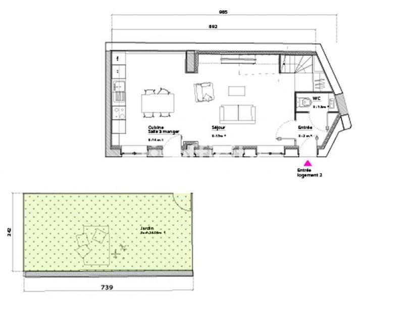
• Espaces de vie lumineux , 2 belles chambres de 11 et 13m²
• Cuisine ouverte sur le séjour pour plus de convivialité
• Jardins privatifs de 24 m²en cœur d'ilot
• Local vélos
• Rénovation soignée et isolation renforcée
• Economie d'énergie

Si vous souhaitez, habiter ou investir dans une ville où le patrimoine culturel, l'art de vivre, le dynamisme, la culture et la nature se mêlent harmonieuse ment,
Prenez contact Hélène Ponchon 06 88 73 26 93 vous remettra le dossier complet.
Les informations sur les risques auxquels ce bien est exposé sont disponibles sur le site Georisque : georisques. gouv. fr
Hélène Ponchon - EI - est Agent Commercial mandataire en immobilier, immatriculé au Registre Spécial des Agents Commerciaux du Tribunal de Commerce de Lille-Métropole sous le n°529374530.
Siège social du mandant : effiCity, 48 avenue de Villiers - 75017 PARIS - Société par Actions Simplifiée, société au capital de 132 373,05 euros, immatriculée au RCS Paris 497 617 746 et titulaire de la Carte professionnelle CPI 7501 2015 000 002 025 - CCI Paris IDF - Caisse de Garantie : GALIAN Assurances 89 rue de la Boétie 75008 Paris

Afficher plus de détails

Informations sur ce bien :

L'intérieur :

  • 3 pièces
  • 70 m²
    Informations complémentaires
    Surface habitable : 70 m²
  • 2 Chambres
  • 1 Salle de bain
  • 1 Toilette
  • Séjour de 31 m²

L'extérieur :

  • Terrasse

Les équipements :

  • Accès handicapé

Autres :

  • Chauffage :
    Individuel, Gaz
  • Année de construction :
    2025
  • Exposition :
    Nord
Synthèse
Maison à Lille
395 000 €
Surface : 70 m²
Prix au m² : 5 643 €
Transaction :
Achat
Référence :
1745962
Date de publication :
Il y a plus de 7 jours
Maison - 70 m² - 3 pièces
Agent
RESEAU EFFICITY
RESEAU EFFICITY
Mme Hélène Ponchon
Appeler
Écrire
Mettre en avant cette annonce
Signaler une erreur

Localisation :

Performance énergétique :

Bien non soumis au Diagnostic de Performance Énergétique (DPE)

Annonces similaires
Annonces immobilières récentes