• Appartement - 51 m² - 2 pièces
  • Appartement - 51 m² - 2 pièces
  • Appartement - 51 m² - 2 pièces
  • Appartement - 51 m² - 2 pièces
  • Appartement - 51 m² - 2 pièces
  • Appartement - 51 m² - 2 pièces
  • Appartement - 51 m² - 2 pièces
  • Appartement - 51 m² - 2 pièces
  • Appartement - 51 m² - 2 pièces
  • Appartement - 51 m² - 2 pièces
104 100 €
51 m²
2 pièces
1 chambre

Description :

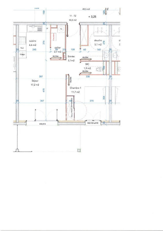
Dans résidence de standing en construction aux portes de Pau sur la commune de Lescar, agréable T2 de 50.50 m2 (lot 11) avec terrasse, exposé est, situé dans une petite copropriété, dans un secteur calme.. Il se compose d'une cuisine à équiper et aménager, ouverte sur séjour , une chambre ,une salle d'eau et toilette séparé ainsi qu'un cellier. L'appartement est vendu en plateau (travaux de second oeuvre à la charge de l'acheteur)avec une place de parking .
Possibilité de le vendre travaux finis au prix de 157450 euros. Idéalement situé par rapport aux commodités et axes routiers importants..PRECOMMERCIALISATION 2026 . A voir sans tarder. Taxe locale d'équipement de 4300 euros. Provision association syndicale 300 euros.

Honoraires inclus de 7.22% TTC à la charge de l'acquéreur. Prix hors honoraires 97 092 €. DPE en cours. Les informations sur les risques auxquels ce bien est exposé sont disponibles sur le site Géorisques : georisques.gouv.fr.
.
Les informations sur les risques auxquels ce bien est exposé sont disponibles sur le site Géorisques : www.georisques.gouv.fr

Afficher plus de détails

Informations sur ce bien :

L'intérieur :

  • 2 pièces
  • 51 m²
  • 1 Chambre

L'extérieur :

  • Parking

Autres :

  • Année de construction :
    2022
  • Étage :
    1er étage
    Informations complémentaires
    Nombre d'étages de la construction : 1
Synthèse
Appartement à Lescar
104 100 €
Surface : 51 m²
Prix au m² : 2 041 €
Transaction :
Achat
Référence :
VA47762
Date de publication :
Il y a plus de 7 jours
Appartement - 51 m² - 2 pièces
Agent
La-Franchise-Immo Saint-Jean-de-Védas
CPC Monein
Appeler
Écrire
Mettre en avant cette annonce
Signaler une erreur

Localisation :

L'adresse exacte n'est pas renseignée. Le bien se situe dans cette zone.
Annonces similaires
Annonces immobilières récentes