• Bureau - 433 m²
  • Bureau - 433 m²
  • Bureau - 433 m²
  • Bureau - 433 m²
  • Bureau - 433 m²
  • Bureau - 433 m²
  • Bureau - 433 m²
  • Bureau - 433 m²
  • Bureau - 433 m²
1 230 000 €
433 m²

Description :

Kremlin-Bicêtre, à 3mn en voiture de l'A6b, à vendre des bureaux de 433,36 m² (loi carrez) avec parkings et accès direct sur rue 

  

CARACTERISTIQUES DE L'OFFRE 

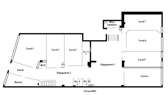
Au RDC sur rue de 300,94 m² : 

Un espace d'accueil 

7 bureaux cloisonnés 

Très peu de contraintes porteuses 

Un bloc sanitaires + un sanitaire 

Un espace de stockage 

Au sous-sol de 132,42 m², accessible via un escalier intérieur :

3 bureaux

Un local technique 

Espace de réserve 

Un espace de 86,71 m² peut être relié au sous-sol afin d'intégrer la surface privative et commerciale du lot. 

3 boxes de parking sont inclus. 

Idéal pour les activités médicales, paramédicales, bureaux... 

CONDITIONS FINANCIERES 

Prix Net Vendeur : 1 230 000 € HD 

Honoraires en sus à la charge de l'aquéreur : 5% HT du prix Net Vendeur, soit 61 500 € HT 

Disponibilité : Immédiate 

Afficher plus de détails

Informations sur ce bien :

L'intérieur :

  • 433 m²
Synthèse
Bureau à Le Kremlin-Bicêtre
1 230 000 €
Surface : 433 m²
Prix au m² : 2 841 €
Transaction :
Achat (professionnels)
Référence :
10316022
Disponibilité :
31/07/2024
Date de publication :
Il y a plus de 7 jours
Bureau - 433 m²
Agent
CONSULT IM
CONSULT IM
Appeler
Écrire
Mettre en avant cette annonce
Signaler une erreur

Localisation :

L'adresse exacte n'est pas renseignée. Le bien se situe dans cette zone.
Annonces similaires
Annonces immobilières récentes