Local d'activités - 527 m² à La Rochelle
Description :
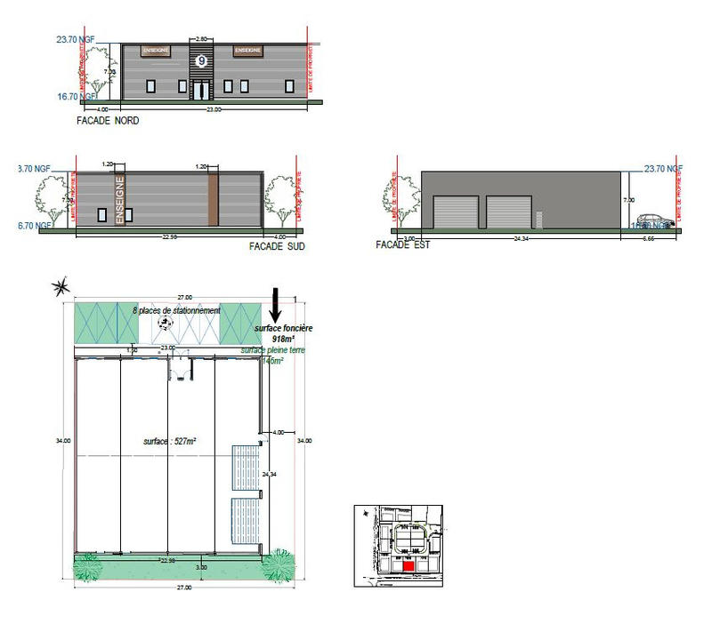
La Rochelle - CDA au sein d'un village artisanal, à vendre cellule artisanale / industrielle de 527 m2 sur un terrain de 918 m2, livré brut de béton, fluides en attente. Construction et livraison courant 1er trimestre 2023, bénéficiant d'une garantie décennale et dommages ouvrages. Bâtiment neuf en charpente métallique, bardage double peau, toiture bac acier à pente douce sur deux pans. La structure bénéficie d'une belle hauteur sous faitage de 7 m et sera accessible par deux portes sectionnelles électriques de 5,5 H x 4,5 M. Compteur bleu triphasé max 36 KVA. 8 stationnements privatifs. Le plus : très belle visibilité sur axe circulant et cellule mitoyenne à une autre de même dimension pouvant être réunies et atteindre plus de 1000 m2 d'exploitation !!! Prix de vente hors honoraires de 798 000 EUR HT. Prix de vente honoraires inclus de 1 436 400 EUR TTC dont 5 % TTC d'honoraires à charge de l'acquéreur
Une affaire d'entreprise ! Les informations sur les risques auxquels ce bien est exposé sont disponibles sur le site Géorisques : 'www.georisques.gouv.fr'.
Informations sur ce bien :
L'intérieur :
-
527 m²
-
Sans cuisineInformations complémentairesSans cuisine
L'extérieur :
-
Parking
Autres :
-
Année de construction :2022
-
Étage :RDC
Localisation :
Performance énergétique :
Bien non soumis au Diagnostic de Performance Énergétique (DPE)
Vente de locaux d'activité et entrepôt à proximité
- 1 vente de local d'activité et entrepôt à Saint-Médard-d'Aunis (13.8 km)
- 1 vente de local d'activité et entrepôt à Nuaillé-d'Aunis (18.3 km)
- 1 vente de local d'activité et entrepôt à Chaillé-les-Marais (27.8 km)
- 1 vente de local d'activité et entrepôt à Rochefort (28.8 km)
- 3 vente de locaux d'activité et entrepôt à Luçon (32.7 km)
- 1 vente de local d'activité et entrepôt à Bourcefranc-le-Chapus (34.8 km)
- 2 vente de locaux d'activité et entrepôt à Sainte-Gemme-la-Plaine (36 km)
- 1 vente de local d'activité et entrepôt à Mareuil-sur-Lay-Dissais (41.9 km)
- 4 vente de locaux d'activité et entrepôt à Fontenay-le-Comte (43.1 km)