• Maison - 49 m² - 2 pièces
  • Maison - 49 m² - 2 pièces
  • Maison - 49 m² - 2 pièces
  • Maison - 49 m² - 2 pièces
  • Maison - 49 m² - 2 pièces
167 500 €
49 m²
2 pièces
1 chambre

Description :

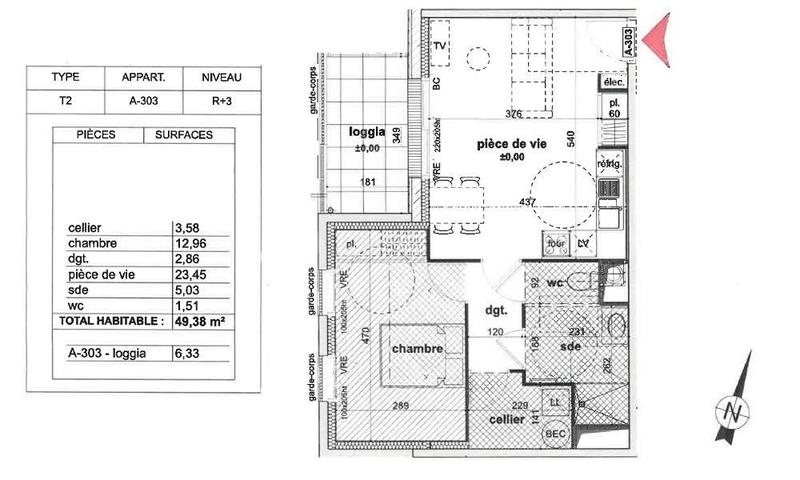
Appartement T2 proposé sous le dispositif BRS (Bail Réel Solidaire), destiné exclusivement à une résidence principale, au sein du programme Cœur Foch, situé en plein centre-ville de La Roche-sur-Yon.

Situé au R+3 – Bâtiment A, ce logement développe 49,38 m² habitables, idéalement agencés pour offrir confort et praticité. Il bénéficie également d'une loggia de 6,33 m², parfaite pour profiter de l'extérieur tout en restant chez soi.

Agencement :

1 chambre
1 salle de bain
Séjour lumineux avec cuisine ouverte
Loggia de 6,33 m²

Caractéristiques principales :

Typologie : T2
Surface habitable : 49,38 m²
Loggia : 6,33 m²
Étage : R+3 – Bâtiment A
Dispositif : BRS (Bail Réel Solidaire)
Finitions personnalisables : carrelage et faïence
Matériaux performants et isolation renforcée
Toitures végétalisées, respectant une architecture contemporaine, sobre et élégante
Parking privé en sous-sol
Locaux commerciaux de proximité au rez-de-chaussée

Performance énergétique & confort

Conforme à la réglementation RE2020, cet appartement assure des performances énergétiques élevées, des charges maîtrisées et un confort de vie optimal.

Le dispositif BRS – Bail Réel Solidaire

Le BRS permet d'acquérir votre logement tout en dissociant le bâti du foncier. Vous devenez propriétaire du logement et versez une redevance mensuelle à l'OFS (Organisme de Foncier Solidaire) de 36,54 €.

Avantages :

Logement réservé à la résidence principale

Conditions de ressources à respecter

Cadre juridique sécurisé

Modalités de revente encadrées

Financements et aides possibles

Prêt à Taux Zéro (PTZ) éligible
Action Logement : jusqu'à 20 000 € d'aide (selon conditions et cotisation employeur)

Un appartement fonctionnel et moderne, situé dans un programme performant et bien situé, alliant qualité de construction, confort et services de proximité, en plein cœur de La Roche-sur-Yon.

Contactez-nous pour plus d'informations ou pour vérifier votre éligibilité au BRS et aux aides disponibles.

 

Afficher plus de détails

Informations sur ce bien :

L'intérieur :

  • 2 pièces
  • 49 m²
    Informations complémentaires
    Surface habitable : 49 m²
  • 1 Chambre
Synthèse
Maison à La Roche-sur-Yon
167 500 €
Surface : 49 m²
Prix au m² : 3 418 €
Transaction :
Neuf
Référence :
MPA_COEURFOCH_A303_T2_167500
Date de publication :
Il y a plus de 7 jours
Maison - 49 m² - 2 pièces
Agent
MAISONS PRIM ACCESS
MAISONS PRIM ACCESS
Appeler
Écrire
Mettre en avant cette annonce
Signaler une erreur

Localisation :

L'adresse exacte n'est pas renseignée. Le bien se situe dans cette zone.
Annonces similaires
Annonces immobilières récentes