Retour
Rechercher
Lieu
Où ?
    Type de bien
    Quel type de projet ?
    Particulier Entreprise
    Quel type de bien ?
        Prix
        Quel budget ?
              Surface
              Quelle surface ?
                    Pièces
                    Combien de pièces ?
                      Combien de chambres ?
                          104

                          Annonces immobilières à La Ravoire

                          Recherche 104
                          Carte
                          • Entrepôt - 175 m²
                          • Entrepôt - 175 m²
                          • Entrepôt - 175 m²

                          Entrepôt - 175 m²

                          1 750 € HT / mois
                          A LOUER - La Ravoire (73490) - 10 minutes de Chambéry - local NEUF de type entrepôts/stockage - 1 lot d'une surface de 175 m² au sol environ - porte sectionnelle motorisée - EDF 380 - hauteur 5,50 m - création de mezzanine possible - dalle charge lourde - accès poids-lourds pour livraisons - livrés bruts, fluides en attente - idéal artisans - disponibilité immédiate.
                          Professionnel Publié il y a plus de 7 jours Non géolocalisée
                          La Ravoire Parking
                          • Appartement - 50 m² - 3 pièces
                          • Appartement - 50 m² - 3 pièces
                          • Appartement - 50 m² - 3 pièces
                          • Appartement - 50 m² - 3 pièces
                          • Appartement - 50 m² - 3 pièces

                          Appartement - 50 m² - 3 pièces

                          179 000 €
                          Iad France - Sebastien Villiermet vous propose : Appartement T2 / 3 avec Balcon, Garage et Cave à La Ravoire D'une surface de 49.71 m², il a été rénové en 2025. Il se compose d'une entrée avec placard, d'un salon / Salle à manger donnant accès au balcon, d'une cuisine séparée à aménager selon vos gouts, d'une chambre, d'une salle d'eau, d'un WC séparé. Situé au 1er étage d'une
                          Professionnel Publié il y a plus de 7 jours
                          La Ravoire 1 ch 1er étage
                          • Appartement - 67 m² - 3 pièces
                          • Appartement - 67 m² - 3 pièces
                          • Appartement - 67 m² - 3 pièces
                          • Appartement - 67 m² - 3 pièces
                          • Appartement - 67 m² - 3 pièces
                          • Appartement - 67 m² - 3 pièces Cliquez pour voir les 8 photos

                          Appartement - 67 m² - 3 pièces

                          1 024 € / mois
                          Iad France - Patricia Debernardi (06 45 77 83 22) vous propose : À La Ravoire, charmant appartement Type 3 de 66 m² environ, idéalement situé dans un quartier tranquille à proximité des commodités. Niché au sixième étage sur sept, d'un bâtiment construit en 2015. Cet appartement bénéficie d'une belle luminosité grâce à 2 grandes baies vitrées dont l'une ouvre sur un balcon de 7
                          Professionnel Publié il y a plus de 7 jours
                          La Ravoire 2 ch 6ème étage
                          • Appartement - 64 m² - 3 pièces
                          • Appartement - 64 m² - 3 pièces
                          • Appartement - 64 m² - 3 pièces
                          • Appartement - 64 m² - 3 pièces
                          • Appartement - 64 m² - 3 pièces
                          • Appartement - 64 m² - 3 pièces Cliquez pour voir les 6 photos

                          Appartement - 64 m² - 3 pièces

                          287 000 €
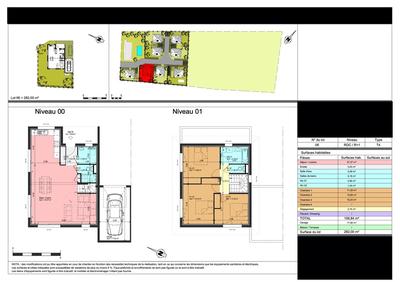
                          CPQQN 3 PIECES LA RAVOIRE (73490) 10 Livraison : Novembre 2028 Se renseigner pour les remises en cours Les images de publicité ne sont pas contractuelles. La commission de l'agence immobilière est payée par le mandant.  Le prix de vente affiche est hors frais d'agence. C'est le prix communique par le promoteur. CPI92012021000000226   LOT A105          Appartement 3 pièces      
                          Professionnel Publié il y a plus de 7 jours Non géolocalisée
                          La Ravoire 2 ch 1er étage Parking
                          • Appartement - 85 m² - 4 pièces
                          • Appartement - 85 m² - 4 pièces
                          • Appartement - 85 m² - 4 pièces
                          • Appartement - 85 m² - 4 pièces
                          • Appartement - 85 m² - 4 pièces
                          • Appartement - 85 m² - 4 pièces Cliquez pour voir les 6 photos

                          Appartement - 85 m² - 4 pièces

                          346 000 €
                          CPQQN 4 PIECES LA RAVOIRE (73490) 1 Livraison : Novembre 2028 Se renseigner pour les remises en cours Les images de publicité ne sont pas contractuelles. La commission de l'agence immobilière est payée par le mandant.  Le prix de vente affiche est hors frais d'agence. C'est le prix communique par le promoteur. CPI92012021000000226   LOT A003          Appartement 4 pièces       
                          Professionnel Publié il y a plus de 7 jours Non géolocalisée
                          La Ravoire 3 ch RDC Parking
                          • Appartement - 61 m² - 3 pièces
                          • Appartement - 61 m² - 3 pièces
                          • Appartement - 61 m² - 3 pièces
                          • Appartement - 61 m² - 3 pièces
                          • Appartement - 61 m² - 3 pièces
                          • Appartement - 61 m² - 3 pièces Cliquez pour voir les 6 photos

                          Appartement - 61 m² - 3 pièces

                          277 000 €
                          CPQQN 3 PIECES LA RAVOIRE (73490) 11 Livraison : Novembre 2028 Se renseigner pour les remises en cours Les images de publicité ne sont pas contractuelles. La commission de l'agence immobilière est payée par le mandant.  Le prix de vente affiche est hors frais d'agence. C'est le prix communique par le promoteur. CPI92012021000000226   LOT B003          Appartement 3 pièces      
                          Professionnel Publié il y a plus de 7 jours Non géolocalisée
                          La Ravoire 2 ch RDC Parking
                          • Appartement - 81 m² - 4 pièces
                          • Appartement - 81 m² - 4 pièces
                          • Appartement - 81 m² - 4 pièces
                          • Appartement - 81 m² - 4 pièces
                          • Appartement - 81 m² - 4 pièces
                          • Appartement - 81 m² - 4 pièces Cliquez pour voir les 6 photos

                          Appartement - 81 m² - 4 pièces

                          334 000 €
                          CPQQN 4 PIECES LA RAVOIRE (73490) 2 Livraison : Novembre 2028 Se renseigner pour les remises en cours Les images de publicité ne sont pas contractuelles. La commission de l'agence immobilière est payée par le mandant.  Le prix de vente affiche est hors frais d'agence. C'est le prix communique par le promoteur. CPI92012021000000226   LOT A107          Appartement 4 pièces       
                          Professionnel Publié il y a plus de 7 jours Non géolocalisée
                          La Ravoire 3 ch 1er étage Parking
                          • Appartement - 81 m² - 4 pièces
                          • Appartement - 81 m² - 4 pièces
                          • Appartement - 81 m² - 4 pièces
                          • Appartement - 81 m² - 4 pièces
                          • Appartement - 81 m² - 4 pièces
                          • Appartement - 81 m² - 4 pièces Cliquez pour voir les 6 photos

                          Appartement - 81 m² - 4 pièces

                          339 000 €
                          CPQQN 4 PIECES LA RAVOIRE (73490) 3 Livraison : Novembre 2028 Se renseigner pour les remises en cours Les images de publicité ne sont pas contractuelles. La commission de l'agence immobilière est payée par le mandant.  Le prix de vente affiche est hors frais d'agence. C'est le prix communique par le promoteur. CPI92012021000000226   LOT A207          Appartement 4 pièces       
                          Professionnel Publié il y a plus de 7 jours Non géolocalisée
                          La Ravoire 3 ch 2nd étage Parking
                          • Appartement - 59 m² - 3 pièces
                          • Appartement - 59 m² - 3 pièces
                          • Appartement - 59 m² - 3 pièces
                          • Appartement - 59 m² - 3 pièces
                          • Appartement - 59 m² - 3 pièces
                          • Appartement - 59 m² - 3 pièces Cliquez pour voir les 6 photos

                          Appartement - 59 m² - 3 pièces

                          266 000 €
                          CPQQN 3 PIECES LA RAVOIRE (73490) 9 Livraison : Novembre 2028 Se renseigner pour les remises en cours Les images de publicité ne sont pas contractuelles. La commission de l'agence immobilière est payée par le mandant.  Le prix de vente affiche est hors frais d'agence. C'est le prix communique par le promoteur. CPI92012021000000226   LOT E104          Appartement 3 pièces       
                          Professionnel Publié il y a plus de 7 jours Non géolocalisée
                          La Ravoire 2 ch 1er étage Parking
                          • Appartement - 61 m² - 3 pièces
                          • Appartement - 61 m² - 3 pièces
                          • Appartement - 61 m² - 3 pièces
                          • Appartement - 61 m² - 3 pièces
                          • Appartement - 61 m² - 3 pièces
                          • Appartement - 61 m² - 3 pièces Cliquez pour voir les 6 photos

                          Appartement - 61 m² - 3 pièces

                          282 000 €
                          CPQQN 3 PIECES LA RAVOIRE (73490) 3 Livraison : Novembre 2028 Se renseigner pour les remises en cours Les images de publicité ne sont pas contractuelles. La commission de l'agence immobilière est payée par le mandant.  Le prix de vente affiche est hors frais d'agence. C'est le prix communique par le promoteur. CPI92012021000000226   LOT F401          Appartement 3 pièces       
                          Professionnel Publié il y a plus de 7 jours Non géolocalisée
                          La Ravoire 2 ch 4ème étage Parking
                          • Appartement - 62 m² - 3 pièces
                          • Appartement - 62 m² - 3 pièces
                          • Appartement - 62 m² - 3 pièces
                          • Appartement - 62 m² - 3 pièces
                          • Appartement - 62 m² - 3 pièces
                          • Appartement - 62 m² - 3 pièces Cliquez pour voir les 6 photos

                          Appartement - 62 m² - 3 pièces

                          289 000 €
                          CPQQN 3 PIECES LA RAVOIRE (73490) 5 Livraison : Novembre 2028 Se renseigner pour les remises en cours Les images de publicité ne sont pas contractuelles. La commission de l'agence immobilière est payée par le mandant.  Le prix de vente affiche est hors frais d'agence. C'est le prix communique par le promoteur. CPI92012021000000226   LOT A307          Appartement 3 pièces       
                          Professionnel Publié il y a plus de 7 jours Non géolocalisée
                          La Ravoire 2 ch 3ème étage Parking
                          • Appartement - 59 m² - 3 pièces
                          • Appartement - 59 m² - 3 pièces
                          • Appartement - 59 m² - 3 pièces
                          • Appartement - 59 m² - 3 pièces
                          • Appartement - 59 m² - 3 pièces
                          • Appartement - 59 m² - 3 pièces Cliquez pour voir les 6 photos

                          Appartement - 59 m² - 3 pièces

                          270 000 €
                          CPQQN 3 PIECES LA RAVOIRE (73490) 7 Livraison : Novembre 2028 Se renseigner pour les remises en cours Les images de publicité ne sont pas contractuelles. La commission de l'agence immobilière est payée par le mandant.  Le prix de vente affiche est hors frais d'agence. C'est le prix communique par le promoteur. CPI92012021000000226   LOT E204          Appartement 3 pièces       
                          Professionnel Publié il y a plus de 7 jours Non géolocalisée
                          La Ravoire 2 ch 2nd étage Parking
                          • Appartement - 61 m² - 3 pièces
                          • Appartement - 61 m² - 3 pièces
                          • Appartement - 61 m² - 3 pièces
                          • Appartement - 61 m² - 3 pièces
                          • Appartement - 61 m² - 3 pièces
                          • Appartement - 61 m² - 3 pièces Cliquez pour voir les 6 photos

                          Appartement - 61 m² - 3 pièces

                          278 000 €
                          CPQQN 3 PIECES LA RAVOIRE (73490) 6 Livraison : Novembre 2028 Se renseigner pour les remises en cours Les images de publicité ne sont pas contractuelles. La commission de l'agence immobilière est payée par le mandant.  Le prix de vente affiche est hors frais d'agence. C'est le prix communique par le promoteur. CPI92012021000000226   LOT F301          Appartement 3 pièces       
                          Professionnel Publié il y a plus de 7 jours Non géolocalisée
                          La Ravoire 2 ch 3ème étage Parking
                          • Appartement - 62 m² - 3 pièces
                          • Appartement - 62 m² - 3 pièces
                          • Appartement - 62 m² - 3 pièces
                          • Appartement - 62 m² - 3 pièces
                          • Appartement - 62 m² - 3 pièces
                          • Appartement - 62 m² - 3 pièces Cliquez pour voir les 6 photos

                          Appartement - 62 m² - 3 pièces

                          284 000 €
                          CPQQN 3 PIECES LA RAVOIRE (73490) 8 Livraison : Novembre 2028 Se renseigner pour les remises en cours Les images de publicité ne sont pas contractuelles. La commission de l'agence immobilière est payée par le mandant.  Le prix de vente affiche est hors frais d'agence. C'est le prix communique par le promoteur. CPI92012021000000226   LOT F203          Appartement 3 pièces       
                          Professionnel Publié il y a plus de 7 jours Non géolocalisée
                          La Ravoire 2 ch 2nd étage Parking
                          • Appartement - 59 m² - 3 pièces
                          • Appartement - 59 m² - 3 pièces
                          • Appartement - 59 m² - 3 pièces
                          • Appartement - 59 m² - 3 pièces
                          • Appartement - 59 m² - 3 pièces
                          • Appartement - 59 m² - 3 pièces Cliquez pour voir les 6 photos

                          Appartement - 59 m² - 3 pièces

                          274 000 €
                          CPQQN 3 PIECES LA RAVOIRE (73490) 4 Livraison : Novembre 2028 Se renseigner pour les remises en cours Les images de publicité ne sont pas contractuelles. La commission de l'agence immobilière est payée par le mandant.  Le prix de vente affiche est hors frais d'agence. C'est le prix communique par le promoteur. CPI92012021000000226   LOT E304          Appartement 3 pièces       
                          Professionnel Publié il y a plus de 7 jours Non géolocalisée
                          La Ravoire 2 ch 3ème étage Parking
                          • Appartement - 42 m² - 2 pièces
                          • Appartement - 42 m² - 2 pièces
                          • Appartement - 42 m² - 2 pièces
                          • Appartement - 42 m² - 2 pièces
                          • Appartement - 42 m² - 2 pièces
                          • Appartement - 42 m² - 2 pièces Cliquez pour voir les 6 photos

                          Appartement - 42 m² - 2 pièces

                          215 000 €
                          CPQQN 2 PIECES LA RAVOIRE (73490) 16 Livraison : Novembre 2028 Se renseigner pour les remises en cours Les images de publicité ne sont pas contractuelles. La commission de l'agence immobilière est payée par le mandant.  Le prix de vente affiche est hors frais d'agence. C'est le prix communique par le promoteur. CPI92012021000000226   LOT F601          Appartement 2 pièces      
                          Professionnel Publié il y a plus de 7 jours Non géolocalisée
                          La Ravoire 1 ch 6ème étage Parking
                          • Appartement - 59 m² - 3 pièces
                          • Appartement - 59 m² - 3 pièces
                          • Appartement - 59 m² - 3 pièces
                          • Appartement - 59 m² - 3 pièces
                          • Appartement - 59 m² - 3 pièces
                          • Appartement - 59 m² - 3 pièces Cliquez pour voir les 6 photos

                          Appartement - 59 m² - 3 pièces

                          280 000 €
                          CPQQN 3 PIECES LA RAVOIRE (73490) 1 Livraison : Novembre 2028 Se renseigner pour les remises en cours Les images de publicité ne sont pas contractuelles. La commission de l'agence immobilière est payée par le mandant.  Le prix de vente affiche est hors frais d'agence. C'est le prix communique par le promoteur. CPI92012021000000226   LOT E404          Appartement 3 pièces       
                          Professionnel Publié il y a plus de 7 jours Non géolocalisée
                          La Ravoire 2 ch 4ème étage Parking
                          • Appartement - 42 m² - 2 pièces
                          • Appartement - 42 m² - 2 pièces
                          • Appartement - 42 m² - 2 pièces
                          • Appartement - 42 m² - 2 pièces
                          • Appartement - 42 m² - 2 pièces
                          • Appartement - 42 m² - 2 pièces Cliquez pour voir les 6 photos

                          Appartement - 42 m² - 2 pièces

                          202 000 €
                          CPQQN 2 PIECES LA RAVOIRE (73490) 15 Livraison : Novembre 2028 Se renseigner pour les remises en cours Les images de publicité ne sont pas contractuelles. La commission de l'agence immobilière est payée par le mandant.  Le prix de vente affiche est hors frais d'agence. C'est le prix communique par le promoteur. CPI92012021000000226   LOT F501          Appartement 2 pièces      
                          Professionnel Publié il y a plus de 7 jours Non géolocalisée
                          La Ravoire 1 ch 5ème étage Parking
                          • Appartement - 41 m² - 2 pièces
                          • Appartement - 41 m² - 2 pièces
                          • Appartement - 41 m² - 2 pièces
                          • Appartement - 41 m² - 2 pièces
                          • Appartement - 41 m² - 2 pièces
                          • Appartement - 41 m² - 2 pièces Cliquez pour voir les 6 photos

                          Appartement - 41 m² - 2 pièces

                          202 000 €
                          CPQQN 2 PIECES LA RAVOIRE (73490) 14 Livraison : Novembre 2028 Se renseigner pour les remises en cours Les images de publicité ne sont pas contractuelles. La commission de l'agence immobilière est payée par le mandant.  Le prix de vente affiche est hors frais d'agence. C'est le prix communique par le promoteur. CPI92012021000000226   LOT E401          Appartement 2 pièces      
                          Professionnel Publié il y a plus de 7 jours Non géolocalisée
                          La Ravoire 1 ch 4ème étage Parking
                          • Appartement - 62 m² - 3 pièces
                          • Appartement - 62 m² - 3 pièces
                          • Appartement - 62 m² - 3 pièces
                          • Appartement - 62 m² - 3 pièces
                          • Appartement - 62 m² - 3 pièces
                          • Appartement - 62 m² - 3 pièces Cliquez pour voir les 6 photos

                          Appartement - 62 m² - 3 pièces

                          293 000 €
                          CPQQN 3 PIECES LA RAVOIRE (73490) 2 Livraison : Novembre 2028 Se renseigner pour les remises en cours Les images de publicité ne sont pas contractuelles. La commission de l'agence immobilière est payée par le mandant.  Le prix de vente affiche est hors frais d'agence. C'est le prix communique par le promoteur. CPI92012021000000226   LOT A406          Appartement 3 pièces       
                          Professionnel Publié il y a plus de 7 jours Non géolocalisée
                          La Ravoire 2 ch 4ème étage Parking
                          • Appartement - 44 m² - 2 pièces
                          • Appartement - 44 m² - 2 pièces
                          • Appartement - 44 m² - 2 pièces
                          • Appartement - 44 m² - 2 pièces
                          • Appartement - 44 m² - 2 pièces
                          • Appartement - 44 m² - 2 pièces Cliquez pour voir les 6 photos

                          Appartement - 44 m² - 2 pièces

                          222 000 €
                          CPQQN 2 PIECES LA RAVOIRE (73490) 13 Livraison : Novembre 2028 Se renseigner pour les remises en cours Les images de publicité ne sont pas contractuelles. La commission de l'agence immobilière est payée par le mandant.  Le prix de vente affiche est hors frais d'agence. C'est le prix communique par le promoteur. CPI92012021000000226   LOT F403          Appartement 2 pièces      
                          Professionnel Publié il y a plus de 7 jours Non géolocalisée
                          La Ravoire 1 ch 4ème étage Parking
                          • Appartement - 45 m² - 2 pièces
                          • Appartement - 45 m² - 2 pièces
                          • Appartement - 45 m² - 2 pièces
                          • Appartement - 45 m² - 2 pièces
                          • Appartement - 45 m² - 2 pièces
                          • Appartement - 45 m² - 2 pièces Cliquez pour voir les 6 photos

                          Appartement - 45 m² - 2 pièces

                          230 000 €
                          CPQQN 2 PIECES LA RAVOIRE (73490) 12 Livraison : Novembre 2028 Se renseigner pour les remises en cours Les images de publicité ne sont pas contractuelles. La commission de l'agence immobilière est payée par le mandant.  Le prix de vente affiche est hors frais d'agence. C'est le prix communique par le promoteur. CPI92012021000000226   LOT A402          Appartement 2 pièces      
                          Professionnel Publié il y a plus de 7 jours Non géolocalisée
                          La Ravoire 1 ch 4ème étage Parking
                          • Appartement - 44 m² - 2 pièces
                          • Appartement - 44 m² - 2 pièces
                          • Appartement - 44 m² - 2 pièces
                          • Appartement - 44 m² - 2 pièces
                          • Appartement - 44 m² - 2 pièces
                          • Appartement - 44 m² - 2 pièces Cliquez pour voir les 6 photos

                          Appartement - 44 m² - 2 pièces

                          219 000 €
                          CPQQN 2 PIECES LA RAVOIRE (73490) 10 Livraison : Novembre 2028 Se renseigner pour les remises en cours Les images de publicité ne sont pas contractuelles. La commission de l'agence immobilière est payée par le mandant.  Le prix de vente affiche est hors frais d'agence. C'est le prix communique par le promoteur. CPI92012021000000226   LOT F406          Appartement 2 pièces      
                          Professionnel Publié il y a plus de 7 jours Non géolocalisée
                          La Ravoire 1 ch 4ème étage Parking
                          • Appartement - 41 m² - 2 pièces
                          • Appartement - 41 m² - 2 pièces
                          • Appartement - 41 m² - 2 pièces
                          • Appartement - 41 m² - 2 pièces
                          • Appartement - 41 m² - 2 pièces
                          • Appartement - 41 m² - 2 pièces Cliquez pour voir les 6 photos

                          Appartement - 41 m² - 2 pièces

                          203 000 €
                          CPQQN 2 PIECES LA RAVOIRE (73490) 7 Livraison : Novembre 2028 Se renseigner pour les remises en cours Les images de publicité ne sont pas contractuelles. La commission de l'agence immobilière est payée par le mandant.  Le prix de vente affiche est hors frais d'agence. C'est le prix communique par le promoteur. CPI92012021000000226   LOT F202          Appartement 2 pièces       
                          Professionnel Publié il y a plus de 7 jours Non géolocalisée
                          La Ravoire 1 ch 2nd étage Parking
                          • Appartement - 44 m² - 2 pièces
                          • Appartement - 44 m² - 2 pièces
                          • Appartement - 44 m² - 2 pièces
                          • Appartement - 44 m² - 2 pièces
                          • Appartement - 44 m² - 2 pièces
                          • Appartement - 44 m² - 2 pièces Cliquez pour voir les 6 photos

                          Appartement - 44 m² - 2 pièces

                          219 000 €
                          CPQQN 2 PIECES LA RAVOIRE (73490) 9 Livraison : Novembre 2028 Se renseigner pour les remises en cours Les images de publicité ne sont pas contractuelles. La commission de l'agence immobilière est payée par le mandant.  Le prix de vente affiche est hors frais d'agence. C'est le prix communique par le promoteur. CPI92012021000000226   LOT F303          Appartement 2 pièces       
                          Professionnel Publié il y a plus de 7 jours Non géolocalisée
                          La Ravoire 1 ch 3ème étage Parking
                          • Appartement - 45 m² - 2 pièces
                          • Appartement - 45 m² - 2 pièces
                          • Appartement - 45 m² - 2 pièces
                          • Appartement - 45 m² - 2 pièces
                          • Appartement - 45 m² - 2 pièces
                          • Appartement - 45 m² - 2 pièces Cliquez pour voir les 6 photos

                          Appartement - 45 m² - 2 pièces

                          227 000 €
                          CPQQN 2 PIECES LA RAVOIRE (73490) 8 Livraison : Novembre 2028 Se renseigner pour les remises en cours Les images de publicité ne sont pas contractuelles. La commission de l'agence immobilière est payée par le mandant.  Le prix de vente affiche est hors frais d'agence. C'est le prix communique par le promoteur. CPI92012021000000226   LOT A302          Appartement 2 pièces       
                          Professionnel Publié il y a plus de 7 jours Non géolocalisée
                          La Ravoire 1 ch 3ème étage Parking
                          • Appartement - 41 m² - 2 pièces
                          • Appartement - 41 m² - 2 pièces
                          • Appartement - 41 m² - 2 pièces
                          • Appartement - 41 m² - 2 pièces
                          • Appartement - 41 m² - 2 pièces
                          • Appartement - 41 m² - 2 pièces Cliquez pour voir les 6 photos

                          Appartement - 41 m² - 2 pièces

                          209 000 €
                          CPQQN 2 PIECES LA RAVOIRE (73490) 11 Livraison : Novembre 2028 Se renseigner pour les remises en cours Les images de publicité ne sont pas contractuelles. La commission de l'agence immobilière est payée par le mandant.  Le prix de vente affiche est hors frais d'agence. C'est le prix communique par le promoteur. CPI92012021000000226   LOT F402          Appartement 2 pièces      
                          Professionnel Publié il y a plus de 7 jours Non géolocalisée
                          La Ravoire 1 ch 4ème étage Parking
                          • Appartement - 42 m² - 2 pièces
                          • Appartement - 42 m² - 2 pièces
                          • Appartement - 42 m² - 2 pièces
                          • Appartement - 42 m² - 2 pièces
                          • Appartement - 42 m² - 2 pièces
                          • Appartement - 42 m² - 2 pièces Cliquez pour voir les 6 photos

                          Appartement - 42 m² - 2 pièces

                          204 000 €
                          CPQQN 2 PIECES LA RAVOIRE (73490) 3 Livraison : Novembre 2028 Se renseigner pour les remises en cours Les images de publicité ne sont pas contractuelles. La commission de l'agence immobilière est payée par le mandant.  Le prix de vente affiche est hors frais d'agence. C'est le prix communique par le promoteur. CPI92012021000000226   LOT A005          Appartement 2 pièces       
                          Professionnel Publié il y a plus de 7 jours Non géolocalisée
                          La Ravoire 1 ch RDC Parking
                          • Appartement - 45 m² - 2 pièces
                          • Appartement - 45 m² - 2 pièces
                          • Appartement - 45 m² - 2 pièces
                          • Appartement - 45 m² - 2 pièces
                          • Appartement - 45 m² - 2 pièces
                          • Appartement - 45 m² - 2 pièces Cliquez pour voir les 6 photos

                          Appartement - 45 m² - 2 pièces

                          221 000 €
                          CPQQN 2 PIECES LA RAVOIRE (73490) 4 Livraison : Novembre 2028 Se renseigner pour les remises en cours Les images de publicité ne sont pas contractuelles. La commission de l'agence immobilière est payée par le mandant.  Le prix de vente affiche est hors frais d'agence. C'est le prix communique par le promoteur. CPI92012021000000226   LOT A102          Appartement 2 pièces       
                          Professionnel Publié il y a plus de 7 jours Non géolocalisée
                          La Ravoire 1 ch 1er étage Parking
                          • Appartement - 45 m² - 2 pièces
                          • Appartement - 45 m² - 2 pièces
                          • Appartement - 45 m² - 2 pièces
                          • Appartement - 45 m² - 2 pièces
                          • Appartement - 45 m² - 2 pièces
                          • Appartement - 45 m² - 2 pièces Cliquez pour voir les 6 photos

                          Appartement - 45 m² - 2 pièces

                          224 000 €
                          CPQQN 2 PIECES LA RAVOIRE (73490) 6 Livraison : Novembre 2028 Se renseigner pour les remises en cours Les images de publicité ne sont pas contractuelles. La commission de l'agence immobilière est payée par le mandant.  Le prix de vente affiche est hors frais d'agence. C'est le prix communique par le promoteur. CPI92012021000000226   LOT A202          Appartement 2 pièces       
                          Professionnel Publié il y a plus de 7 jours Non géolocalisée
                          La Ravoire 1 ch 2nd étage Parking

                          Toutes les annonces immobilières à La Ravoire et aux environs. Achat, vente et location d'immobilier à La Ravoire. Le site immobilier de La Ravoire.

                          Recherche en cours...
                          Rechercher dans cette zone