Retour
Rechercher
Lieu
Où ?
    Type de bien
    Quel type de projet ?
    Particulier Entreprise
    Quel type de bien ?
        Prix
        Quel budget ?
              Surface
              Quelle surface ?
                    Pièces
                    Combien de pièces ?
                      Combien de chambres ?
                          17

                          Ventes de maisons à La Limouzinière

                          Recherche 17
                          Carte
                          • Maison - 73 m² - 3 pièces
                          • Maison - 73 m² - 3 pièces
                          • Maison - 73 m² - 3 pièces
                          • Maison - 73 m² - 3 pièces
                          • Maison - 73 m² - 3 pièces
                          • Maison - 73 m² - 3 pièces Cliquez pour voir les 6 photos

                          Maison - 73 m² - 3 pièces

                          154 000 €
                          Maison de plain-pied – 73 m² – La Limouzinière Située dans un hameau calme à La Limouzinière, cette maison de plain-pied de 73 m² offre un cadre de vie paisible et agréable. Elle se compose d'un salon-salle à manger lumineux, d'une cuisine fonctionnelle, d'une salle d'eau avec WC et de deux grandes chambres d'environ 20 m² chacune. La cour, parfaitement exposée, bénéficie d'u
                          Professionnel Publié il y a plus de 7 jours
                          La Limouzinière 2 ch 2 sdb Parking
                          • Maison de ville - 134 m² - 7 pièces
                          • Maison de ville - 134 m² - 7 pièces
                          • Maison de ville - 134 m² - 7 pièces
                          • Maison de ville - 134 m² - 7 pièces
                          • Maison de ville - 134 m² - 7 pièces
                          • Maison de ville - 134 m² - 7 pièces Cliquez pour voir les 14 photos

                          Maison de ville - 134 m² - 7 pièces

                          214 000 €
                          Iad France - Jonathan Chenusson vous propose : Charmante Maison de 134 m² en plein bourg de la Limouzinière Maison rénovée énergétiquement avec l'installation d'une pompe à chaleur ET isolation des combles. Laissez-vous séduire au rez-de-chaussée par un espace de vie lumineux composé d'une grande cuisine de 15 m², donnant sur jardin semi ouverte sur le séjour de 28 m², avec poê
                          Professionnel Publié il y a plus de 7 jours
                          La Limouzinière 4 ch
                          • Maison - 42 m² - 2 pièces
                          • Maison - 42 m² - 2 pièces
                          • Maison - 42 m² - 2 pièces
                          • Maison - 42 m² - 2 pièces

                          Maison - 42 m² - 2 pièces

                          155 900 €
                          À PRIX PROMOTEUR!! et à partir de 152 900 €, découvrez le Domaine de Bellevue, un ensemble de maisons neuves situé dans un environnement calme et verdoyant, entre Nantes et Challans, avec un accès rapide à la D63. Le programme propose des maisons de plain-pied T2 ou T3, pensées pour offrir un cadre de vie confortable : pièce de vie lumineuse avec cuisine ouverte, salle d'eau mo
                          Professionnel Publié il y a plus de 7 jours
                          La Limouzinière 1 ch 1 sdb Parking
                          • Maison - 42 m² - 2 pièces
                          • Maison - 42 m² - 2 pièces
                          • Maison - 42 m² - 2 pièces
                          • Maison - 42 m² - 2 pièces

                          Maison - 42 m² - 2 pièces

                          159 900 €
                          À PRIX PROMOTEUR!! et à partir de 152 900 €, découvrez le Domaine de Bellevue, un ensemble de maisons neuves situé dans un environnement calme et verdoyant, entre Nantes et Challans, avec un accès rapide à la D63. Le programme propose des maisons de plain-pied T2 ou T3, pensées pour offrir un cadre de vie confortable : pièce de vie lumineuse avec cuisine ouverte, salle d'eau mo
                          Professionnel Publié il y a plus de 7 jours
                          La Limouzinière 1 ch 1 sdb Parking
                          • Maison - 63 m² - 3 pièces
                          • Maison - 63 m² - 3 pièces
                          • Maison - 63 m² - 3 pièces
                          • Maison - 63 m² - 3 pièces

                          Maison - 63 m² - 3 pièces

                          195 900 €
                          À PRIX PROMOTEUR!! et à partir de 152 900 €, découvrez le Domaine de Bellevue, un ensemble de maisons neuves situé dans un environnement calme et verdoyant, entre Nantes et Challans, avec un accès rapide à la D63. Le programme propose des maisons de plain-pied T2 ou T3, pensées pour offrir un cadre de vie confortable : pièce de vie lumineuse avec cuisine ouverte, salle d'eau mo
                          Professionnel Publié il y a plus de 7 jours
                          La Limouzinière 2 ch 1 sdb Parking
                          • Maison - 155 m² - 6 pièces
                          • Maison - 155 m² - 6 pièces
                          • Maison - 155 m² - 6 pièces
                          • Maison - 155 m² - 6 pièces
                          • Maison - 155 m² - 6 pièces
                          • Maison - 155 m² - 6 pièces Cliquez pour voir les 15 photos

                          Maison - 155 m² - 6 pièces

                          439 000 €
                          AJP Immobilier de St Philbert de Gd Lieu vous propose de venir visiter cette maison d'architecte aux beaux volumes. Vous serez séduits par son vaste séjour baigné de lumière avec vue sur le jardin et accès direct sur la terrasse, ainsi que par sa cuisine de 18m² entièrement équipée et aménagée avec un accès sur le patio, un coin bureau au rez-de-chaussée , idéal pour le télét
                          Professionnel Publié il y a plus de 7 jours
                          La Limouzinière 3 ch 2 sdb Standing Exposition Sud
                          • Maison - 285 m² - 9 pièces
                          • Maison - 285 m² - 9 pièces
                          • Maison - 285 m² - 9 pièces
                          • Maison - 285 m² - 9 pièces
                          • Maison - 285 m² - 9 pièces
                          • Maison - 285 m² - 9 pièces Cliquez pour voir les 18 photos

                          Maison - 285 m² - 9 pièces

                          497 400 €
                          Iad France - Jonathan Chenusson vous propose : Laissez-vous séduire par le charme et le cachet de cette maison Bourgeoise du début des années 1900, idéalement située en plein coeur de bourg de La Limouzinière. La partie principale se compose, au rez-de-chaussée, d’une vaste entrée desservant d'un côté la grande cuisine aménagée et équipée avec cheminée en granit, le salon-séjou
                          Professionnel Publié il y a plus de 7 jours
                          La Limouzinière 7 ch
                          • Maison - 160 m² - 7 pièces
                          • Maison - 160 m² - 7 pièces
                          • Maison - 160 m² - 7 pièces
                          • Maison - 160 m² - 7 pièces
                          • Maison - 160 m² - 7 pièces
                          • Maison - 160 m² - 7 pièces Cliquez pour voir les 11 photos

                          Maison - 160 m² - 7 pièces

                          325 500 €
                          EXCLUSIVITÉ - CÔTÉ PARTICULIERS LA ROCHE-SUR-YON - Située sur la commune de La Limouzinière, cette maison familiale offre un cadre de vie paisible, au coeur du bourg, à deux pas des commerces de proximité. Avec ses 160 m2 habitables, elle propose un bel espace de vie convivial et lumineux, agrémenté d'une cheminée à foyer ouvert et d'une cuisine aménagée et équipée. Le tout s'o
                          Professionnel Publié il y a plus de 7 jours Non géolocalisée
                          La Limouzinière 4 ch 2 sdb Terrasse Parking Standing
                          • Maison - 177 m² - 6 pièces
                          • Maison - 177 m² - 6 pièces
                          • Maison - 177 m² - 6 pièces
                          • Maison - 177 m² - 6 pièces
                          • Maison - 177 m² - 6 pièces
                          • Maison - 177 m² - 6 pièces Cliquez pour voir les 14 photos

                          Maison - 177 m² - 6 pièces

                          525 000 €
                          Rare sur le marché – Maison d'architecte de standing, entre nature et mer Nichée dans un écrin de verdure de 6769 m², à seulement 5 minutes de Saint-Philbert-de-Grand-Lieu, cette superbe maison d'architecte de 177 m² offre un cadre de vie exceptionnel, à 25 km de Nantes et 30 km des plages. Dès l'entrée, vous serez séduits par les volumes généreux et la qualité des matériaux.
                          Professionnel Publié il y a plus de 7 jours
                          La Limouzinière 4 ch 3 sdb Terrasse Balcon Parking
                          • Maison - 283 m² - 11 pièces
                          • Maison - 283 m² - 11 pièces
                          • Maison - 283 m² - 11 pièces
                          • Maison - 283 m² - 11 pièces
                          • Maison - 283 m² - 11 pièces
                          • Maison - 283 m² - 11 pièces Cliquez pour voir les 18 photos

                          Maison - 283 m² - 11 pièces

                          497 904 €
                          Laissez vous séduire par le charme et le cachet de cette maison bourgeoise de 1900, idéalement située sur la commune de La Limouzinière. La partie principale se compose, au rez-de-chaussée d'une spacieuse entrée, une vaste cuisine aménagée et équipée avec une cheminée en granit, un salon séjour traversant, avec cheminée insert et moulures d'origine au plafond, une arrière-cuis
                          Professionnel Publié il y a plus de 7 jours
                          La Limouzinière 6 ch 2 sdb Standing Exposition Sud-ouest
                          • Maison - 172 m² - 7 pièces
                          • Maison - 172 m² - 7 pièces
                          • Maison - 172 m² - 7 pièces
                          • Maison - 172 m² - 7 pièces
                          • Maison - 172 m² - 7 pièces

                          Maison - 172 m² - 7 pièces

                          312 000 €
                          A vendre sur la commune de la Limouzinière, maison de 172 m2 sur un terrain de 785 m2. Un bien adapté à plusieurs projets : résidence principale ou investissement locatif A proximité de toutes commodités (école, collège, commerces, transports en commun.) Rez-de-chaussée : Entrée donnant sur, Un Grand séjour lumineux avec poêle à bois Une Cuisine aménagée et équipée, offrant
                          Professionnel Publié il y a plus de 7 jours
                          La Limouzinière 6 ch Parking
                          • Maison - 79 m² - 5 pièces
                          • Maison - 79 m² - 5 pièces
                          • Maison - 79 m² - 5 pièces
                          • Maison - 79 m² - 5 pièces
                          • Maison - 79 m² - 5 pièces
                          • Maison - 79 m² - 5 pièces Cliquez pour voir les 13 photos

                          Maison - 79 m² - 5 pièces

                          143 800 €
                          Située en village de La Limouzinière, cette maison à rénover d'environ 80 m² offre un beau potentiel pour un projet de rénovation. Maison principale, à repenser selon vos envies, avec une dépendance de 66 m² offrant de nombreuses possibilités : atelier, espace de stockage. Carport + place de parking. Puits. Terrain non attenant à proximité (idéal pour potager, détente ou lois
                          Professionnel Publié il y a plus de 7 jours
                          La Limouzinière 2 ch 1 sdb
                          • Maison - 123 m² - 4 pièces
                          • Maison - 123 m² - 4 pièces
                          • Maison - 123 m² - 4 pièces
                          • Maison - 123 m² - 4 pièces
                          • Maison - 123 m² - 4 pièces
                          • Maison - 123 m² - 4 pièces Cliquez pour voir les 8 photos

                          Maison - 123 m² - 4 pièces

                          315 000 €
                          Votre conseiller Noovimo, Sébastien COMET 06 71 37 05 83 scomet@noovimo.fr vous propose EN EXCLUSIVITÉ cette maison de plain-pied située sur la commune de La Limouzinière. Si vous cherchez une maison parfaitement entretenue et offrant un cadre de vie agréable, ce bien est fait pour vous. Dès l'entrée, vous découvrirez une grande pièce de vie lumineuse où la cuisine ouverte amén
                          Professionnel Publié il y a plus de 7 jours Non géolocalisée
                          La Limouzinière 3 ch 1 sdb Parking
                          • Maison - 62 m² - 3 pièces
                          • Maison - 62 m² - 3 pièces
                          • Maison - 62 m² - 3 pièces
                          • Maison - 62 m² - 3 pièces
                          • Maison - 62 m² - 3 pièces

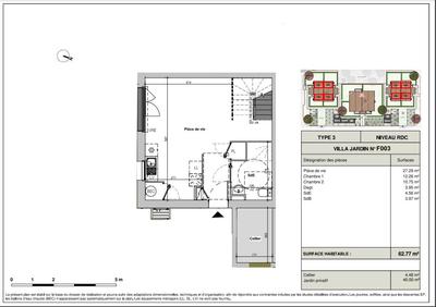
                          Maison - 62 m² - 3 pièces

                          183 900 €
                          À 25 minutes de Nantes, dans un environnement calme et verdoyant, découvrez cette Villa-Jardin T3 duplex dans une résidence intimiste de 8 logements. Elle dispose : - D'un séjour lumineux avec cuisine ouverte, - De 2 chambres, - D'un jardin privatif de 42 m2, exposé plein sud, - De 2 places de stationnement. À proximité à pied : école, commerces, mairie, salle de sport. Collège
                          Professionnel Publié il y a plus de 7 jours Non géolocalisée
                          La Limouzinière 2 ch 2 sdb Parking Exposition Sud
                          • Maison d'architecte - 177 m² - 6 pièces
                          • Maison d'architecte - 177 m² - 6 pièces
                          • Maison d'architecte - 177 m² - 6 pièces
                          • Maison d'architecte - 177 m² - 6 pièces
                          • Maison d'architecte - 177 m² - 6 pièces
                          • Maison d'architecte - 177 m² - 6 pièces Cliquez pour voir les 24 photos

                          Maison d'architecte - 177 m² - 6 pièces

                          520 000 €
                          Sarah Roynel, vous propose, de venir visiter cette magnifique maison d'architecte de 2012, et de vous laissez, simplement séduire, par tous les charmes et les atouts que vous offre ce bien... Sur La Limouzinière, à 5 minutes de Saint Philbert de grand Lieu. Surface habitable 178m² et 6769 m² de terrain. Pas moins de 83 m², pour cette splendide pièce de vie, baignée de lumière,
                          Professionnel Publié il y a plus de 7 jours Non géolocalisée
                          La Limouzinière 4 ch 2 sdb Terrasse Balcon Parking
                          • Maison - 125 m² - 4 pièces
                          • Maison - 125 m² - 4 pièces
                          • Maison - 125 m² - 4 pièces
                          • Maison - 125 m² - 4 pièces
                          • Maison - 125 m² - 4 pièces
                          • Maison - 125 m² - 4 pièces Cliquez pour voir les 11 photos

                          Maison - 125 m² - 4 pièces

                          396 550 €
                          3%.Com Isabelle RIVIERE A 25 mn de Nantes, Très belle maison contemporaine de 125 m2 située au calme absolu, au sein d'un environnement verdoyant, vous propose un cadre de vie remarquable à la fois proche de tous les centres d'intérêts mais préservée du brouhaha de la ville. Dotée de lignes épurées et résolument orientée vers les espaces extérieurs paysagés mêlant un jardin de
                          Professionnel Publié il y a plus de 7 jours Non géolocalisée
                          La Limouzinière 3 ch 1 sdb Terrasse Parking Exposition Sud-ouest
                          • Maison - 62 m² - 3 pièces
                          • Maison - 62 m² - 3 pièces
                          • Maison - 62 m² - 3 pièces
                          • Maison - 62 m² - 3 pièces

                          Maison - 62 m² - 3 pièces

                          187 900 €
                          Devenez propriétaires d'une maison avec jardin pour 192 500 € (frais de notaire inclus). Pour vivre ou investir dans le sud de Nantes, sur la commune de La Limouzinière. Résidence intimiste au cœur d'un îlot paysagé. Découvrez ces maisons neuves spacieuses avec jardin. Celle-ci comprend : une entrée, pièce de vie avec espace cuisine ouverte, cet espace convivial donne accès à
                          Professionnel Publié il y a plus de 7 jours Non géolocalisée
                          La Limouzinière 2 ch 2 sdb
                          14

                          Ventes de maisons à Saint-Colomban

                          (2.1 km)
                          • Maison - 87 m² - 4 pièces
                          • Maison - 87 m² - 4 pièces
                          • Maison - 87 m² - 4 pièces
                          • Maison - 87 m² - 4 pièces
                          • Maison - 87 m² - 4 pièces
                          • Maison - 87 m² - 4 pièces Cliquez pour voir les 20 photos

                          Maison - 87 m² - 4 pièces

                          194 990 €
                          Efficity vous dévoile cette jolie maison de 87 m² idéalement située en plein cœur de Saint-Colomban, une commune recherchée pour son dynamisme et ses nombreux services : commerces, médecins, écoles, et infrastructures sportives sont accessibles à pied. La pièce de vie de 32 m², dotée d'une cuisine aménagée récente, offre un cadre agréable pour partager chaque moment en famille.
                          Professionnel Publié il y a plus de 7 jours
                          Saint-Colomban 3 ch 2 sdb Parking Exposition Ouest
                          • Maison - 107 m² - 6 pièces
                          • Maison - 107 m² - 6 pièces
                          • Maison - 107 m² - 6 pièces
                          • Maison - 107 m² - 6 pièces
                          • Maison - 107 m² - 6 pièces
                          • Maison - 107 m² - 6 pièces Cliquez pour voir les 9 photos

                          Maison - 107 m² - 6 pièces

                          238 500 €
                          ST-COLOMBAN- Maison 107m² - 2 chambres - Grand séjour - au calme Le Studio Immo Ouest vous propose cette maison, en exclusivité, plain-pied de 107 m² environ, de 6 pièces sur 747m² de terrain construite en 1979. Elle comprends un spacieux séjour de 31 m², 2 chambres, une salle à manger ouverte sur le séjour, cette dernière pouvant être fermée pour une 3ème chambre, une cuisin
                          Professionnel Publié il y a plus de 7 jours
                          Saint-Colomban 2 ch 1 sdb Parking
                          • Maison - 105 m² - 4 pièces
                          • Maison - 105 m² - 4 pièces
                          • Maison - 105 m² - 4 pièces
                          • Maison - 105 m² - 4 pièces
                          • Maison - 105 m² - 4 pièces
                          • Maison - 105 m² - 4 pièces Cliquez pour voir les 9 photos

                          Maison - 105 m² - 4 pièces

                          217 000 €
                          Nouveauté en exclusivité dans votre agence REVO IMMO ! SAINT-COLOMBAN (44310) - 105m² habitable - 3 chambres - double garage Venez visiter cette charmante maison de bourg à proximité des commerces, écoles et transports de la commune. Elle se compose au RDC d'une belle pièce de vie avec poêle à pellets programmable installé il y a peu, d'une cuisine ouverte, d'un WC indép
                          Professionnel Publié il y a plus de 7 jours Non géolocalisée
                          Saint-Colomban 3 ch 1 sdb Parking
                          • Maison - 58 m² - 3 pièces
                          • Maison - 58 m² - 3 pièces
                          • Maison - 58 m² - 3 pièces
                          • Maison - 58 m² - 3 pièces
                          • Maison - 58 m² - 3 pièces
                          • Maison - 58 m² - 3 pièces Cliquez pour voir les 9 photos

                          Maison - 58 m² - 3 pièces

                          155 000 €
                          Nouveauté dans votre agence Revo Immo de Saint-Colomban !! MAISON DE VILLAGE - 58m² HABITABLE - IDEALE PRIMO ACCEDANT Venez découvrir ce plain-pied situé en village à 2km du bourg de Saint-Colomban et 5km de Saint-Philbert-de-Grand-Lieu. Vous profiterez de 2 chambres, un WC indépendant, une salle d'eau et une belle pièce de vie avec cuisine aménagée et équipée, le to
                          Professionnel Publié il y a plus de 7 jours Non géolocalisée
                          Saint-Colomban 2 ch 1 sdb Parking
                          • Maison - 115 m² - 4 pièces
                          • Maison - 115 m² - 4 pièces
                          • Maison - 115 m² - 4 pièces
                          • Maison - 115 m² - 4 pièces
                          • Maison - 115 m² - 4 pièces
                          • Maison - 115 m² - 4 pièces Cliquez pour voir les 17 photos

                          Maison - 115 m² - 4 pièces

                          319 900 €
                          Nouveau dans votre agence ORPI ! Au calme de son hameau, sur la commune de Saint-Colomban, à 5min de Saint Philbert de Grand Lieu. Venez découvrir cette jolie maison familiale de 115 m2 composée d'une belle pièce de vie avec cuisine aménagée et équipée de plus de 40 m2, 2 chambres dont une avec placard, une salle de bains avec double vasque et douche à l'italienne, un WC sépa
                          Professionnel Publié il y a plus de 7 jours Non géolocalisée
                          Saint-Colomban 3 ch 2 sdb Terrasse Parking
                          13

                          Ventes de maisons à Corcoué-sur-Logne

                          (3.4 km)
                          • Maison de village - 56 m² - 3 pièces
                          • Maison de village - 56 m² - 3 pièces
                          • Maison de village - 56 m² - 3 pièces
                          • Maison de village - 56 m² - 3 pièces
                          • Maison de village - 56 m² - 3 pièces
                          • Maison de village - 56 m² - 3 pièces Cliquez pour voir les 13 photos

                          Maison de village - 56 m² - 3 pièces

                          149 000 €
                          Corcoué-sur-Logne, à 35 min de Nantes, maison de ville rare sur le secteur, idéale premier achat ou investissement locatif. DPE récemment amélioré : classe E. Maison d’environ 56 m² comprenant : Pièce de vie lumineuse Cuisine indépendante 2 chambres Salle d’eau WC séparés Le vrai plus du bien : Jardin clos recherché sur le secteur Grange attenante offrant un fort potentiel :
                          Professionnel Publié le 06 janv. à 16:40
                          Corcoué-sur-Logne 2 ch 1 sdb Parking
                          • Maison - 161 m² - 5 pièces
                          • Maison - 161 m² - 5 pièces
                          • Maison - 161 m² - 5 pièces
                          • Maison - 161 m² - 5 pièces
                          • Maison - 161 m² - 5 pièces
                          • Maison - 161 m² - 5 pièces Cliquez pour voir les 15 photos

                          Maison - 161 m² - 5 pièces

                          272 190 €
                          *** EXCLUSIVITÉ CO IMMOBILIER *** Au coeur d'un petit village, découvrez cette maison en pierre entièrement rénovée, développée sur deux niveaux, alliant authenticité et confort moderne. Au rez-de-chaussée, vous serez séduit par une spacieuse pièce de vie de 70 m2, comprenant une cuisine aménagée et équipée ouverte sur le séjour, agrémenté d'un poêle de masse apportant chaleur
                          Professionnel Publié il y a plus de 7 jours Non géolocalisée
                          Corcoué-sur-Logne 3 ch 1 sdb Terrasse Parking
                          • Maison - 113 m² - 5 pièces
                          • Maison - 113 m² - 5 pièces
                          • Maison - 113 m² - 5 pièces
                          • Maison - 113 m² - 5 pièces
                          • Maison - 113 m² - 5 pièces
                          • Maison - 113 m² - 5 pièces Cliquez pour voir les 13 photos

                          Maison - 113 m² - 5 pièces

                          248 900 €
                          *** NOUVEAUTÉ CHEZ CO IMMOBILIER *** Située proche du bourg, cette maison de 2010 et son extension de 2023 offrent une vue dégagée sur la vallée de la Logne. Elle comprend : une cuisine aménagée et équipée (plaque de cuisson à induction, hotte, four et réfrigérateur encastrés), un salon/salle-à-manger de 40 m2 avec un poêle à bois et donnant sur une grande terrasse orientée O
                          Professionnel Publié il y a plus de 7 jours Non géolocalisée
                          Corcoué-sur-Logne 3 ch 1 sdb Terrasse Parking
                          • Maison - 122 m² - 5 pièces
                          • Maison - 122 m² - 5 pièces
                          • Maison - 122 m² - 5 pièces
                          • Maison - 122 m² - 5 pièces
                          • Maison - 122 m² - 5 pièces
                          • Maison - 122 m² - 5 pièces Cliquez pour voir les 15 photos

                          Maison - 122 m² - 5 pièces

                          175 725 €
                          - * NOUVEAUTÉ C&O IMMOBILIER * - Située en village, maison comprenant: séjour, cuisine aménagée, 3 chambres dont une au rdc, salle d'eau, buanderie, salle de bain et toilette sèche.A l'étage nous retrouvons une grande chambre de 22 m2 environ. Le tout sur un terrain de 1 179 m2 environ avec un préau de 50 m2 environ, une dépendance attenante à la maison et une dépendance indép
                          Professionnel Publié il y a plus de 7 jours Non géolocalisée
                          Corcoué-sur-Logne 4 ch 2 sdb Parking
                          • Maison - 100 m² - 4 pièces
                          • Maison - 100 m² - 4 pièces
                          • Maison - 100 m² - 4 pièces
                          • Maison - 100 m² - 4 pièces
                          • Maison - 100 m² - 4 pièces
                          • Maison - 100 m² - 4 pièces Cliquez pour voir les 9 photos

                          Maison - 100 m² - 4 pièces

                          177 100 €
                          * NOUVEAUTÉ C&O IMMOBILIER * - Située dans le centre de La Bénâte, maison d'habitation entièrement rénovée sur deux niveaux, comprenant au rez-de-chaussée : une entrée donnant sur un espace salon/séjour, une lingerie, un WC, ainsi qu'une cuisine partiellement équipée (four, hotte et plaques électriques) semi-ouverte sur la salle à manger. À l'étage, un palier dessert trois cham
                          Professionnel Publié il y a plus de 7 jours Non géolocalisée
                          Corcoué-sur-Logne 3 ch 1 sdb Parking
                          1

                          Vente de maison à Saint-Philbert-de-Bouaine

                          (5.8 km)
                          • Maison de bourg - 78 m² - 3 pièces
                          • Maison de bourg - 78 m² - 3 pièces
                          • Maison de bourg - 78 m² - 3 pièces
                          • Maison de bourg - 78 m² - 3 pièces
                          • Maison de bourg - 78 m² - 3 pièces
                          • Maison de bourg - 78 m² - 3 pièces Cliquez pour voir les 13 photos

                          Maison de bourg - 78 m² - 3 pièces

                          154 000 €
                          Prix imbattable ! Nouvelle exclusivité ORPI. Située à 20 mn de Nantes dans le bourg d'une commune dynamique réunissant tous les commerces et commodités de proximité (boulangerie, superette, pharmacie, écoles...), venez découvrir cette maison de bourg composée, au rez-de-chaussée : d'une entrée, un salon d'environ 20 m² (avec cheminée ouverte), une cuisine indépendante (18m²),
                          Professionnel Publié il y a plus de 7 jours
                          Saint-Philbert-de-Bouaine 2 ch 1 sdb Parking
                          28

                          Ventes de maisons à Saint-Philbert-de-Grand-Lieu

                          (6 km)
                          • Maison - 96 m² - 4 pièces
                          • Maison - 96 m² - 4 pièces
                          • Maison - 96 m² - 4 pièces
                          • Maison - 96 m² - 4 pièces
                          • Maison - 96 m² - 4 pièces
                          • Maison - 96 m² - 4 pièces Cliquez pour voir les 15 photos

                          Maison - 96 m² - 4 pièces

                          227 000 €
                          Efficity vous présente cette maison rénovée de 96 m², incluant la toiture (2006), située en village à seulement 3 km de Saint-Philbert-de-Grand-Lieu, commune dynamique à 25 minutes de Nantes et 30 minutes des plages. Un emplacement idéal pour concilier calme, praticité et mobilité. La maison se compose de deux niveaux. Au rez-de-chaussée : un salon-séjour spacieux de plus de 3
                          Professionnel Publié il y a plus de 7 jours
                          Saint-Philbert-de-Grand-Lieu 3 ch 2 sdb Parking Exposition Ouest
                          • Maison - 81 m² - 4 pièces
                          • Maison - 81 m² - 4 pièces
                          • Maison - 81 m² - 4 pièces
                          • Maison - 81 m² - 4 pièces
                          • Maison - 81 m² - 4 pièces
                          • Maison - 81 m² - 4 pièces Cliquez pour voir les 10 photos

                          Maison - 81 m² - 4 pièces

                          225 000 €
                          AJP Immobilier SAINT PHILBERT DE GD LIEU, vous présente cette maison en impasse offrant une belle pièce de vie avec cuisine semi-ouverte, exposée sud-est, poêle à granulés récent, 2 chambres avec chacune son placard, salle de bains, wc. A l'étage un palier desservant un bureau (pouvant servir de 3ème chambre). Garage attenant, jardin agréable d'environ 380m² . RéfSG3951 Po
                          Professionnel Publié il y a plus de 7 jours
                          Saint-Philbert-de-Grand-Lieu 2 ch 1 sdb Standing
                          • Maison - 117 m² - 6 pièces
                          • Maison - 117 m² - 6 pièces
                          • Maison - 117 m² - 6 pièces
                          • Maison - 117 m² - 6 pièces
                          • Maison - 117 m² - 6 pièces
                          • Maison - 117 m² - 6 pièces Cliquez pour voir les 12 photos

                          Maison - 117 m² - 6 pièces

                          262 500 €
                          Située au calme d'une impasse, à 7 minutes du centre de la commune et à proximité du futur lycée (accès à pied), cette maison de caractère datant de 1900 offre de beaux volumes et un environnement verdoyant. Elle se compose comme suit : - Une cuisine spacieuse avec accès direct au jardin - Un séjour avec cheminée à foyer fermé - 5 chambres, dont une en rez-de-chaussée - Une sa
                          Professionnel Publié il y a plus de 7 jours
                          Saint-Philbert-de-Grand-Lieu 5 ch 1 sdb Parking
                          • Maison - 110 m² - 4 pièces
                          • Maison - 110 m² - 4 pièces
                          • Maison - 110 m² - 4 pièces
                          • Maison - 110 m² - 4 pièces
                          • Maison - 110 m² - 4 pièces
                          • Maison - 110 m² - 4 pièces Cliquez pour voir les 12 photos

                          Maison - 110 m² - 4 pièces

                          96 000 €
                          Efficity vous présente une opportunité unique avec ce bâtiment en pierre à rénover entièrement, offrant plus de 110 m² d'espace habitable. Implantée sur un terrain paisible de 464 m², au bout d'une impasse, cette propriété bénéficie d'une vue sur la campagne environnante. Idéal pour les amateurs de charme authentique et de projets de rénovation. Vous avez également un terrain a
                          Professionnel Publié il y a plus de 7 jours
                          Saint-Philbert-de-Grand-Lieu Exposition Sud
                          • Maison - 110 m² - 6 pièces
                          • Maison - 110 m² - 6 pièces
                          • Maison - 110 m² - 6 pièces
                          • Maison - 110 m² - 6 pièces
                          • Maison - 110 m² - 6 pièces
                          • Maison - 110 m² - 6 pièces Cliquez pour voir les 17 photos

                          Maison - 110 m² - 6 pièces

                          299 000 €
                          Iad France - Sophie Schillemans vous propose : * MAISON DE CHARME DE PLAIN-PIED AVEC JARDIN ET GARAGE A SAINT-PHILBERT-DE-GRAND-LIEU * Située dans un quartier calme et résidentiel de Saint-Philbert-de-Grand-Lieu, cette maison de charme de 110 m² datant de 2005 saura vous séduire par ses nombreux atouts. De plain-pied la maison propose : Une entrée de 5 m² avec placard, un espac
                          Professionnel Publié il y a plus de 7 jours
                          Saint-Philbert-de-Grand-Lieu 4 ch

                          Achat d'une maison à La Limouzinière. Toutes les ventes immobilières à La Limouzinière et aux environs. Maison à vendre.

                          Recherche en cours...
                          Rechercher dans cette zone