Entrepôt - 690 m² à La Biolle
favoris
1 200 € / mois
Description :
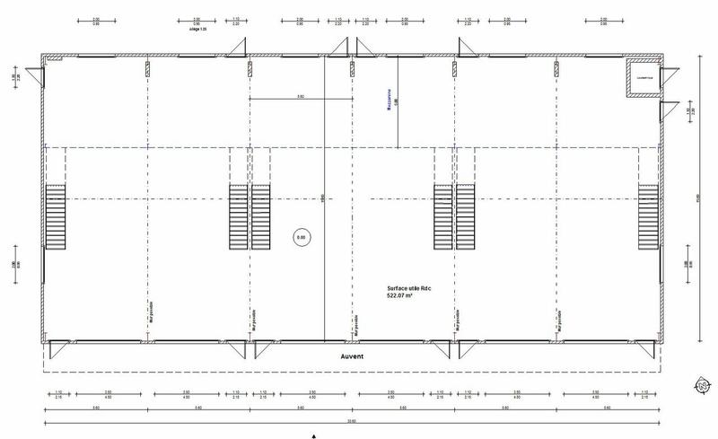
A LOUER - La Biolle (73410) - 15 minutes d'Aix-Les-Bains - 6 cellules neuves de type entrepôt livrées brutes, fluides en attente surface 87 m² au sol environ + mezzanine 28 m² environ - portes sectionnelles largeur 3,60 M, hauteur 5,00 M - portes piétons - fenêtres en mezzanine pour aménagements bureaux ou stockage - hauteur sous ferme: 7 m - dalle charge lourde (1T/m²) - accès poids-lourds - site clos et bitumé - portail électrique- réunion de plusieurs box possible - loyer mensuel 1.200 Euros HT/HC par cellules.
- Type de bail : Commercial
- Durée : 3/6/9 ans
- Préavis : 6 mois
- Fiscalité : TVA
- Indice : ILC
- Indexation : Annuelle, date prise effet
- Dépôt de garantie : 2 mois HT/HC
- Loyers et charges : Mensuels et d'avance
Afficher plus de détails
Informations sur ce bien :
L'intérieur :
-
690 m²Informations complémentairesSurface d'activité : 690 m²
Min. : 115 m²
Synthèse
Entrepôt à La Biolle
1 200 € / mois
Surface :
690 m²
Transaction :
Location (locaux professionnels)
Référence :
73_0286
Date de publication :
Il y a plus de 7 jours
Contacter l'annonceur
Agent
A-S CONSULTANTS
A-S CONSULTANTS DIRECTION
Mettre en avant cette annonce
Signaler une erreur
Localisation :
Location de locaux d'activités et entrepôts à proximité
- 3 location de locaux d'activités et entrepôts à Saint-Félix (6 km)
- 4 location de locaux d'activités et entrepôts à Mouxy (8.1 km)
- 2 location de locaux d'activités et entrepôts à Chindrieux (9.5 km)
- 1 location de local d'activité et entrepôt à Méry (12.4 km)
- 1 location de local d'activité et entrepôt à Rumilly (12.5 km)
- 2 location de locaux d'activités et entrepôts à Virignin (17 km)
- 1 location de local d'activité et entrepôt à La Motte-Servolex (18.1 km)
- 2 location de locaux d'activités et entrepôts à Saint-Alban-Leysse (19.5 km)
- 2 location de locaux d'activités et entrepôts à Saint-Jorioz (20.3 km)