Maison - 79 m² - 4 pièces à Jasseron

favoris
  • Maison - 79 m² - 4 pièces
  • Maison - 79 m² - 4 pièces
  • Maison - 79 m² - 4 pièces
  • Maison - 79 m² - 4 pièces
  • Maison - 79 m² - 4 pièces
  • Maison - 79 m² - 4 pièces
230 000 €
79 m²
4 pièces
3 chambres

Description :

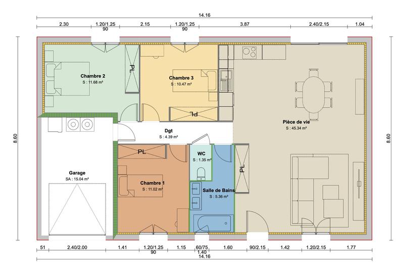
OFFRES EXCEPTIONNELLES 10 m² supplémentaires + Pack Déco OU Pack Cuisine OFFERTS !*Durée limitée — Voir conditions en agenceDevenez propriétaire à Jasseron Marre de payer un loyer ? C’est le moment de passer le cap avec un projet accessible, moderne et idéal pour un premier achat.Situé sur une belle parcelle de 600 m², ce projet vous offre un cadre de vie calme, tout en restant proche de , Une maison conçue pour démarrer sereinementMaisons Punch vous propose une maison fonctionnelle et bien pensée comprenant :Un espace de vie lumineux , parfait pour recevoir et profiter d’un intérieur moderne3 chambres, dont une idéale pour télétravailler ou évoluer plus tardUn garage attenant, pratique pour le rangement, motos/vélos ou futur atelierPrestations incluses, sans mauvaise surpriseVolets roulants motorisés et connectésPompe à chaleur AIR/EAU au sol , économique et confortable été/hiverCarrelage 45 x 45 cm contemporainUn budget clair et maîtrisé215 000 € , incluant :Terrain + VRD (estim.) + construction Maison Punch.Packs Déco OU Cuisine offertsParfait pour emménager rapidement et aménager votre intérieur sans exploser votre budget.Un projet 100% personnalisableCouleurs, agencement, rangements… adaptez votre maison à votre style et à votre mode de vie.Envie de vous lancer ?Contactez Mme VIANA CAROLE au 06 07 10 89 44Et devenez enfin propriétaire de votre première maison !

Afficher plus de détails

Informations sur ce bien :

L'intérieur :

  • 4 pièces
  • 79 m²
  • 3 Chambres
  • 1 Salle de bain

L'extérieur :

  • Garage

Autres :

  • Style :
    Traditionnelle
Synthèse
Maison à Jasseron
230 000 €
Surface : 79 m²
Prix au m² : 2 911 €
Transaction :
Neuf
Référence :
4546 Viana Carole
Date de publication :
Aujourd'hui à 10:45
Maison - 79 m² - 4 pièces
Agent
Bourg en Bresse
Bourg en Bresse
Carole Viana
Appeler
Écrire
Mettre en avant cette annonce
Signaler une erreur

Localisation :

L'adresse exacte n'est pas renseignée. Le bien se situe dans cette zone.
Annonces similaires
Annonces immobilières récentes