• Appartement - 67 m² - 3 pièces
  • Appartement - 67 m² - 3 pièces
799 € / mois
67 m²
3 pièces

Description :

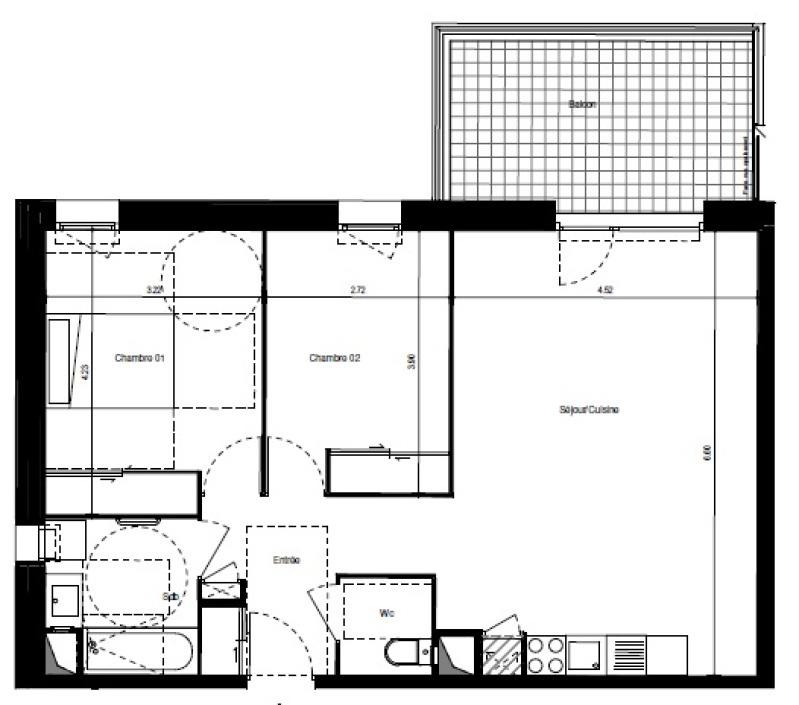
B402 LE GAIA CALME ET LUMINOSITE POUR CE BEAU T3 AU 4EME ETAGE AVEC CONFORTABLE BALCON DE PRES DE 13M2, SITUE DANS UNE RESIDENCE RECENTE A FAIBLE CONSOMATION ENERGETIQUE - superbe séjour de plus de 30m2 avec cuisine équipée et aménagée (hotte, plaques vitro, four, meuble haut et bas), deux belles chambres en sol parquet avec placard de rangement aménagé dont une grande de plus de 13m2, une SDB avec meuble sous vasque et sèche serviettes, garage fermé en sous-sol sécurisé. Chauffage gaz individuel, eau froide incluse dans les charges.
Consommation d'énergie totale entre 407EUR et 551EUR par an (prix moyens des énergies indexés au 01/01/2021).

Les informations sur les risques auxquels ce bien est exposé sont disponibles sur le site Géorisques : www. georisques. gouv. fr

Afficher plus de détails

Informations sur ce bien :

L'intérieur :

  • 3 pièces
  • 67 m²
    Informations complémentaires
    Surface habitable : 67 m²
  • 1 Salle de bain

Les équipements :

  • Ascenseur

Autres :

  • Année de construction :
    2023
  • Étage :
    4ème étage
Synthèse
Appartement à Grenoble
799 € / mois
Surface : 67 m²
Transaction :
Location
Référence :
9882
Charges :
77 €
Informations complémentaires
Les charges sont inclues dans le loyer affiché
Remboursement annuel par le locataire
Montant de la caution :
722 €
Honoraires :
876,59 €
Informations complémentaires
Dont honoraires état des lieux : 202,29 €
Mandat :
Exclusif
Disponibilité :
18/11/2025
Date de publication :
Aujourd'hui à 08:55
Appartement - 67 m² - 3 pièces
Performance énergétique
A
B
C
D
E
F
G
Gaz à effet de serre
A
B
C
D
E
F
G
Agent
CONFIANCE IMMOBILIER MONPLAISIR LOCATION
CONFIANCE IMMOBILIER MONPLAISIR LOCATION
Appeler
Écrire
Mettre en avant cette annonce
Signaler une erreur

Localisation :

L'adresse exacte n'est pas renseignée. Le bien se situe dans cette zone.

Performance énergétique :

Logement économe
A
B
C
62
kWh/m²/an
12
kg CO₂/m²/an
D
E
F
G
Logement énergivore
Faible émission de CO₂
A
B
C
12
kg CO₂/m²/an
D
E
F
G
Forte émission de CO₂
Date du diagnostic : 19 septembre 2023
Annonces similaires
Annonces immobilières récentes