Maison - 94 m² - 4 pièces à Garnerans

favoris
  • Maison - 94 m² - 4 pièces
  • Maison - 94 m² - 4 pièces
  • Maison - 94 m² - 4 pièces
  • Maison - 94 m² - 4 pièces
  • Maison - 94 m² - 4 pièces
  • Maison - 94 m² - 4 pièces
  • Maison - 94 m² - 4 pièces
  • Maison - 94 m² - 4 pièces
  • Maison - 94 m² - 4 pièces
  • Maison - 94 m² - 4 pièces
224 000 €
94 m²
4 pièces
3 chambres

Description :

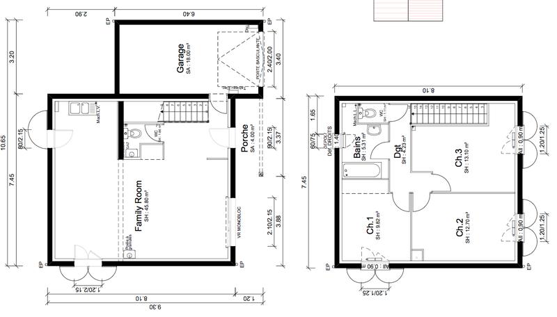
Réalisez votre projet de construction sur la commune de Garnerans.Maison de plain pied ou a étage.Dernier lot à la vente!venez découvrir de très beaux terrains de 500 m² viabilisé, dans un petit lotissement de 6 lots, à 20 minutes de Belleville, à 5 minutes de St Didier sur Chalaronne, ou encore 18 minutes de Macon Loché TGV.Une commune dynamique, au calme en profitant de toutes les commodités.Nous vous proposons notre modèle SALSA de 94m², un modèle contemporain avec de beaux volumes, composé d'un grand séjour lumineux, de ses 3 chambres spacieuses de 10 à 13 m² ainsi qu'un garage de 18 m².Une maison contemporaine, idéale pour toute la famille!Sont incluses dans le tarif proposé, les options suivantes:- volets roulants électriques connectés,- 2 WC séparés,- Débords de toit PVC- Pompe à chaleur AIR/EAU- Carrelage 45 x 45 cmPrix total de 224000 euros incluant les frais de notaire, VRD et Viabilités (estimation)Exemple de projet de construction entièrement personnalisable et sur mesure:Pour plus de renseignements, merci de contacter votre conseiller en habitat Mr Gregory GUILLEMAUD chez Maisons Punch à Villefranche sur Saône

Afficher plus de détails

Informations sur ce bien :

L'intérieur :

  • 4 pièces
  • 94 m²
  • 3 Chambres
  • 1 Salle de bain

L'extérieur :

  • Garage

À proximité :

  • Accès voie rapide
  • Centre-ville
  • Commerces
  • Ecoles
  • Transports en commun

Autres :

  • Style :
    Traditionnelle
Synthèse
Maison à Garnerans
224 000 €
Surface : 94 m²
Prix au m² : 2 383 €
Transaction :
Neuf
Référence :
8092 GUILLEMAUD Grégory
Date de publication :
Aujourd'hui à 02:45
Maison - 94 m² - 4 pièces
Agent
Maisons Punch - Villefranche
Maisons Punch - Villefranche
Grégory GUILLEMAUD
Appeler
Écrire
Mettre en avant cette annonce
Signaler une erreur

Localisation :

L'adresse exacte n'est pas renseignée. Le bien se situe dans cette zone.
Annonces similaires
Annonces immobilières récentes