• Terrain constructible - 3 197 m²
  • Terrain constructible - 3 197 m²
  • Terrain constructible - 3 197 m²
  • Terrain constructible - 3 197 m²
  • Terrain constructible - 3 197 m²
  • Terrain constructible - 3 197 m²
229 000 €
3 197 m²

Description :

À seulement 6 minutes du centre ville de Fronton sur une charmante commune voisine au calme où il fait bon vivre.

Ces terrains viabilisés et piscinables avec un permis d'aménager accordé fait, 3 197 m² avec son chemin d'accès.
Il a été divisé en 2 lots distinct dont chacun est raccordé et viabilisés, aux différents compteurs individuels : eau, élec et fibre. Un assainissement autonome en micro-station sera à prévoir sur chaque lots pour les nouveaux et heureux propriétaires.

La surface d'emprise au sol totale est de 944 m² pour laisser libre cours à vos différents projets.

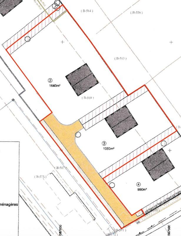
Voici le récap et le détail des terrains :

- Lot 1: 1 643 m² - Surface Plancher de 300 m² - Emprise au Sol de 575 m²
- Lot 2: 1 053 m² - Surface Plancher de 300 m² - Emprise au Sol de 369 m²
- Chemin d'accès en castine : 501 m²

- Permis d'aménager : OK pas de contrainte avec la possibilité de créer des R+1 sur chaque lots
- Etude G1 : OK
- Terrains viabilisés : OK
- Assainissement en micro-station à prévoir

Soit au total :

- 3 197 m² de terrain à bâtir
- 600 m² de Surface Plancher (surface habitable)
- 944 m² d'Emprise au Sol (maison + terrasse + garage + piscine)

Le projet est un ensemble de 4 lots dont deux sont déjà vendus. Il en reste plus que 2/4 et ce sont les derniers à vendre sur la commune.

N'attendez-plus. Contactez-moi au plus vite pour une visite !
Les honoraires sont à la charge du vendeur.
Les informations sur les risques auxquels ce bien est exposé sont disponibles sur le site Géorisques : www. georisques. gouv. fr.

Réseau Immobilier CAPIFRANCE - Votre agent commercial (RSAC N°884 985 748 - Greffe de MONTAUBAN) Flavien CORTESE Entrepreneur Individuel 06 42 58 57 94 - Réf.917216

Afficher plus de détails

Informations sur ce bien :

L'intérieur :

  • 3 197 m²

Autres :

  • Vue :
    Vue dégagée, sur Forêt, sur Jardin

Terrain :

  • Viabilisé :
    Oui
  • S.P.C. :
    600
    Informations complémentaires
    Surface Plancher Constructible
  • Raccordé au gaz :
    Oui
Synthèse
Terrain constructible à Fronton
229 000 €
Surface : 3 197 m²
Prix au m² : 72 €
Transaction :
Achat
Référence :
340931740270
Date de publication :
Il y a plus de 7 jours
Terrain constructible - 3 197 m²
Agent
CAPIFRANCE
CAPIFRANCE
Monsieur Flavien CORTESE
Appeler
Écrire
Mettre en avant cette annonce
Signaler une erreur

Localisation :

L'adresse exacte n'est pas renseignée. Le bien se situe dans cette zone.
Annonces similaires
Annonces immobilières récentes